Neubauprojekt "Lakeview LIVING" | Exklusive Penthousewohnung | TOP 5A
Wohnung
,
9210
Pörtschach am Wörther See
Umgeben von kristallklarem Wasser, eindrucksvoller Bergkulisse und mediterranem Flair entsteht hier ein Zuhause für alle, die Ruhe, Qualität und Natur gleichermaßen schätzen. Nur wenige Schritte vom See entfernt, fügt sich Lakeview LIVING harmonisch in die idyllische Umgebung ein – mit moderner Architektur, großzügigen Außenflächen und hohem Anspruch an nachhaltiges Wohnen. Das nahegelegene Strandbad Sallach sowie das Freibad Pritschitz sind fußläufig erreichbar, ebenso wie der örtliche Bahnhof – mit Direktverbindungen nach Klagenfurt, Villach oder über die Grenzen hinaus nach Italien und Slowenien.
Beschreibung der Immobilie
Neubauprojekt "Lakeview LIVING" | Exklusive Penthousewohnung | TOP 5A
Wohnen, wo der See zum Alltag gehört
Lakeview LIVING steht für stilvolles Wohnen in bester Lage: In zwei eleganten Wohnvillen im charmanten Ortsteil Sallach bei Pörtschach am Wörthersee entstehen 9 exklusive Eigentumswohnungen mit Wohnflächen zwischen 48 und 133 m².
Jede Einheit überzeugt mit einem durchdachten Grundriss, großzügigen Balkonen, Terrassen oder privaten Gärten – ideal für all jene, die Raum für sich und ihre Lebensqualität suchen.
Bodentiefe Fenster öffnen den Blick in die Natur und lassen viel Licht in die modernen Wohnräume – mit traumhaftem Ausblick auf die Karawanken und den Wörthersee.
Lakeview LIVING ist mehr als ein Neubauprojekt – es ist ein Ort zum Ankommen, Wohlfühlen und Bleiben.
Ein Zuhause für Menschen, die das Besondere schätzen und ihr Leben in einer der schönsten Regionen Kärntens gestalten möchten.
IMMO-HOCH2-HIGHLIGHTS IM ÜBERBLICK – STILLVOLL LEBEN AM WÖRTHERSEE
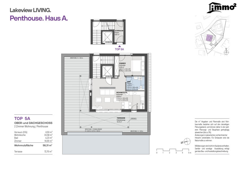
Gartenwohnung TOP 5A
Wohnnutzfläche: ca. 58,31 m²
Terrasse: ca. 72,70 m²
Keller Nr. 5: ca. 10,67 m²
Helle, offene Grundrisse mit großzügigem Wohngefühl
Hochwertige Ausstattung (Echtholzparkett, Feinsteinzeug, Marken-Sanitär)
Fußbodenheizung & Deckenkühlung mit Erdwärmepumpe
Photovoltaikanlage auf dem Dach, extensive Dachbegrünung
Barrierefrei mit Lift vom Keller bis ins Dachgeschoss
Kellerabteile, Fahrradraum & Kinderwagenraum je Haus
10 Carports + 4 Freistellplätze (optional mit E-Ladestation)
Ausstattung – stilvoll, durchdacht, hochwertig
Die Ausstattung der Wohnungen besticht durch eine harmonische Verbindung von Eleganz und Funktionalität.
Warmer Eichenparkett schafft eine behagliche Wohnatmosphäre, während großformatige Feinsteinzeug-Fliesen auf Terrassen und in den Bädern ein modernes, zugleich zeitloses Ambiente verleihen.
Edle Sanitäreinrichtungen verbinden Ästhetik mit höchstem Komfort, ergänzt durch großzügige, dreifach verglaste Fenster mit elektrischen Raffstores, die Licht und Schatten spielerisch regulieren und zugleich für Ruhe und Energieeffizienz sorgen.
Für ein sicheres und geborgenes Zuhause garantieren einbruchhemmende Eingangstüren sowie sorgfältig ausgewählte, helle Innentüren ein stilvolles Gesamtbild. An warmen Tagen trägt eine dezente Deckenkühlung dazu bei, ein angenehmes Raumklima zu schaffen.
Die hellen Kellerabteile bieten praktische Rückzugsorte, während die privaten Gartenbereiche mit geschmackvollen Zäunen und eigenen Gartentoren Privatsphäre und Geborgenheit schenken. Optional lässt sich eine E-Ladevorrichtung für Carports und Stellplätze integrieren, um den Wohnkomfort auch im Alltag nachhaltig zu erhöhen.
Die Lage – wo See, Natur und Stadt in perfekter Harmonie verschmelzen
Das Projekt befindet sich in der Sallacher Straße, im Herzen von Pörtschach am Wörthersee – einer der begehrtesten und schönsten Wohnlagen rund um den See.
Hier genießen Sie die Ruhe und das sanfte Spiel der Sonnenstrahlen, eingebettet in unmittelbarer Nähe zum glitzernden Wasser, während die lebendigen Städte Klagenfurt und Velden in nur wenigen Minuten bequem erreichbar sind.
Nur etwa 150 Meter trennen Ihr neues Zuhause vom Ufer des Wörthersees – ein Ort, der zu entspannten Spaziergängen, erfrischendem Schwimmen, aktivem Stand-Up-Paddling oder genussvollen Radtouren einlädt.
Die ausgezeichnete Anbindung mit Zug, Bus und Auto eröffnet Ihnen vielfältige Wege – sei es für den Alltag oder für Ausflüge in die nahegelegenen Länder Italien, Slowenien und Kroatien.
Ein Projekt mit Handschlagqualität
Lakeview LIVING wird von der Seestraße Bauträger GmbH realisiert – einem erfahrenen Kärntner Bauträger mit starkem Fokus auf nachhaltiges Bauen, hohe Wohnqualität und regionale Wertschöpfung. Die Architektur stammt von Arch. DI Aleksandar Cipan – bekannt für klare Linien, wohnliche Raumkonzepte und elegante Ästhetik.
Diese Wohneinheiten stehen insgesamt zur Verfügung:
Haus A:
TOP 1A | Wohnnutzfläche: ca. 71,76 m² | Garten: ca. 165 m² | ab 538.700 €
TOP 2A | Wohnnutzfläche: ca. 48,33 m² | Garten: ca. 185 m² | ab 374.900 €
TOP 3A | Wohnnutzfläche: ca. 71,76 m² | Balkon: ca. 24,50 m² | ab 558.700 € - reserviert
TOP 4A | Wohnnutzfläche: ca. 48,33 m² | Balkon: ca. 12,05 m² | ab 384.900 €
TOP 5A | Penthouse | Wohnnutzfläche: ca. 58,31 m² | Terrasse: ca. 72,70 m² | ab 556.600 €
Haus B:
TOP 1B | Wohnnutzfläche: ca. 71,76 m² | Garten: ca. 170 m² | ab 548.500 €
TOP 2B | Wohnnutzfläche: ca. 48,33 m² | Garten: ca. 135 m² | ab 384.700 €
TOP 3B | Wohnnutzfläche: ca. 48,33 m² | Balkon: ca. 12,05 m² | ab 394.900 € - reserviert
TOP 4B | Maisonette | Wohnnutzfläche: ca. 133,68 m² | Balkon: ca. 22,65 m² | Terrasse: ca. 72,70 m² | ab 1.153.200 €
Autoabstellplätze sind nicht im Kaufpreis enthalten:
Carport 20.000 €
Freier Stellplatz 10.000 €
Neugierig geworden?
Gerne informieren wir Sie persönlich über alle Details – von der genauen Lage bis hin zu verfügbaren Sonderausstattungen und aktuellen Preisen.
Kontaktieren Sie uns für ein unverbindliches Beratungsgespräch – wir freuen uns darauf, Ihnen dieses besondere Projekt näher vorzustellen!
Der Vermittler ist als Doppelmakler tätig.
Infrastruktur / Entfernungen
Gesundheit
Arzt <2.500m
Apotheke <3.000m
Krankenhaus <9.500m
Klinik <9.500m
Kinder & Schulen
Schule <2.500m
Kindergarten <2.500m
Universität <7.000m
Höhere Schule <10.000m
Nahversorgung
Supermarkt <1.500m
Bäckerei <3.000m
Sonstige
Bank <3.000m
Geldautomat <3.000m
Post <2.500m
Polizei <2.500m
Verkehr
Bus <500m
Autobahnanschluss <500m
Bahnhof <500m
Straßenbahn <7.000m
Angaben Entfernung Luftlinie / Quelle: OpenStreetMap
Eckdaten Objektnr. 953
Art: | Wohnung |
Land: | Österreich |
Zustand: | Erstbezug |
Alter: | Neubau |
Kaufpreis: | 556.600,00 € |
Provision: | 3% des Kaufpreises zzgl. 20% USt. |
Nutzfläche: | 58,31 m² |
Zimmer: | 2 |
Terrassen: | 1 |
Keller: | 10,67 m² |
Heizwärmebedarf: | B 47,00 kWh/m²a |
fGEE: | A+ 0,70 |
Ausstattung
Fliesen, Steinboden, Parkett, Erdwärme, Fußbodenheizung, Personenaufzug, Badewanne, Dusche, Carport, Parkplatz
Ihre persönliche Beratung

Jürgen Galo
Immo-Hoch2
H +43 664 88746814