Generalsaniertes Büro/Praxis auf 123m² beim Grünen Markt in 2500 Baden
Büro / Praxis
,
2500
Baden
,
Erzherzog Rainer-Ring
Die Lage in Baden bietet zudem eine Vielzahl an Annehmlichkeiten in unmittelbarer Nähe. Ärzte, Apotheken, Kliniken, Schulen und Kindergärten sind nur einen kurzen Fußweg entfernt. Dies schafft nicht nur eine praktische Umgebung für Ihre täglichen Belange, sondern fördert auch eine gute Vernetzung in der Nachbarschaft. Die fußläufig erreichbaren Supermärkte und Bäckereien sorgen dafür, dass Sie in Ihrer Mittagspause oder nach Feierabend schnell und unkompliziert alles Notwendige besorgen können. Baden selbst begeistert mit seinem charmanten Stadtbild und einer Vielzahl von Freizeitmöglichkeiten. Ob entspannende Spaziergänge in den umliegenden Parks oder kulturelle Veranstaltungen – hier wird Ihnen und Ihren Mitarbeitern nie langweilig. Genießen Sie die perfekte Kombination aus beruflichem Erfolg und Lebensqualität in einer der attraktivsten Regionen Niederösterreichs.
Beschreibung der Immobilie
Generalsaniertes Büro/Praxis auf 123m² beim Grünen Markt in 2500 Baden
Repräsentatives Büro oder moderne Praxis - Erstbezug nach Generalsanierung - in zentraler Lage von Baden – 123 m² mit Balkon
Willkommen in Ihrem neuen Arbeitsumfeld!
Diese vielseitig nutzbare Immobilie im Herzen von Baden, Niederösterreich, vereint berufliche Funktionalität mit hoher Lebensqualität. Ob als Büro für kreative Köpfe oder als stilvolle Praxis – auf 123 m² erwartet Sie ein helles, einladendes Arbeitsumfeld mit vielen Möglichkeiten zur individuellen Gestaltung.
Highlights der Immobilie:
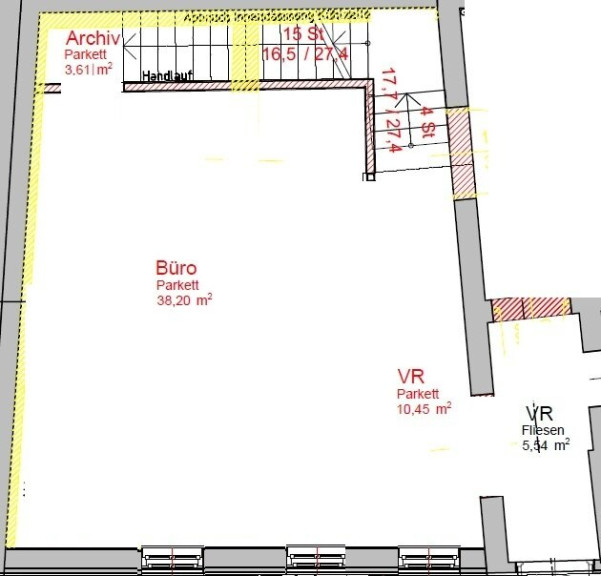
Fläche: 123 m² – großzügig, offen und ideal strukturiert
Balkon: Für entspannte Pausen oder kurze Besprechungen im Freien
Nutzung: Perfekt geeignet für Büros, Ordinationen, Therapiepraxen o. Ä.
Heizung: Effiziente Gas-Zentralheizung – angenehmes Raumklima zu jeder Jahreszeit
Tageslicht: Helle, freundliche Räume für produktives Arbeiten und einladende Kundengespräche
Verkehrsanbindung:
Bus, Bahn und Straßenbahn in unmittelbarer Nähe
Bequeme Erreichbarkeit für Mitarbeiter, Kunden und Patienten
Ihr neuer Standort in Baden:
Baden bietet nicht nur ein charmantes Stadtbild, sondern auch eine hervorragende Infrastruktur. Die Kombination aus historischem Flair, modernem Komfort und idealer Verkehrsanbindung macht diesen Standort besonders attraktiv – für Sie, Ihre Mitarbeiter und Ihre Klientel.
Vereinbaren Sie noch heute einen Besichtigungstermin – wir freuen uns darauf, Ihnen diese Immobilie persönlich zu zeigen!
Wir bitten um Verständnis, dass aufgrund der Nachweispflicht gegenüber dem Eigentümer nur Anfragen mit vollständigen Kontaktdaten (Name, Adresse, Tel., Email) beantwortet werden können.
Infrastruktur / Entfernungen
Gesundheit
Arzt <250m
Apotheke <250m
Klinik <500m
Krankenhaus <2.000m
Kinder & Schulen
Schule <500m
Kindergarten <250m
Höhere Schule <8.250m
Universität <9.500m
Nahversorgung
Supermarkt <250m
Bäckerei <500m
Einkaufszentrum <5.250m
Sonstige
Bank <250m
Geldautomat <250m
Polizei <750m
Post <500m
Verkehr
Bus <250m
Bahnhof <500m
Autobahnanschluss <4.000m
Straßenbahn <500m
Flughafen <5.250m
Angaben Entfernung Luftlinie / Quelle: OpenStreetMap
Eckdaten Objektnr. 6457/251
Art: | Büro / Praxis |
Land: | Österreich |
Kaltmiete (netto): | 2.070,00 € |
Kaltmiete: | 2.416,67 € |
Provision: | 3 Bruttomonatsmieten zzgl. 20% USt. |
Betriebskosten: | 346,67 € |
MwSt Gesamt: | 483,33 € |
Gesamtfläche: | 123,65 m² |
Zimmer: | 3 |
WC: | 2 |
Balkone: | 1 |
Heizwärmebedarf: | C 50,30 kWh/m²a |
fGEE: | B 0,87 |
Ausstattung
Fußbodenheizung
Ihre persönliche Beratung

Diego Vizuete
Vizuete Immobilien GmbH
T 0660/7773377
H +43 664 470 99 61