Tiefgaragenplatz in Röthis zu verkaufen
6832
Röthis
,
Alte Landstraße 12b
Beschreibung der Immobilie
Tiefgaragenplatz in Röthis zu verkaufen
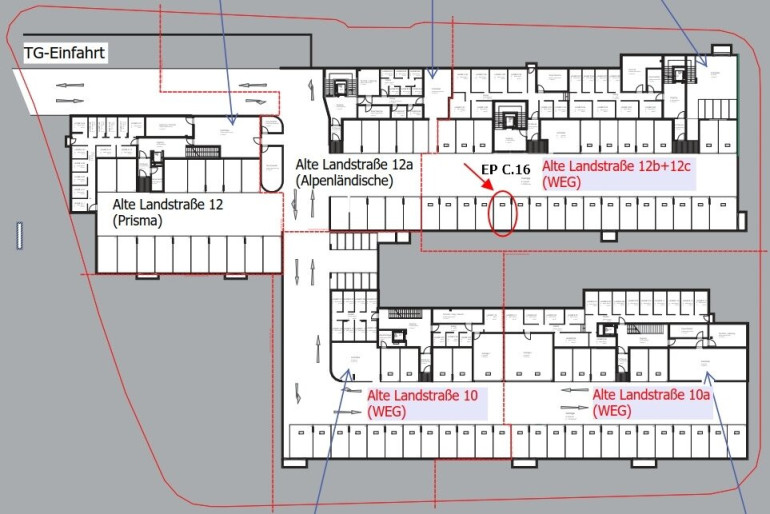
Tiefgaragenplatz:
Top EP C.16: Fläche ca. 13,42 m²
LAGEBESCHREIBUNG
Wenige Minuten zur Autobahnauf- und abfahrt in alle Richtungen.
Einrichtungen des täglichen Bedarfs in der Umgebung schnell und einfach zu erreichen.
NEBENKOSTENÜBERSICHT
- 3,5% Grunderwerbsteuer
- 1,1% Grundbucheintragung
- 3,6% Provision inklusive 20% Umsatzsteuer
- zuzüglich Rechtsanwalt- und Vertragserrichtungskosten zuzüglich Umsatzsteuer
- zuzüglich Barauslagen
HINWEIS ZU DEN NEBENKOSTEN:
Ab dem 01.04.2024 werden die Grundbucheintragungsgebühr von 1,1 % sowie die Pfandrechtseintragungsgebühr von 1,2 % des Kaufpreises unter bestimmten Voraussetzungen erlassen. Die neue Regelung gilt allerdings nur bis zu einem Freibetrag von 500.000,00 Euro und für Grundbucheintragungen ab dem 01.07.2024.
Von den Nebengebühren befreit ist nur der Kauf von Immobilien, die als Hauptwohnsitz dienen. Die Regelung ist außerdem auf zwei Jahre befristet und gilt bis Juni 2026. Für genaue Hinweise und ob diese Regelung für Sie anwendbar ist wenden Sie sich bitte an den Treuhänder / Vertragserrichter. Diese Zusammenfassung ist nur als Vorabinformation zu verstehen.
SONSTIGE INFORMATION
- Parkplatz sofort verfügbar
- Protokolle, Betriebskostenabrechnung, Vorausschau, sowie Aufstellung Sonderregelungen und Abrechnungsschlüssel werden bei Detailbesprechung, in unserem Unternehmen, vorgelegt
Alle Angaben sind nach bestem Wissen aufbereitet worden. Irrtum und Zwischenverkauf vorbehalten. Dieses Exposé ist eine Vorinformation, als Rechtsgrundlage gilt der abgeschlossene Kaufvertrag. Der angegebene Preis ist ein Richtpreis, der in etwa dem möglichen zukünftigen Kaufpreis entsprechen kann. Da der Preis vom Interessenten mit einem dafür ausgestellten Angebot definiert wird, kann er abhängig von der jeweiligen Nachfrage, auch über dem Richtpreis zu liegen kommen. Die Zustimmung erfolgt ausschließlich vom Abgeber durch Gegenzeichnung des gestellten Angebotes.
Zögern Sie nicht und sichern Sie sich noch heute Ihren neuen Tiefgaragenplatz in Röthis! Vereinbaren Sie einen Besichtigungstermin und überzeugen Sie sich selbst von dieser einzigartigen Immobilie!
Noch nichts gefunden? Wir informieren Sie über geeignete Immobilienangebote noch vor allen anderen.
Legen Sie jetzt Ihren individuellen Suchagenten unter folgendem Link an. Wir schicken Ihnen passende Immobilien exklusiv vorab zu.
Suchagent anlegen - https://mag-kofler-vermoegenstreuhand.service.immo/registrieren/de
Wir weisen darauf hin, dass zwischen dem Vermittler und dem zu vermittelnden Dritten ein familiäres oder wirtschaftliches Naheverhältnis besteht.
Der Vermittler ist als Doppelmakler tätig.
Infrastruktur / Entfernungen
Gesundheit
Arzt <750m
Apotheke <600m
Krankenhaus <3.875m
Kinder & Schulen
Schule <625m
Kindergarten <825m
Höhere Schule <4.600m
Universität <7.750m
Nahversorgung
Supermarkt <850m
Bäckerei <1.000m
Einkaufszentrum <2.775m
Sonstige
Bank <875m
Geldautomat <875m
Post <1.125m
Polizei <900m
Verkehr
Bus <75m
Bahnhof <950m
Autobahnanschluss <1.625m
Angaben Entfernung Luftlinie / Quelle: OpenStreetMap
Eckdaten Objektnr. 5781/3100066
Land: | Österreich |
Baujahr: | 2018 |
Zustand: | Gepflegt |
Kaufpreis: | 21.000,00 € |
Provision: | 3% des Kaufpreises zzgl. 20% USt. |
Betriebskosten: | 20,00 € |
MwSt Gesamt: | 4,00 € |
Stellplätze: | 1 |
Heizwärmebedarf: | B 29,00 kWh/m²a |
fGEE: | A+ 0,58 |
Ihre persönliche Beratung

Kerstin Jautz
Mag. Kofler Vermögenstreuhand GmbH
T +43 5523 53156 618