NEUBAUPROJEKT HERNALS - BEZUGSFERTIG JULI 2025 - HOCHWERTIGE MIETWOHNUNGEN *INKL. EINBAUKÜCHE*
Wohnung
- Dachgeschoß,
1170
Wien
,
Hernalser Hauptstraße 120
Beschreibung der Immobilie
NEUBAUPROJEKT HERNALS - BEZUGSFERTIG JULI 2025 - HOCHWERTIGE MIETWOHNUNGEN *INKL. EINBAUKÜCHE*
HOCHWERTIGE MIETWOHNUNGEN MIT BALKON + EINBAUKÜCHE!!!
Derzeit entstehen unmittelbar auf der Hernalser Haupstraße 120, 20 hochwertige Mietwohnungen zwischen 35 und 82 m². Sämtliche Einheiten sind mit einer modernen Einbauküche ausgestattet und verfügen teilweise über Balkone oder Terrassen.
Das Wohnhaus ist mit einem behindertengerechten Lift und einer Zentralheizung, die ökologisch mittels Luftwärmepumpe betrieben wird, ausgestattet.
Weiters befindet sich ein Kinderwagen- und Fahrradabstellraum im Erdgeschoss des Hauses und es stehen 4 Stk. Stellplätze zur Anmietung im Hof zur Verfügung. Die Einlagerungsräume befinden sind im Kellergeschoß.
Geschäfte des täglichen Bedarfs sind fussläufig erreichbar und auch Schulen und Ärzte befinden sich in unmittelbarer Nähe.
Befristeter Hauptmietvertrag auf die Dauer von 5 Jahren!
Hochwertige Ausstattung:
- moderne Einbauküche
- Parkettböden Eiche
- Fußbodenheizung
- Klimatisierung im DG mittels Betonkern/Bauteilaktivierung
- Fenster: Kunststoff/Alu- Isolierglas
- Sonnenschutz: außenliegende Raffstore-Lamellen
Gerne übermitteln wir Ihnen auf Anfrage weitere Detailunterlagen!
Der Immobilienmakler erklärt, dass er – entgegen dem in der Immobilienwirtschaft üblichen Geschäftsgebrauch des Doppelmaklers – einseitig nur für den Vermieter tätig ist.
Infrastruktur / Entfernungen
Gesundheit
Arzt <75m
Apotheke <225m
Klinik <450m
Krankenhaus <1.400m
Kinder & Schulen
Schule <225m
Kindergarten <150m
Universität <1.875m
Höhere Schule <1.100m
Nahversorgung
Supermarkt <200m
Bäckerei <200m
Einkaufszentrum <600m
Sonstige
Geldautomat <225m
Bank <75m
Post <350m
Polizei <550m
Verkehr
Bus <200m
U-Bahn <625m
Straßenbahn <200m
Bahnhof <750m
Autobahnanschluss <3.550m
Angaben Entfernung Luftlinie / Quelle: OpenStreetMap
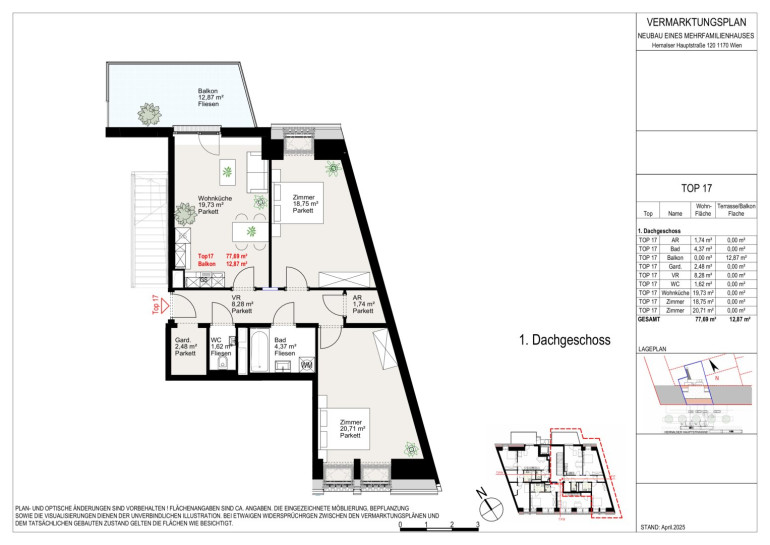
Eckdaten Objektnr. 12017
| Art: | Wohnung - Dachgeschoß |
| Land: | Österreich |
| Baujahr: | 2025 |
| Zustand: | Erstbezug |
| Alter: | Neubau |
| Gesamtmiete: | 1.971,87 € |
| Kaltmiete (netto): | 1.598,38 € |
| Kaltmiete: | 1.792,61 € |
| Provision: | Gemäß Erstauftraggeberprinzip bezahlt der Abgeber die Provision. |
| Betriebskosten: | 194,23 € |
| MwSt Gesamt: | 179,26 € |
| Wohnfläche: | 77,69 m² |
| Nutzfläche: | 77,69 m² |
| Zimmer: | 3 |
| Bäder: | 1 |
| WC: | 1 |
| Balkone: | 1 |
| Heizwärmebedarf: | A 20,50 kWh/m²a |
| fGEE: | A 0,73 |
Ausstattung
Fliesen, Parkett, Fußbodenheizung, Zentralheizung, Einbauküche, Personenaufzug, Badewanne, Kabel/Satelliten-TV, Parkplatz
Ihre persönliche Beratung
Dieser Makler ist ein offizielles Mitglied des IR – ir.at Mehr Erfahren
