Multifunktionale Gewerbeflächen "Automotive" - Salzburg Süd | Hallein-Taxach
Halle / Lager / Produktion
,
5400
Hallein
- Salzburg Süd, Hallein - Taxach - hochfrequente Lage direkt an der B159 - beste Werbewirksamkeit
Beschreibung der Immobilie
Multifunktionale Gewerbeflächen "Automotive" - Salzburg Süd | Hallein-Taxach
MULTIFUNKTIONALE GEWERBEFLÄCHEN SALZBURG SÜD | HALLEIN-TAXACH
1 | Lage
Das Gewerbeobjekt liegt in der Salzburgerstraße im Halleiner Ortsteil Taxach. Die Bushaltestelle „Taxach Brückenwirt“ befindet sich in rund 650 m Entfernung; von dort fährt die Linie 35 in etwa zehn Minuten bis zum Bahnhof Hallein. Der Bahnhof selbst liegt ca. 5,5 km entfernt. Zum Stadtzentrum Hallein (Stadtbrücke) sind es ca. 5,0 km. Die Anschlussstelle Hallein der A 10 Tauernautobahn ist mit dem Pkw in knapp 4,0 km erreichbar. Der Flughafen Salzburg liegt rund 15 km, die Salzburger Altstadt ca. 11 km entfernt.
2 | Gebäude – Allgemein
Ursprünglich errichtet 1970 in massiver Stahlbeton- und Mauerwerksbauweise, bis 2014 laufend erweitert und erneuert, präsentiert sich das eingeschossige Gewerbeobjekt in gepflegtem Zustand. Die Hallenflächen liegen ebenerdig; eine betriebseigene Wohnung nimmt das gesamte erste Obergeschoss des Haupthauses ein und ist über eine innenliegende Treppe erschlossen.
3 | Objekt
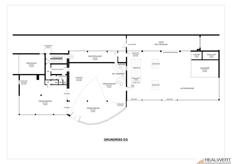
Gewerbeflächen Erdgeschoß (ca. 657 m² Nutzfläche)
Die Nutzfläche beträgt ca. 843 m². Davon entfallen ca. 312 m² auf verglaste Verkaufsräume mit angeschlossenes Büro und Annahmezone. Der Werkstattkern verfügt über drei Hebebühnen, Brems-, Fahrwerks- und Spurprüfstände; eine separate Lackierkabine mit Lacklager in einem Gesamtausmaß von ca. 345 m². Zwei LKW-taugliche Rolltore, belastbare Industrieböden und großzügige Spannweiten erlauben flexible Nutzung für Handel, Gewerbe, Produktion oder auch Logistik.
Betriebswohnung - Büroflächen (1. OG, ca. 155 m² Nutzfläche)
Im ersten Obergeschoss liegt eine großzügige Betriebs- bzw. Dienstwohnung. Der Hauptteil umfasst ein mehrere, in etwa gleich große Zimmer, ein helles Wohnzimmer mit durchgehender Balkonfront sowie vorliegender Terrasse, und zwei Badezimmer. Dieser Bereich ist derzeit verbunden, könnte jedoch wieder in zwei separate Einheiten unterteilt werden.
Kellerflächen
Das Hauptgebäude ist unterkellert und beherbergt ein weitere Lagerflächen (derzeit Reifenlager), die Haustechnik (Öl-Zentralheizung), sowie eine Autowaschanlage, welche von der Gebäudeseite über eine Rampe befahrbar ist.
4 | Parken | Freiflächen
Vor dem Gebäude stehen rund 880 m² befestigte Freifläche zu Lagerzwecken, oder für Kunden- und Mitarbeiterparkplätze sowie für LKW-Rangiermanöver zur Verfügung.
5 | Mietkonditionen
Der Hauptmietzins für das Gesamtobjekt inklusive aller Gebäudeteile und Freiflächen beträgt EUR 12.000,00 netto pro Monat. Die monatlichen Betriebskosten belaufen sich aktuell auf ca. EUR 500,00 netto zzgl. der Heizkosten. Vermieterseits kann ein langfristiges Mietverhältnis angeboten werden. Eine Befristung bis zu zehn Jahren ist möglich. Bezug nach Vereinbarung.
6 | Fazit | Zusammenfassung
+ Flexible Kombination aus Showroom, Werkstatt und Lager
+ Großzügige Betriebswohnung im Obergeschoss - teilbar; Nutzung ebenfalls als Büro möglich
+ Sichtlage an der Bundesstraße B159 und nur ca. 4 km zur A 10
+ Komplettes Werkstatt- und Lackierequipment ablösbar
+ Rund 880 m² Freifläche für Parken oder Außenlager
Gerne stehen wir Ihnen für weitere Informationen oder einen Besichtigungstermin zur Verfügung.
Der Vermittler ist als Doppelmakler tätig.
Infrastruktur / Entfernungen
Gesundheit
Arzt <1.000m
Apotheke <2.500m
Klinik <7.000m
Krankenhaus <5.500m
Kinder & Schulen
Schule <1.000m
Kindergarten <2.000m
Universität <1.000m
Höhere Schule <2.500m
Nahversorgung
Supermarkt <500m
Bäckerei <1.500m
Einkaufszentrum <8.000m
Sonstige
Bank <1.500m
Geldautomat <1.500m
Post <2.500m
Polizei <2.500m
Verkehr
Bus <500m
Autobahnanschluss <2.500m
Bahnhof <2.500m
Flughafen <9.500m
Angaben Entfernung Luftlinie / Quelle: OpenStreetMap
Eckdaten Objektnr. 523/1181
| Art: | Halle / Lager / Produktion |
| Land: | Österreich |
| Baujahr: | 1970 |
| Zustand: | Gepflegt |
| Alter: | Neubau |
| Kaltmiete (netto): | 12.000,00 € |
| Kaltmiete: | 12.494,67 € |
| Miete / m²: | 14,23 € |
| Provision: | 3 Bruttomonatsmieten zzgl. 20% USt. |
| Betriebskosten: | 494,67 € |
| MwSt Gesamt: | 2.498,93 € |
| Wohnfläche: | 155,00 m² |
| Grundstücksfl.: | 2.035,00 m² |
| Gesamtfläche: | 843,00 m² |
| Lagerfläche: | 345,00 m² |
| Verkaufsfläche: | 312,00 m² |
| Terrassen: | 1 |
| Stellplätze: | 20 |
| Heizwärmebedarf: | E 162,00 kWh/m²a |
| fGEE: | C 1,23 |
Ausstattung
Fliesen, Steinboden, Öl, Zentralheizung, Parkplatz
Ihre persönliche Beratung
Dieser Makler ist ein offizielles Mitglied des IR – ir.at Mehr Erfahren

