Historischer Charme, moderne Eleganz: Luxus Dachgeschosswohnung auf einer Ebene mit zusätzlicher Terrasse
Wohnung
,
1090
Wien
,
Rotenlöwengasse 16
Pramergasse / Servitenviertel / Augarten
Beschreibung der Immobilie
Historischer Charme, moderne Eleganz: Luxus Dachgeschosswohnung auf einer Ebene mit zusätzlicher Terrasse
- 14 exklusive Eigentumswohnungen
- Davon 2 moderne Dachgeschoßwohnungen und ein luxuriöses Penthouse
- 1- bis 6 Zimmer mit ca. 38 bis 196 m² Wohnfläche
- Hofseitige Balkone und Terrassen
- Revitalisierter Stilaltbau mit modernster Technik und historischem Ambiente
- Nachhaltige Hauszentralheizung mittels Fernwärmeanschluss und Wohnungsstationen
- Ausgezeichnete Infrastruktur und erstklassige, begehrte Lage
- Historisches Flair
Errichtet im Jahr 1890, hat das historische Gebäude in der Rotenlöwengasse die Zeiten überdauert – und wurde nun mit größtem Respekt für seine architektonische Vergangenheit umfassend revitalisiert.
Mit Wohnflächen von 38 bis 196 m², großzügigen Balkonen und einem luxuriösen Penthouse garantiert LE PETIT LION höchsten Wohnkomfort in einer der begehrtesten Wohngegenden Wiens. Hier verschmelzen traditioneller Wiener Altbaucharme und moderne Technik zu einem einzigartigen Wohnerlebnis.
Die exklusiven Eigentumswohnungen sind edle Unikate, die durch behutsame Restaurierung die Vergangenheit in die Gegenwart tragen. Mit der stilvollen Revitalisierung des Altbaus werden wertvolle Ressourcen geschont, CO2 -Emissionen reduziert und Bodenversiegelungen verhindert. Nachhaltiges Wohnen steht im Vordergrund, indem vorhandene Materialien weiter genutzt und der ökologische Fußabdruck minimiert werden. Entdecken Sie ein Jahrhundertjuwel, das durch seine spektakuläre Neuinterpretation für die nächsten Generationen im neuen Glanz erstrahlt!
Die abgebildeten Verkaufspläne basieren auf dem aktuellen Planungsstand (05/2025). Abweichungen aufgrund baulicher oder behördlicher Notwendigkeiten sind während der Ausführung möglich.
"Über den Dächern im Rhythmus der Stadt" - das Dachgeschoß
- Weitläufige Terrassen
- Split-Klimaanlagen
- Hochwertige Außenbeschattung
- Großflächige Aluminiumfenster mit 3-Scheiben-Isolierverglasung und Sonnenschutz
- Dielenböden
- bodentiefe Schiebeelemente
- Offene Wohnkonzepte
- Edle Materialien
- Design Bäder mit hochwertiger Ausstattung
- HWB: 28,7 kWh/m²a
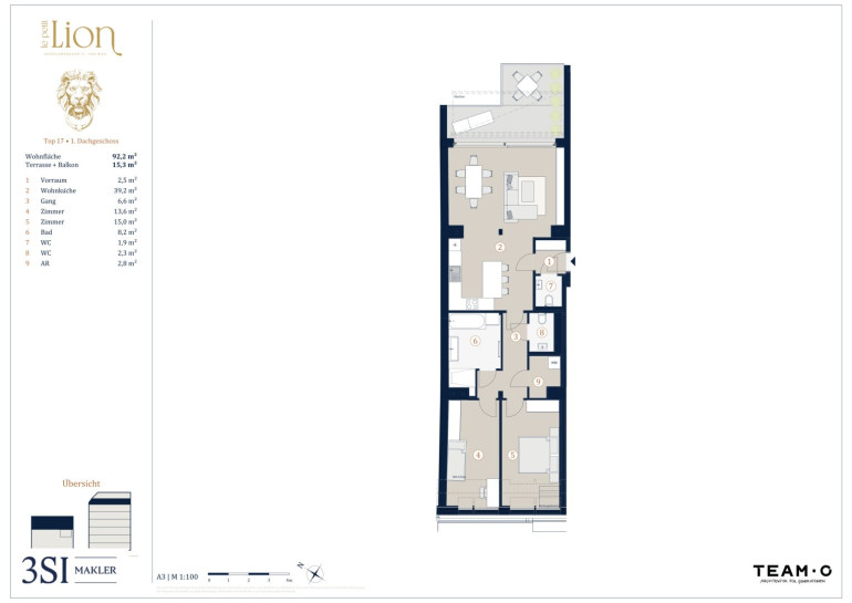
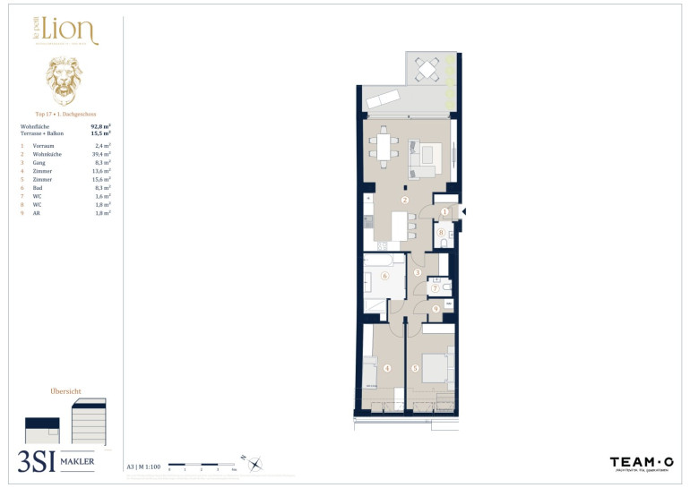
Top 17
Lichtdurchflutete 3-Zimmer Dachgeschosswohnung mit knapp 92m² Wohnfläche zzgl. Terrasse im 1.Dachgeschoss:
- Vorraum / Garderobe
- Gäste-WC
- Wirtschaftsraum mit Waschmaschinenanschluss
- Wohnküche
- Terrasse
- Bad mit Wanne und zweitem WC
- 2 Schlafzimmer
"Ein Juwel der Wiener Lebenskunst" - Die Lage
LE PETIT LION liegt im Herzen des Servitenviertels, einer der begehrtesten Wohngegenden Wiens, bekannt für seinen charmanten, historischen Charakter und seine zentrale Lage. Die schmalen Gassen mit prächtigen Altbauten verleihen dem Viertel eine fast dörfliche Atmosphäre mitten in der Stadt. Die Nähe zur Universität, zum Lycée Français de Vienne und weiteren Bildungseinrichtungen macht die Gegend besonders attraktiv für Familien und Studierende. Kulinarische Genießer kommen am Wochenmarkt und in den angrenzenden Gassen mit ihren hübschen Geschäften und Lokalen auf ihre Kosten. Der nahe liegende Liechtensteinpark bietet zudem einen Ort der Ruhe und Erholung
Zu Fuß
- U4-Station Roßauer Lände – 5 Minuten
- Servitenkirche – 4 Minuten
- Liechtensteinpark – 10 Minuten
Mit den Öffis
- Stephansplatz – 17 Minuten
- Wien Mitte – 12 Minuten
- Universität Wien – 12 Minuten
Nebenkosten
Der guten Ordnung halber halten wir fest, dass, sofern im Angebot nicht anders vermerkt, bei erfolgreichem Abschlussfall eine Provision anfällt, die den in der Immobilienmaklerverordnung BGBI. 262 und 297/1996 festgelegten Sätzen entspricht – das sind 3 % des Kaufpreises zzgl. 20% USt. Diese Provisionspflicht besteht auch dann, wenn Sie die Ihnen überlassenen Informationen an Dritte weitergeben. Letztlich weisen wir darauf hin, dass wir als Doppelmakler tätig sind und ein familiäres/wirtschaftliches Naheverhältnis zwischen der 3SI Makler GmbH und der Verkäuferin besteht.
Die Vertragserrichtung und Treuhandabwicklung ist gebunden an die Kanzlei Engindeniz Rechtsanwälte, Marc-Aurel-Straße 6/5, 1010 Wien. Die Kosten betragen 1,5 % des Kaufpreises zzgl. 20 % USt. sowie Barauslagen und Beglaubigung. Bei Fremdfinanzierung erhöht sich das Honorar auf 1,8 % vom Kaufpreis zzgl. Barauslagen und Beglaubigung.
Wir weisen darauf hin, dass zwischen dem Vermittler und dem zu vermittelnden Dritten ein familiäres oder wirtschaftliches Naheverhältnis besteht.
Der Vermittler ist als Doppelmakler tätig.
Infrastruktur / Entfernungen
Gesundheit
Arzt <125m
Apotheke <175m
Klinik <350m
Krankenhaus <1.300m
Kinder & Schulen
Schule <125m
Kindergarten <400m
Universität <325m
Höhere Schule <725m
Nahversorgung
Supermarkt <125m
Bäckerei <175m
Einkaufszentrum <1.800m
Sonstige
Geldautomat <175m
Bank <175m
Post <500m
Polizei <275m
Verkehr
Bus <175m
U-Bahn <250m
Straßenbahn <200m
Bahnhof <250m
Autobahnanschluss <1.625m
Angaben Entfernung Luftlinie / Quelle: OpenStreetMap
Eckdaten Objektnr. 20603
Art: | Wohnung |
Land: | Österreich |
Baujahr: | 1900 |
Zustand: | Erstbezug |
Alter: | Altbau |
Kaufpreis: | 1.295.000,00 € |
Provision: | 46.620,00 € inkl. 20% USt. |
Wohnfläche: | 91,40 m² |
Zimmer: | 3 |
Bäder: | 2 |
WC: | 2 |
Balkone: | 1 |
Heizwärmebedarf: | C 98,00 kWh/m²a |
fGEE: | C 1,71 |
Ausstattung
Estrichboden, Fliesen, Parkett, Fußbodenheizung, Wohnküche / offene Küche, Personenaufzug, Dusche
Ihre persönliche Beratung

Bianca Benesch
IMMOfair
T +43 1 607 58 58 - 53
H +43 676 75 69 471
F +43 1 607 55 80