Tiefgaragenstellplatz in Feldkirch/Nofels zu mieten

6800 Feldkirch , Sebastian-Kneipp-Straße


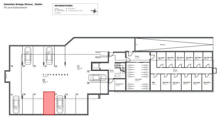
In der Sebastian-Kneipp-Straße 18+18a in Nofels.

Beschreibung der Immobilie

Tiefgaragenstellplatz in Feldkirch/Nofels zu mieten

vermietet wird in einer gepflegten Anlage ein KFZ-Abstellplatz in der Tiefgarage.



  • Stellplatz Nr. 18
  • Helle Tiefgarage
  • E-Ladestation vorhanden (für Bewohner nutzbar


Unsere Angaben beziehen sich auf die Auskünfte des Eigentümers. Irrtum und Änderungen vorbehalten.



Noch nichts gefunden? Wir informieren Sie über geeignete Immobilienangebote noch vor allen anderen.
Legen Sie jetzt kostenlos Ihren individuellen Suchagenten unter folgendem Link an. Wir schicken Ihnen passende Immobilien exklusiv vorab zu.

Suchagent anlegen


Wir weisen darauf hin, dass zwischen dem Vermittler und dem zu vermittelnden Dritten ein familiäres oder wirtschaftliches Naheverhältnis besteht.


Der Vermittler ist als Doppelmakler tätig.

Infrastruktur / Entfernungen

Gesundheit
Arzt <1.000m
Apotheke <500m
Krankenhaus <2.750m

Kinder & Schulen
Schule <500m
Kindergarten <500m
Höhere Schule <3.000m
Universität <3.000m

Nahversorgung
Supermarkt <750m
Bäckerei <500m
Einkaufszentrum <3.000m

Sonstige
Bank <500m
Geldautomat <500m
Post <500m
Polizei <2.750m

Verkehr
Bus <250m
Bahnhof <2.000m
Autobahnanschluss <4.250m

Angaben Entfernung Luftlinie / Quelle: OpenStreetMap

Eckdaten Objektnr. 5681/523

Land: Österreich
Gesamtmiete: 99,00
Kaltmiete (netto): 82,50 €
Kaltmiete: 82,50 €
Provision: 1 Bruttomonatsmiete zzgl. 20% USt.
MwSt Gesamt: 16,50 €
Stellplätze: 1
Immobilie merken Exposé

Immobilie anfragen


Ihre persönliche Beratung

Rimo Immobilien GmbH

Daniel Marte

Rimo Immobilien GmbH

T +43 5522 39303 28