ERSTBEZUG Top sanierter Stilaltbau nahe Wiedner Hauptstraße
Wohnung
- Etage,
1050
Wien
,
Reinprechtsdorfer Straße
Diese attraktive Etagenwohnung in der Reinprechtsdorfer Straße besticht durch ihre ideale Lage im aufstrebenden Stadtteil. Die Südwest-Ausrichtung sorgt für lichtdurchflutete Räume und eine angenehme Atmosphäre. In unmittelbarer Nähe finden Sie den Matzleinsdorfer Platz mit S-Bahn-Anbindung sowie zahlreiche Einrichtungen wie Arzt, Apotheke, Schule, Kindergarten und Supermärkte. Die ausgezeichnete Verkehrsanbindung mit U-Bahn, Straßenbahn und Bus macht diese Lage besonders lebenswert. Entdecken Sie urbanes Wohnen in perfekter Erreichbarkeit!
Beschreibung der Immobilie
ERSTBEZUG Top sanierter Stilaltbau nahe Wiedner Hauptstraße
ERSTBEZUG Top sanierter Stilaltbau in der Reinprechtsdorfer Straße nahe der Wiedner Hauptstraße
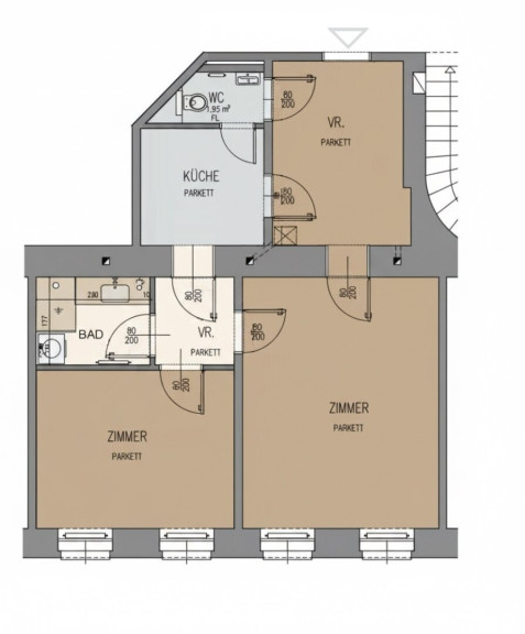
Diese attraktive Etagenwohnung befindet sich im 1. Stock eines schönen Altbauhauses mit Lift und bietet Ihnen auf 61,23 m² alles, was Sie für ein angenemes Leben benötigen. Mit 2 hellen Zimmern, also Wohnzimmer und Schlafzimmer, einem Bad, Vorraum und WC, sowie einem separaten Raum für die Küche eignet sich diese Wohnung ideal für ein kleine Familie, die auf der Suche nach einer wertstabilen Immobilie in innerstädtischen Lage sind. Der faire Kaufpreis macht dieses Angebot noch attraktiver.
Die Wohnung ist ein Erstbezug und besticht durch hochwertige Ausstattungsmerkmale wie Parkettböden, eine Gaskombitherme für Heizung und Warmwasser und einen Aufzug, der Ihnen den Zugang erleichtert. Das hochwertige Badezimmer ist mit einer Dusche, einem Handtuchheizkörper, einem Waschmaschinenanschluss und einem Waschbecken ausgestattet, das WC ist separat und vom Vorraum begehbar.
Die hervorragende Verkehrsanbindung ist ein weiteres Highlight dieser Immobilie. In unmittelbarer Nähe finden Sie Bus- und U-Bahn-Stationen sowie Straßenbahn- und Bahnhofsanbindungen, die Ihnen eine schnelle Erreichbarkeit aller Stadtteile garantieren.
Die Umgebung bietet eine Vielzahl an Annehmlichkeiten, die Ihren Alltag erleichtern. Direkt vor dem Haus befindet ich die Reinprechsdorfer Straße und in unmittelbarer nähe die Wiedner Hauptstraße, mit ihren umfangreichen Einkaufsmöglichkeiten Nur wenige Gehminuten entfernt befinden sich Ärzte und Apotheken, sowie Schulen und Kindergärten. Zudem stehen Ihnen Supermärkte, Bäckereien und ein Einkaufszentrum zur Verfügung, sodass Sie alles Wichtige in kurzer Distanz erreichen können.
Diese Wohnung bietet nicht nur ein Zuhause, sondern auch eine wertvolle Investition in Ihre Zukunft. Kontaktieren Sie uns jederzeit für weitere Informationen oder um einen Besichtigungstermin zu vereinbaren!
Besichtigungstermine sind jederzeit möglich, auch am Wochenende, unter 0664 38 17 061 - Anton Robert De Icco
Wir weisen darauf hin, dass zwischen dem Vermittler und dem zu vermittelnden Dritten ein familiäres oder wirtschaftliches Naheverhältnis besteht.
Der Vermittler ist als Doppelmakler tätig.
Infrastruktur / Entfernungen
Gesundheit
Arzt <250m
Apotheke <250m
Klinik <1.000m
Krankenhaus <750m
Kinder & Schulen
Schule <250m
Kindergarten <250m
Universität <750m
Höhere Schule <1.000m
Nahversorgung
Supermarkt <250m
Bäckerei <250m
Einkaufszentrum <1.000m
Sonstige
Geldautomat <250m
Bank <250m
Post <250m
Polizei <750m
Verkehr
Bus <250m
U-Bahn <500m
Straßenbahn <500m
Bahnhof <500m
Autobahnanschluss <3.000m
Angaben Entfernung Luftlinie / Quelle: OpenStreetMap
Eckdaten Objektnr. 5570/527
Art: | Wohnung - Etage |
Land: | Österreich |
Baujahr: | 1900 |
Zustand: | Erstbezug |
Alter: | Altbau |
Kaufpreis: | 298.889,00 € |
Provision: | 3% des Kaufpreises zzgl. 20% USt. |
Betriebskosten: | 140,83 € |
MwSt Gesamt: | 15,92 € |
Wohnfläche: | 61,23 m² |
Nutzfläche: | 61,23 m² |
Zimmer: | 2,50 |
Bäder: | 1 |
WC: | 1 |
Heizwärmebedarf: | C 60,10 kWh/m²a |
fGEE: | C 1,28 |
Ausstattung
Parkett, Gas, Etagenheizung, Personenaufzug, Dusche
Ihre persönliche Beratung

Anton De Icco
Kirschner Immo GmbH
T +43 664 3817061