Freistehendes Einfamilienhaus mit Keller – 166m2 Nutzfläche - Ökologisch, modern, sofort bezugsfertig
Haus
,
1220
Wien
1220 Wien
Beschreibung der Immobilie
Freistehendes Einfamilienhaus mit Keller – 166m2 Nutzfläche - Ökologisch, modern, sofort bezugsfertig
Freistehendes Einfamilienhaus mit Keller – 166m² Nutzfläche - Ökologisch, modern, sofort bezugsfertig
---ENGLISH VERSION BELOW---
In einer ruhigen Seitenstraße des 22. Bezirks, eingebettet zwischen moderner Infrastruktur und naturnaher Umgebung, wartet dieses schlüsselfertige Einzelhaus in der Zehdengasse mit 166m² Nutzfläche auf seine neuen Eigentümer. Es ist das letzte verfügbare Haus dieser Qualität und Bauweise – eine Gelegenheit für all jene, die zeitgemäßes Wohnen mit hohem Anspruch an Komfort, Nachhaltigkeit und Lebensqualität verbinden möchten.
Wohnen auf drei Ebenen – durchdacht und hochwertig ausgestattet
Auf rund 111 m² Wohnfläche zuzüglich einem ausgebauten Keller mit ca. 55 m² sowie einem vorbereiteten Dachboden entfaltet sich ein großzügiges Zuhause mit viel Platz für Familie, Freizeit und Homeoffice. Die Räume sind funktional geschnitten und bieten durch große Fensterflächen viel Tageslicht.
Das Erdgeschoss überzeugt mit einem offenen Wohn-Essbereich, direktem Ausgang auf die Terrasse und in den Garten. Im Obergeschoss befinden sich drei Schlafzimmer sowie ein modernes Badezimmer. Der voll ausgebaute Keller bietet zahlreiche Nutzungsmöglichkeiten – ob als Hobbyraum, Fitnessbereich oder Gästeetage.
Ausstattung mit Anspruch
Das Haus wurde in ökologischer Holzbauweise von ELK errichtet und besticht durch eine hochwertige Innenausstattung:
Großformatiges Feinsteinzeug
Österreichischer Dielen-Echtholzparkett
Sanitärkeramik von Villeroy & Boch
Fußbodenheizung über Luftwärmepumpe
Leerverohrung für Klimaanlage & Photovoltaik
Ein eigener PKW-Stellplatz ist ebenfalls inkludiert.
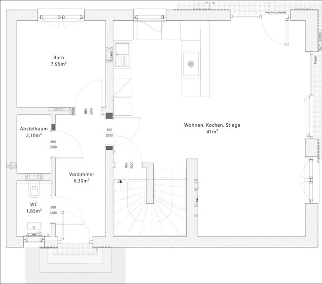
Erdgeschoss (EG)
Vorraum / Eingangsbereich
Abstellraum
Gäste-WC
Büro/Zimmer 1
Offener Wohn- und Essbereich mit Küche
Ausgang zur Terrasse und in den Garten
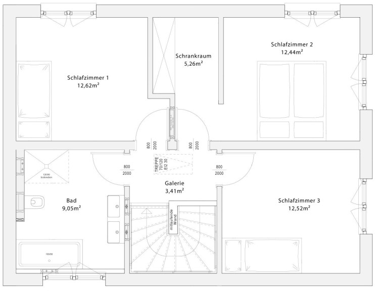
Obergeschoss (OG)
Flur
Zimmer 2 mit Schrankraum (Eltern)
Zimmer 3 (Kind/Gäste/Büro)
Zimmer 4 (Kind/Gäste/Büro)
Großes Badezimmer mit Badewanne, Dusche und WC
Kellergeschoss (KG)
Großer Hobbyraum / Fitnessraum / Homeoffice
Technikraum / Hauswirtschaftsraum
Lagerraum / zusätzlicher Abstellbereich
Dachgeschoss (DG)
Vorbereitet zur Nutzung (z. B. Ausbaureserve oder Stauraum)
Garten, Terrasse & Ihr eigener Rückzugsort
Der ca. 100 m² große Garten mit zusätzlicher 20 m² Terrasse schafft Raum für Entspannung, Spiel und kreative Gartengestaltung – ob Hochbeet, Loungezone oder Whirlpool, hier ist fast alles möglich.
Die Mikrolage: Grün. Ruhig. Urban.
Die Zehdengasse liegt im beliebten Teil von Kagran – einem Stadtteil, der urbanes Leben mit hoher Lebensqualität verbindet. In unmittelbarer Umgebung finden Sie:
Kindergärten, Schulen & internationale Bildungseinrichtungen
Parkanlagen und Naherholungsgebiete
UNO-City & Vienna International Centre
Einkaufszentren wie Donau Zentrum
Optimale Anbindung an U1 (Kagraner Platz) & U2
Dank ruhiger Seitenlage genießen Sie Privatsphäre – und sind dennoch in wenigen Minuten im Zentrum Wiens oder auf der Donauinsel.
Eckdaten im Überblick
Ca. 110,75 m² Wohnfläche
Ca. 55 m² Kellerfläche
Vorbereiteter Dachboden
Ca. 100 m² Garten + 20 m² Terrasse
1 PKW-Stellplatz
Holzriegelbauweise von ELK
Schlüsselfertige Übergabe
Nebenkosten sparen dank Konjunkturpaket
Profitieren Sie jetzt vom Wohnbau-Förderpaket der Bundesregierung und sparen Sie bis zu EUR 16.500,– an Nebenkosten (Grundbuch & Pfandrecht).
Mehr Infos hier
Jetzt besichtigen und einziehen
Einziehen statt planen – dieses bezugsfertige Einfamilienhaus bietet alles, was moderne Familien suchen. Vereinbaren Sie noch heute einen Besichtigungstermin.
Vertragserrichtung über Eckert Fries Carter Rechtsanwälte GmbH.
---ENGLISH VERSION---
Modern Detached Family Home on Zehdengasse – Turnkey, Eco-Friendly, and Spacious
Nestled in a quiet side street of Vienna’s 22nd district, surrounded by modern infrastructure and green spaces, this turnkey detached home on Zehdengasse is ready to welcome its new owners. It is the last available house of this quality and design in the neighborhood – a rare opportunity for those seeking contemporary living with a strong focus on comfort, sustainability, and quality of life.
Living Across Three Levels – Thoughtfully Designed and High-End
With approx. 110 m² of living space, an additional 55 m² fully developed basement, and a prepared attic, this home offers generous room for family life, leisure, and working from home. The layout is functional, and large windows provide plenty of natural light throughout.
The ground floor features an open-plan living and dining area with direct access to the terrace and garden. Upstairs, you'll find three bedrooms and a stylish, modern bathroom. The fully finished basement offers flexible use – perfect for a hobby room, home gym, or guest space.
Premium Features with a Sustainable Focus
Built in ecological timber construction by ELK, the home impresses with its high-quality interior finishes:
Large-format porcelain stoneware tiles
Genuine Austrian oak wood flooring
Sanitaryware by Villeroy & Boch
Underfloor heating powered by an air-source heat pump
Empty conduits for air conditioning & photovoltaic system
One private parking space is included
Garden, Terrace & Your Private Retreat
The approx. 100 m² garden and additional 20 m² terrace offer the perfect outdoor escape – whether for relaxation, play, or your own creative garden design. Raised beds, a lounge area, or even a whirlpool – it’s all possible here.
Location Highlights: Green. Quiet. Urban.
Zehdengasse is located in the sought-after area of Kagran – a district that combines urban living with excellent quality of life. In the immediate vicinity, you’ll find:
Kindergartens, schools & international education centers
Parks and recreational areas
UNO City & Vienna International Centre
Shopping centers like Donau Zentrum
Excellent connections via U1 (Kagraner Platz) & U2
Despite its quiet location, you’re just minutes away from Vienna’s city center or the Danube Island.
Key Facts at a Glance
Approx. 110.75 m² living space
Approx. 55 m² basement space
Prepared attic
Approx. 100 m² garden + 20 m² terrace
1 private parking space
Timber construction by ELK
Turnkey handover
Save on Ancillary Costs Thanks to Government Incentives
Take advantage of the Austrian housing stimulus package and save up to EUR 16,500 in ancillary costs (land registry & mortgage fees).
[More information here]
Ready to Move In – Schedule Your Viewing Today
Why plan when you can move in right away? This fully finished family home has everything modern families are looking for. Contact us today to arrange a viewing!
Contract execution via Eckert Fries Carter Rechtsanwälte GmbH.
Infrastruktur / Entfernungen
Gesundheit
Arzt <500m
Apotheke <500m
Klinik <3.000m
Krankenhaus <2.500m
Kinder & Schulen
Schule <500m
Kindergarten <500m
Universität <1.000m
Höhere Schule <1.500m
Nahversorgung
Supermarkt <500m
Bäckerei <1.000m
Einkaufszentrum <1.500m
Sonstige
Geldautomat <1.500m
Bank <1.500m
Post <1.000m
Polizei <1.500m
Verkehr
Bus <500m
U-Bahn <1.000m
Straßenbahn <1.000m
Bahnhof <1.000m
Autobahnanschluss <3.000m
Angaben Entfernung Luftlinie / Quelle: OpenStreetMap
Eckdaten Objektnr. 5675/473
Art: | Haus |
Land: | Österreich |
Baujahr: | 2024 |
Zustand: | Erstbezug |
Alter: | Neubau |
Kaufpreis: | 978.500,00 € |
Provision: | 3% des Kaufpreises zzgl. 20% USt. |
Wohnfläche: | 111,00 m² |
Nutzfläche: | 166,00 m² |
Grundstücksfl.: | 220,00 m² |
Zimmer: | 5 |
Bäder: | 1 |
WC: | 2 |
Terrassen: | 1 |
Stellplätze: | 1 |
Garten: | 100,00 m² |
Keller: | 55,00 m² |
Heizwärmebedarf: | B 41,00 kWh/m²a |
fGEE: | A+ 0,64 |
Ausstattung
Parkett, Fliesen, Fußbodenheizung, Zentralheizung, Bad mit Fenster, Badewanne, Dusche, Parkplatz, Wasch/Trockenraum
Ihre persönliche Beratung

Julia Pauer
VIEMMO Real Estate GmbH
H +43 676 55 33 478