TOP LAGE Puntigam | NEUBAUWOHNUNG | samt Carportstellplatz und Balkon
Wohnung
,
8055
Graz,17.Bez.:Puntigam
,
Passinigasse 1
In unmittelbarer Nähe befinden sich diverse Nahversorger, Schulen und Ärzte. Direkt vor der Haustüre befindet sich eine Bushaltestelle mit den Linien 65 und 78. Top zentrale Lage mit einer Top Infrastruktur
Beschreibung der Immobilie
TOP LAGE Puntigam | NEUBAUWOHNUNG | samt Carportstellplatz und Balkon
Diese wunderschöne Wohnung in der 2. Etage eines gepflegten Gebäudes bietet Ihnen alles, was Sie für ein komfortables und modernes Leben benötigen.
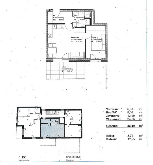
Mit einer großzügigen Fläche von 48,10 m² und zwei Zimmern ist diese Wohnung ideal für Singles oder Paare, die Wert auf eine angenehme Wohnatmosphäre legen. Die offene Wohnküche ist nicht nur praktisch, sondern auch einladend – perfekt für gesellige Abende mit Freunden oder gemütliche Kochabende zu zweit. Die hochwertige Einbauküche wird Ihre Kochkünste unterstützen und lässt keine Wünsche offen.
Ein besonderes Highlight dieser Wohnung ist der Westbalkon, von dem aus Sie einen atemberaubenden Stadt- und Fernblick genießen können. Stellen Sie sich vor, wie Sie nach einem langen Arbeitstag bei einem Glas Wein auf Ihrem Balkon entspannen und den Sonnenuntergang über Graz beobachten.
Die Wohnung ist zudem mit modernen Annehmlichkeiten ausgestattet, die Ihren Alltag erleichtern. Die Fußbodenheizung sorgt in den kalten Monaten für wohlige Wärme, während das Bad mit Fenster und Dusche Ihnen einen Rückzugsort für entspannende Wellnessmomente bietet.
Ein Stellplatz in Form eines Carports ist ebenfalls Teil des Angebots, was Ihnen das Parken in der Stadt erheblich erleichtert.
Zögern Sie nicht und vereinbaren Sie noch heute einen Besichtigungstermin! Ihr neues Zuhause wartet auf Sie!
Wir weisen darauf hin, dass zwischen dem Vermittler und dem zu vermittelnden Dritten ein familiäres oder wirtschaftliches Naheverhältnis besteht.
Der Immobilienmakler erklärt, dass er – entgegen dem in der Immobilienwirtschaft üblichen Geschäftsgebrauch des Doppelmaklers – einseitig nur für den Vermieter tätig ist.
Infrastruktur / Entfernungen
Gesundheit
Arzt <200m
Apotheke <800m
Klinik <4.725m
Krankenhaus <2.125m
Kinder & Schulen
Schule <375m
Kindergarten <475m
Universität <4.525m
Höhere Schule <4.825m
Nahversorgung
Supermarkt <350m
Bäckerei <1.375m
Einkaufszentrum <875m
Sonstige
Geldautomat <275m
Bank <275m
Post <875m
Polizei <1.475m
Verkehr
Bus <25m
Straßenbahn <1.075m
Autobahnanschluss <1.500m
Bahnhof <1.125m
Flughafen <3.725m
Angaben Entfernung Luftlinie / Quelle: OpenStreetMap
Eckdaten Objektnr. 7585/19551
| Art: | Wohnung |
| Land: | Österreich |
| Zustand: | Gepflegt |
| Alter: | Neubau |
| Gesamtmiete: | 908,36 € |
| Kaltmiete (netto): | 494,58 € |
| Kaltmiete: | 747,07 € |
| Provision: | Gemäß Erstauftraggeberprinzip bezahlt der Abgeber die Provision. |
| Betriebskosten: | 201,33 € |
| Heizkosten: | 68,05 € |
| MwSt Gesamt: | 93,24 € |
| Wohnfläche: | 48,10 m² |
| Zimmer: | 2 |
| Bäder: | 1 |
| WC: | 1 |
| Balkone: | 1 |
| Stellplätze: | 1 |
| Keller: | 3,75 m² |
| Heizwärmebedarf: | B 33,99 kWh/m²a |
| fGEE: | A+ 0,69 |
Ausstattung
Fernwärme, Fußbodenheizung, Einbauküche, Wohnküche / offene Küche, Westbalkon, Bad mit Fenster, Dusche, Carport
Ihre persönliche Beratung
Beate Budai
ROTO Immobilien Gmbh & Co KG
H +4366488221902