Traumhaft sanierter Altbauwohnung in der Clusiusgasse!
Wohnung
,
1090
Wien
Beschreibung der Immobilie
Traumhaft sanierter Altbauwohnung in der Clusiusgasse!
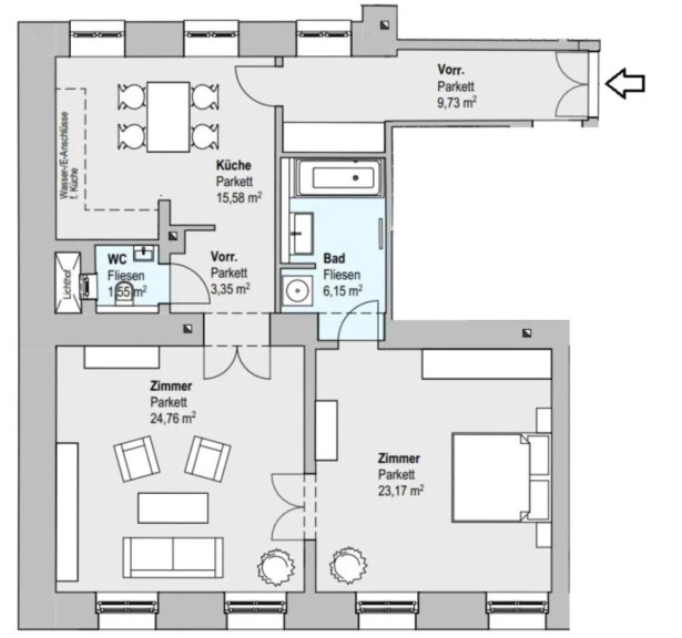
In unmittelbarer Nähe zur U-bahn gelangt diese knapp 85m² große, kernsanierte 3 Zimmerwohnung zum Verkauf! Sie liegt im 1. Liftstock eines gepflegten Hauses und weiß zu überzeugen. Hochwertiger neuer Echtholzparkettboden, altbautypische Flügeltüren und wundervolle Raumhöhen - diese Wohnung bietet viele Elemente für Altbauliebhaber. Hervorzuheben ist der großzügige Grundriss der Wohnung. Die beiden Zimmer bieten mit Größen von knapp 25m² und 23m² viele Nutzungs- und Einrichtungsmöglichkeiten. Im geräumigen Küchenraum sind sämtliche Anschlüsse für die Küchenzeile Ihrer Wahl vorhanden - auch ein großer Esstisch findet Platz. Das geschmackvoll verflieste Ensuite - Badezimmer wurde mit einer Badewanne, einem Handwaschbecken und einem Waschmaschinenanschluss versehen. Die separate Toilette sowie der geräumige Vorraum komplettieren das Immobilienangebot.
Aufteilung:
- Vorzimmer
- Küchenraum
- Wohnzimmer
- Schlafzimmer
- Ensuite- Badezimmer mit Badewanne
- separate Toilette
Wir weisen darauf hin, dass zwischen dem Vermittler und dem zu vermittelnden Dritten ein familiäres oder wirtschaftliches Naheverhältnis besteht.
Der Vermittler ist als Doppelmakler tätig.
Infrastruktur / Entfernungen
Gesundheit
Arzt <500m
Apotheke <500m
Klinik <500m
Krankenhaus <1.500m
Kinder & Schulen
Schule <500m
Kindergarten <500m
Universität <500m
Höhere Schule <1.000m
Nahversorgung
Supermarkt <500m
Bäckerei <500m
Einkaufszentrum <2.000m
Sonstige
Geldautomat <500m
Bank <500m
Post <500m
Polizei <500m
Verkehr
Bus <500m
U-Bahn <500m
Straßenbahn <500m
Bahnhof <500m
Autobahnanschluss <1.500m
Angaben Entfernung Luftlinie / Quelle: OpenStreetMap
Eckdaten Objektnr. 6653/722
Art: | Wohnung |
Land: | Österreich |
Baujahr: | 1894 |
Zustand: | Erstbezug |
Alter: | Altbau |
Kaufpreis: | 643.750,00 € |
Provision: | 3% des Kaufpreises zzgl. 20% USt. |
Betriebskosten: | 208,39 € |
MwSt Gesamt: | 23,21 € |
Wohnfläche: | 84,71 m² |
Zimmer: | 3 |
Bäder: | 1 |
WC: | 1 |
Heizwärmebedarf: | D 145,40 kWh/m²a |
fGEE: | E 2,92 |
Ausstattung
Fliesen, Parkett, Gas, Etagenheizung, Personenaufzug, Badewanne, Kabel/Satelliten-TV
Ihre persönliche Beratung

Laurenz Schnitzer
Confido Immobilien GmbH
T +43 664 518 45 11
H +43 664 518 45 11