++PARNDORF++ Ein Zuhause am Wasser – wo jeder Tag wie Urlaub beginnt!

Haus - Einfamilienhaus, 2421 Kittsee


Beschreibung der Immobilie

++PARNDORF++ Ein Zuhause am Wasser – wo jeder Tag wie Urlaub beginnt!

Stellen Sie sich vor, Sie wachen auf, treten ans Fenster – und blicken auf den stillen See, in dem sich das Morgenlicht sanft spiegelt. Ein Moment der Ruhe, bevor der Tag beginnt. Dieses Gefühl von Weite, Naturverbundenheit und Geborgenheit begleitet Sie jeden Tag in diesem außergewöhnlichen Einfamilienhaus in Parndorf –  ein Ort, an dem man sofort ankommt und sich zuhause fühlt.



Direkt am Ufer des Badesees gelegen, vereint dieses Haus Luxus, Geborgenheit und Natur in perfekter Harmonie – und das nur rund 30 Minuten von Wien entfernt. Ob als Familienidyll oder Rückzugsort für Paare: Dieses Haus schafft Raum für Träume, Erinnerungen und wertvolle

Lebensmomente.



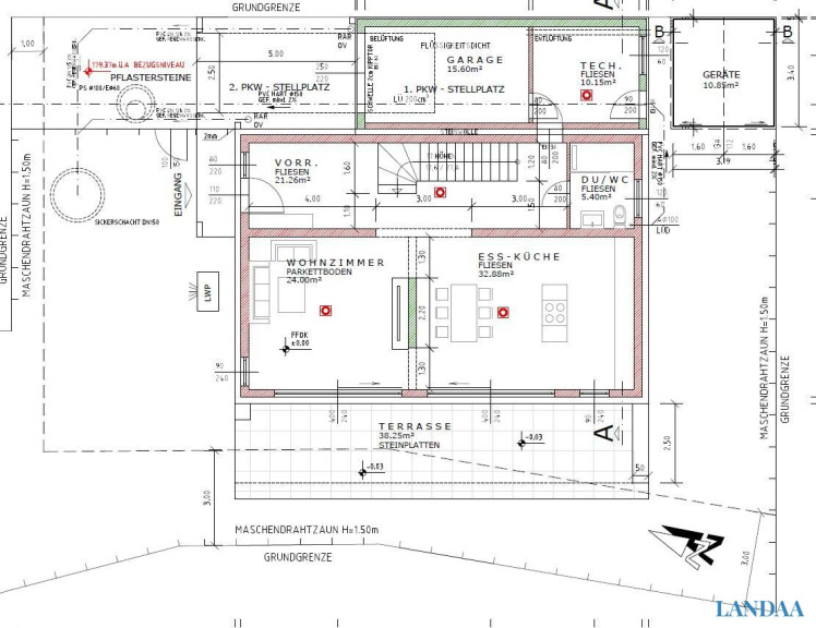
Raumaufteilung
Das Haus bietet insgesamt fünf großzügige Zimmer. Schon der Eingangsbereich beeindruckt mit einem eingebauten Aquarium, das sich harmonisch bis in den Wohnbereich zieht und für eine besondere Atmosphäre sorgt. Die helle Wohnküche im Erdgeschoss ist der zentrale Treffpunkt für gemeinsame Stunden. Ebenfalls im Erdgeschoss befinden sich ein Gästebadezimmer, der Zugang zur Garage sowie ein praktischer Technikraum.



Die großzügige Terrasse mit eingebautem Whirlpool bietet einen traumhaften Blick auf den See. Ein windgeschützter Bereich sowie ein Geräteschuppen sorgen für zusätzliche Funktionalität und Komfort.



Im Obergeschoss befinden sich vier Schlafzimmer, drei davon mit direktem Zugang zu einer Terrasse mit Seeblick – ideal, um den Tag mit einem tiefen Atemzug frischer Luft zu beginnen. Ein modernes, stilvoll gestaltetes Badezimmer rundet das Obergeschoss ab.



Highlights auf einen Blick




  • Direkte Seelage



  • Daikin Luftwärmepumpe und Klimaanlagen



  • Fußbodenheizung 



  • Prefa Dach



  • Zwei Terrassen mit Seeblick



  • Aquarium als stilvolles, beruhigendes Designelement



  • Dreifachverglasung und elektrische Rollläden



  • Ein Stellplatz vor dem Haus sowie ein weiterer in der Garage




Lage & Infrastruktur



Die Lage überzeugt: Parndorf bietet neben Nahversorgung (Billa Plus, Lidl, Hofer, DM, Apotheke) auch Ärzte, Kindergärten und Schulen in direkter Nähe. Die Wiener Stadtgrenze ist mit dem Auto in ca. 30 Minuten erreichbar, die S-Bahn bringt Sie in unter 25 Minuten ins Stadtzentrum. Für Freizeitliebhaber bieten der Badesee vor der Tür, der Marchfeldkanal und der Nationalpark Donau-Auen Erholung pur.



Dieses Haus ist mehr als nur ein Ort zum Wohnen – es ist ein Ort zum Leben.



Hier geht es zum virtuellen Rundgang: 

EG:  https://my.matterport.com/show/?m=nDSXRV8q7et
OG: https://my.matterport.com/show/?m=AhoYziho5Gf



Wir weisen darauf hin, dass zwischen dem Vermittler und dem Auftraggeber ein wirtschaftliches Naheverhältnis besteht. Der Vermittler ist als Doppelmakler tätig. Gerne stehen wir Ihnen bei Fragen oder einem zeitnahen Besichtigungswunsch zur Verfügung! Alle Angaben zum Objekt sind ohne Gewähr und basieren auf Informationen, die vom Eigentümer der Liegenschaft bzw. Dritten zur Verfügung gestellt wurden. Für Vollständigkeit, Richtigkeit und Aktualität aller Angaben und Abmessungen wird keine Gewähr übernommen.



Für weitere einzigartige und besondere Immobilien besuchen Sie uns auf www.landaa.at



„Auf Grund der neuen EU-Richtlinien zum Fernabsatz- und Auswärtsgeschäfte-Gesetz bitten wir um Ihr Verständnis, dass wir Ihnen seit 13. Juni 2014 die Objekt-Unterlagen erst nach Ihrer Bestätigung, dass Sie unser Tätigwerden wünschen und über Ihre Rücktrittsrechte aufgeklärt wurden, zusenden können. Bevor Sie die Unterlagen zugesendet bekommen, erhalten Sie eine Mail in der Sie diese beiden Punkte bestätigen müssen. Vielen Dank für Ihr Vertrauen!“


Wir weisen darauf hin, dass zwischen dem Vermittler und dem zu vermittelnden Dritten ein familiäres oder wirtschaftliches Naheverhältnis besteht.


Der Vermittler ist als Doppelmakler tätig.

Infrastruktur / Entfernungen

Gesundheit
Apotheke <2.000m
Arzt <2.000m
Klinik <5.000m
Krankenhaus <2.000m

Kinder & Schulen
Schule <4.500m
Kindergarten <2.500m
Universität <4.500m
Höhere Schule <4.500m

Nahversorgung
Supermarkt <500m
Bäckerei <500m
Einkaufszentrum <4.500m

Sonstige
Bank <2.000m
Geldautomat <500m
Post <2.000m
Polizei <5.500m

Verkehr
Bus <500m
Autobahnanschluss <1.000m
Straßenbahn <5.000m
Bahnhof <2.000m
Flughafen <9.000m

Angaben Entfernung Luftlinie / Quelle: OpenStreetMap

Eckdaten Objektnr. 4969

Art: Haus - Einfamilienhaus
Land: Österreich
Baujahr: 2021
Alter: Neubau
Kaufpreis: 950.000,00
Kaufpreis / m²: 5.104,51 €
Provision: 34.200,00 € inkl. 20% USt.
Wohnfläche: 186,11 m²
Nutzfläche: 186,11 m²
Grundstücksfl.: 450,00 m²
Zimmer: 5
Bäder: 2
WC: 2
Terrassen: 2
Stellplätze: 2
Garten: 70,00 m²
Heizwärmebedarf:  B  35,50 kWh/m²a
Immobilie merken Exposé

Ausstattung

Fußbodenheizung, Wohnküche / offene Küche, Bad mit Fenster, Badewanne, Garage


Immobilie anfragen


Ihre persönliche Beratung

LANDAA Immobilien GmbH

Andrej Jokic

Landaa Immobilienverwertung GmbH

H +43 660 4442751