Praxis / Ordination in absoluter Bestlage, Erstbezug nach Kernsanierung, Parterre
Büro / Praxis
,
1180
Wien
in unmittelbarer Nähe zum AKH, Währender Park, Nußdorfer Straße
Beschreibung der Immobilie
Praxis / Ordination in absoluter Bestlage, Erstbezug nach Kernsanierung, Parterre
Diese helle, ruhig gelegene und ostseitig ausgerichtete, ca. 75 m² große Wohnung befindet sich im Erdgeschoß eines vollständig sanierten Gründerzeithauses in bester Lage des 18. Bezirkes und besticht durch die Raumhöhe von in etwa 3,40 m, die für ein besonderes Wohlbefinden sorgt.
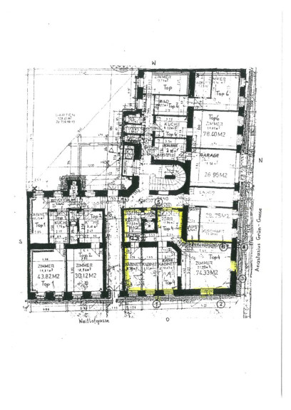
Die Räume sind zentral begehbar, das große Schlafzimmer kann ohne großen Aufwand (siehe Plan) in 2 Zimmer aufgeteilt werden und eignet sich optimal für eine Ordination oder Therapieräumlichkeiten.
Die große Küche bietet genügend Platz für einen Essbereich, von hier aus gelangt man über einen offenen Durchgang über 2 Stiegen in den großzügigen Hauptraum. Dieser verfügt zudem über einen Zugang vom Vorzimmer aus. Ein weiterer Raum mit angrenzendem Bad ist vom Vorzimmer und der Küche aus begehbar, vom Badezimmer gelangt man ins getrennte WC. Somit könnte man das geräumige Zimmer in 2 getrennte Räume unterteilen.
Die Wohnung verfügt über ausreichend Stauraum (großzügiges Vorzimmer) sowie ein Kellerabteil.
Die Wohnung wurde im Jahr 2023 komplett saniert und mit hochwertigem Weitzer-Parkett ausgestattet. Die Wohnung ist technisch in einem sehr guten Zustand und weist niedrige Betriebskosten auf. Das Badezimmer und WC wurde lediglich teilweise saniert (neue Armaturen) ist aber durchaus in einem guten und sofort nutzbaren Zustand.
Lage:
Sie erreichen die U-Bahn Station Nußdorfer Straße lediglich in 7 Gehminuten, eine Bushaltestelle befindet sich in unmittelbarer Nähe zum Objekt. Mit dem PKW erreichen Sie in 1 Minute den Gürtel, somit ist die Verkehrsanbindung sowohl für den öffentlichen als auch für den Individualverkehr optimal!
Sämtliche Geschäfte des täglichen Bedarfs sind fußläufig erreichbar.
Die unmittelbare Nähe zum schönen Währinger Park und auch zum Türkenschanzpark bietet Erholung und ein großes Freizeitangebot direkt vor der Haustüre!
Der Vermittler ist als Doppelmakler tätig.
Eckdaten Objektnr. 1623/50
Art: | Büro / Praxis |
Land: | Österreich |
Baujahr: | 1900 |
Zustand: | Neuwertig |
Alter: | Altbau |
Kaufpreis: | 379.000,00 € |
Kaufpreis / m²: | 5.098,88 € |
Provision: | 3% des Kaufpreises zzgl. 20% USt. |
Betriebskosten: | 139,19 € |
Heizkosten: | 80,00 € |
MwSt Gesamt: | 29,92 € |
Wohnfläche: | 74,33 m² |
Nutzfläche: | 3,40 m² |
Zimmer: | 2 |
Bäder: | 1 |
WC: | 1 |
Heizwärmebedarf: | D 150,00 kWh/m²a |
Ausstattung
Fliesen, Parkett, Gas, Zentralheizung, Badewanne, Kabel/Satelliten-TV
Ihre persönliche Beratung

Simone Klein
SFP Invest GmbH
T +436649688202