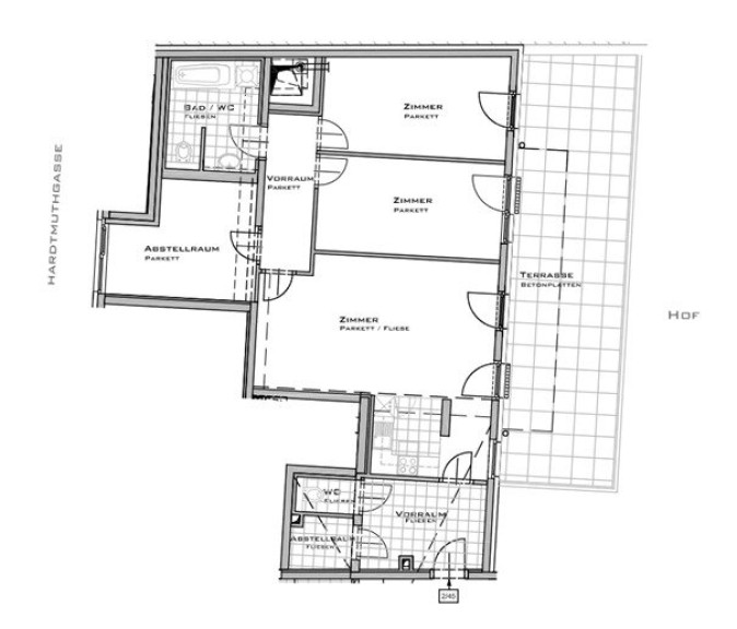
UNBEFRISTET, HOFRUHELAGE, 106 m2 Gewerbefläche mit 41 m2 Terrasse, 4 Zimmer, Küche, Sanitäranlagen, Parketten
                                                            Büro / Praxis
                                ,
                            
                            
                                
                                                                            1100
                                    
                                                                            Wien
                                    
                                    ,
                                        Hardtmuthgasse                                                                                    
                                    
                                
                                                                    
                                        
                                    
                                
                            
                        
                        HARDTMUTHGASSE ECKE BERNHARDTSTALGASSE mit bester Infrastruktur des 10. Bezirks (Troststraße, Gudrunstraße, Holbeingasse, Bernhardtstalgasse, Quellenstraße, Amalienbad, Laaer Berg) sowie perfekten Verkehrsverbindungen wie die U1-Station Troststraße, die Linien O, BB, 1, 6, 18, 11, 7A, 15A, 65A, 66A, N6, N65 sowie sämtliche Schnellbahnlinien und Fernzüge sind in unmittelbarer Nähe. Die Autobahnen A2, A1, S1, A4 erreichen Sie in wenigen Minuten.
Beschreibung der Immobilie
UNBEFRISTET, HOFRUHELAGE, 106 m2 Gewerbefläche mit 41 m2 Terrasse, 4 Zimmer, Küche, Sanitäranlagen, Parketten
IN DER HARTMUTHGASSE GELANGT DIESE CA. 105,94 m2 GEWERBEFLÄCHE MIT CA. 41,20 m2 TERRASSE IM ERDGESCHOSS ZUR UNBEFRISTETEN VERMIETUNG!
Vorzimmer, 4 Zimmer, Kochnische, ca. 41,20 m2 Terrasse Badezimmer mit WC, separates WC und Abstellraum
Ausstattung:
+ ca. 41,20 m2 Terrasse (südlich)
+ Küche mit Einbaugeräten
+ Badezimmer mit Badewanne, Waschtisch, WC und Waschmaschinenanschluss
+ separates WC mit Waschbecken
+ geräumiger Abstellraum
+ Parkettböden, Fliesenböden
+ hauseigene SAT/TV-Anlage, Telekabelfernsehanschluss
+ Gegensprechanlage
+ Aufzug 
+ Kinderspielplatz, Fahrrad-/Kinderwagenabstellraum
+ HWB 31,80 kWh/m2a
Lage
HARTMUTHGASSE ECKE BERNHARDTSTALGASSE mit bester Infrastruktur des 10. Bezirks (Troststraße, Gudrunstraße, Holbeingasse, Bernhardtstalgasse, Quellenstraße, Amalienbad, Laaer Berg) sowie perfekten Verkehrsverbindungen wie die U1-Station Troststraße, die Linien O, BB, 1, 6, 18, 11, 7A, 15A, 65A, 66A, N6, N65 sowie sämtliche Schnellbahnlinien und Fernzüge sind in unmittelbarer Nähe. Die Autobahnen A2, A1, S1, A4 erreichen Sie in wenigen Minuten.
Sonstiges
Gesamtmiete: € 1.577,66 inklusive Betriebskosten, 20 % MwSt
Fernwärme und Strom werden separat zur Vorschreibung gebracht!
Kaution: € 4.750,00 per Überweisung
3 BMM Vermittlungsprovision: € 4.732,99 inkl. 20 % MwSt.
unbefristete Hauptmiete, ablösefrei, Sofortbezug möglich!
1 Jahr Kündiungsverzicht, 3 Monate Kündigungsfrist
Anbindung öffentlicher Verkehr
die U1-Station Troststraße, die Linien O, BB, 1, 6, 18, 11, 7A, 15A, 65A, 66A, N6, N65 sowie sämtliche Schnellbahnlinien und Fernzüge sind in unmittelbarer Nähe.
Ansprechpartner: ALEXANDER ROS
Mob.-Tel. +43-664-466 52 02
E-Mail: alexander.ros@ros-real.at 
Wir weisen darauf hin, dass zwischen dem Vermittler und dem zu vermittelnden Dritten ein familiäres oder wirtschaftliches Naheverhältnis besteht.
Infrastruktur / Entfernungen
Gesundheit
Arzt <250m
Apotheke <500m
Klinik <750m
Krankenhaus <1.000m
Kinder & Schulen
Schule <500m
Kindergarten <250m
Universität <1.250m
Höhere Schule <1.750m
Nahversorgung
Supermarkt <250m
Bäckerei <250m
Einkaufszentrum <1.750m
Sonstige
Geldautomat <500m
Bank <500m
Post <500m
Polizei <250m
Verkehr
Bus <250m
U-Bahn <500m
Straßenbahn <500m
Bahnhof <1.000m
Autobahnanschluss <2.000m
Angaben Entfernung Luftlinie / Quelle: OpenStreetMap
Eckdaten Objektnr. 2141
| Art: | Büro / Praxis | 
| Land: | Österreich | 
| Alter: | Neubau | 
| Kaltmiete (netto): | 1.059,40 € | 
| Kaltmiete: | 1.314,72 € | 
| Provision: | 3 Bruttomonatsmieten zzgl. 20% USt. | 
| Betriebskosten: | 255,32 € | 
| MwSt Gesamt: | 262,94 € | 
| Nutzfläche: | 105,94 m² | 
| Zimmer: | 4 | 
| Bäder: | 1 | 
| WC: | 2 | 
| Terrassen: | 1 | 
| Heizwärmebedarf: | B 31,80 kWh/m²a | 
| fGEE: | B 0,94 | 
Ausstattung
Parkett, Fliesen, Zentralheizung, Einbauküche, Personenaufzug, Südbalkon, Badewanne, Kabel/Satelliten-TV
Ihre persönliche Beratung
 
                                                        Alexander Ros
ROS REALITÄTEN VERMITTLUNG OG - TESTACCOUNT
T +43 1 526 70 60 - 12
H +43 664 466 52 02
F +43 1 526 70 60 33
 
                 
                 
                 
                 
                 
                 
                 
                 
                 
                 
                 
                 
                 
                 
                 
                 
                 
                 
                 
                 
                 
                 
                 
                 
                 
                 
                 
                 
                 
                 
                 
                 
                 
                 
                 
                 
                 
                