Charmantes Anlageobjekt (Ferienwohnungsvermietung) - Zinshaus in Vordernberg
Zinshaus Renditeobjekt
,
8794
Vordernberg
8794 Vordernberg
Beschreibung der Immobilie
Charmantes Anlageobjekt (Ferienwohnungsvermietung) - Zinshaus in Vordernberg
961/35377
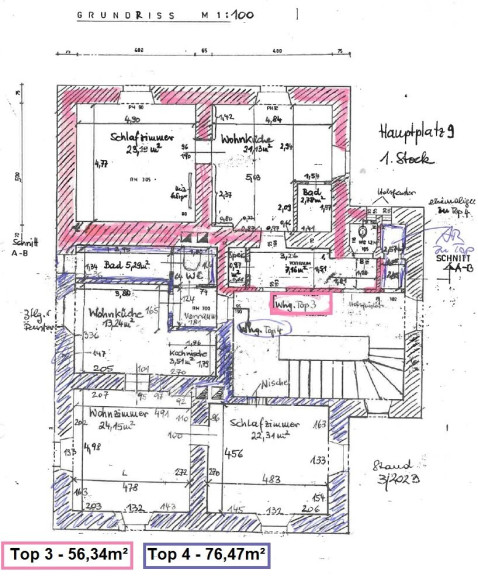
Direkt am Hauptplatz von Vordernberg befindet sich dieses charmante Zinshaus mit einer Gesamtnutzfläche von 388,36m² auf 7 Wohneinheiten verteilt.
Die jetzigen Eigentümer haben die Liegenschaft laufend instand gehalten und die Wohnungen über die Jahre hinweg modernisiert und saniert.
Am Objekt selbst wurden auch immer wieder Verbesserungen und Sanierungen durchgeführt:
1989 - Neueindeckung des Haupthauses mit Eternit Rhombus Schablonen
1996 - Anschluss an das öffentliche Kanalnetz
1998 - Erneuerung de E-Installation - neue Zählerstation, neue Zuleitungen zu den Wohnungen inkl. Wohnungsverteiler, Erneuerung der Antennenanlage, Einbau einer Gegensprechanlage
2000 - Einbau von neuen Kunststofffenstern mit Isolierverglasung
2002 - Anschluss an das örtliche Fernwärmenetz
2003 - Sanierung der Fassade
2012 - Sanierung des Dachstuhls beim zweigeschossigen Nebengebäude und Neueindeckung des Sattaldachs
Das Grundstück hat eine Größe von 954 m² und ist mit dem Zinshaus plus Nebengebäuden verbaut.
Im rückwärtigen Bereich steht eine Gratenhütte und es stehen Gartenflächen zur Verfügung.
Die Wohnungen wurden nach frei werden modernisiert und saniert.
Da Verkaufabsicht besteht wurden die Wohnungen nicht mehr neu vermietet um dem neuen Eigentümer sämtliche Entscheidungen wie eine Nachnutzung stattfinden soll zu überlassen.
Derzeit stehen 6 Wohnungen leer und lediglich im Dachgeschoss ist die Wohnung 6 mit 32,23m² vermietet.
| Wohnung 1 | 55,10 m² |
| Wohnung 2 | 67,05 m² |
| Wohnung 3 | 56,43 m² |
| Wohnung 4 | 76,47 m² |
| Wohnung 5 | 66,52 m² |
| Wohnung 6 | 32,23 m² |
| Wohnung 7 | 34,56 m² |
Vordernberg liegt am Fuße des Präbichls zwischen Trofaiach und Eisenerz und ist umgeben von den Eisenerzer Alpen und bietet ihnen eine Vielzahl an Möglichkeiten der Freizeitgestaltung.
Der Präbichl ist ein beliebtes Wintersportziel und bietet im Winter bestens präparierte Skipisten sowie ein abwechslungsreiches Angebot für Skifahrer und Snowboarder.
In den wärmeren Monaten lädt die Umgebung zu Wanderungen, Mountainbike-Touren, Kletterausflügen ein.
Auch der nahegelegene Erzberg, bekannt durch das spektakuläre Erzbergrodeo, ist ein Highlight für Motorsport- und Outdoor-Fans.
Die Eisenerzer Ramsau mit Langlaufloipe, Skisprungschanze und der Nahe gelegene LeopoldsteinerSee sind in wenigen Minuten erreichbar.
Im nahe gelegen Ort Landl werden Rafting, Canyoning und Kajaktouren angeboten.
Bei Interesse Kontaktaufnahme bitte per Mail - markus.letonja@sreal.at
Kaufpreis: € 229.000,-
HWB: 201,8 kWh/m²a
Honorar: 3% vom Kaufpreis zzgl. 20% MwSt.
Infrastruktur / Entfernungen
Gesundheit
Arzt <500m
Apotheke <7.000m
Kinder & Schulen
Schule <6.000m
Kindergarten <7.500m
Nahversorgung
Supermarkt <500m
Bäckerei <7.500m
Sonstige
Geldautomat <7.000m
Bank <7.000m
Polizei <7.500m
Post <500m
Verkehr
Bus <500m
Bahnhof <500m
Angaben Entfernung Luftlinie / Quelle: OpenStreetMap
Eckdaten Objektnr. 961/35377
| Art: | Zinshaus Renditeobjekt |
| Land: | Österreich |
| Baujahr: | 1860 |
| Kaufpreis: | 229.000,00 € |
| Provision: | 8.244,00 € inkl. 20% USt. |
| Nutzfläche: | 388,36 m² |
| Grundstücksfl.: | 954,00 m² |
| Heizwärmebedarf: | F 201,80 kWh/m²a |
| fGEE: | D 2,19 |
Ihre persönliche Beratung
Dieser Makler ist ein offizielles Mitglied des IR – ir.at Mehr Erfahren

