Wo Träume wohnen – charmantes Einfamilienhaus in bester Lage zu kaufen
Haus
- Mehrfamilienhaus,
6300
Wörgl
Dieses charmante Einfamilienhaus befindet sich in bevorzugter, sonniger Wohnlage im beliebten Ortsteil Winkl in Wörgl. Die ruhige Siedlungslage kombiniert angenehmes Wohnen im Grünen mit gleichzeitig ausgezeichneter Infrastruktur – ideal für Familien, Berufstätige oder Ruhesuchende. Die Immobilie liegt in einer kaum befahrenen Nebenstraße und bietet somit ein hohes Maß an Privatsphäre und Wohnqualität. Dennoch erreichen Sie das Stadtzentrum von Wörgl in nur wenigen Minuten, ebenso wie diverse Einkaufsmöglichkeiten, Schulen, Kindergärten, Ärzte und Freizeiteinrichtungen. Ein besonderer Pluspunkt ist die verkehrsgünstige Lage: Die Inntalautobahn (A12) sowie der Bahnhof Wörgl – einer der wichtigsten Verkehrsknoten im Tiroler Unterland – sorgen für eine schnelle Erreichbarkeit von Innsbruck, Kufstein, Kitzbühel und dem bayerischen Raum. Für Natur- und Sportliebhaber bieten die umliegenden Wälder, Felder und Berge ideale Möglichkeiten für Wandern, Radfahren und Wintersport. Die ruhige, naturnahe Umgebung macht das Wohnen hier besonders lebenswert. Wörgl Winkl 27 vereint alle Vorteile einer familienfreundlichen Wohnlage mit urbaner Nähe – eine wertstabile und zukunftssichere Investition in Ihr neues Zuhause!
Beschreibung der Immobilie
Wo Träume wohnen – charmantes Einfamilienhaus in bester Lage zu kaufen
Exklusiv bei Zefi Immobilien - Wo Träume wohnen – charmantes Einfamilienhaus in bester Lage zu kaufen
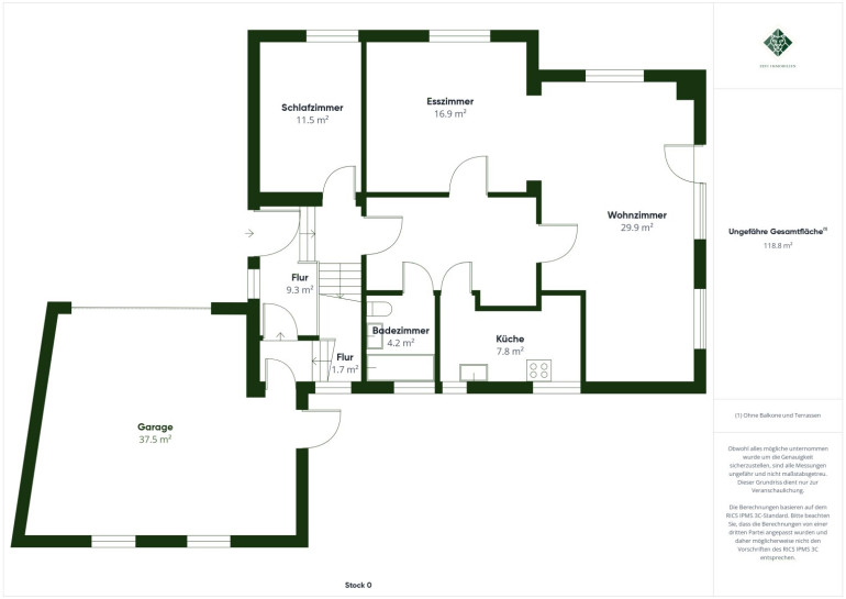
Einfamilienhaus mit Weitblick und Sonne den ganzen Tag – 705 m² Grund, 175 m² Wohnfläche, zentrumsnah & ruhig.
Zum Verkauf steht ein sehr gut erhaltenes Einfamilienhaus aus dem Jahr 1970 in begehrter Wohnlage von Wörgl-Winkl. Auf einem großzügigen Grundstück von 705 m² bietet dieses Haus mit 175 m² Wohnfläche viel Platz für Familien, Paare oder Individualisten, die naturnahes Wohnen mit urbaner Nähe verbinden möchten.
Die Immobilie besticht durch ihren traumhaften Ausblick, die sonnige Lage von morgens bis abends und ein durchdachtes Raumkonzept mit viel Licht und Flexibilität.
Raumaufteilung:
Erdgeschoss:
Großzügiger, heller Wohn- und Essbereich mit viel Tageslicht
Separate, gut ausgestattete Küche
Schlafzimmer
Badezimmer mit Badewanne, WC und Fenster
Obergeschoss:
3,5 individuell nutzbare Zimmer (ideal als Schlaf-, Kinder- oder Arbeitszimmer)
Bad mit Dusche und Fenster
Separates WC
Großer, umlaufender Balkon mit schönem Weitblick
Zusätzliche Flächen & Ausstattung:
Keller mit ca. 80 m², komplett gefliest – ideal als Hobby-, Lager- oder Wirtschaftsbereich
Große Doppelgarage mit direktem Zugang
Gepflegter Garten mit viel Grünfläche und Platz zum Entspannen oder Spielen
Ruhige, kaum befahrene Wohnstraße – zentrumsnah, aber dennoch absolut ruhig gelegen
Das Haus befindet sich in sehr gutem Zustand und wurde laufend instand gehalten. Es bietet eine solide Bausubstanz, großzügige Räume sowie Potenzial für individuelle Gestaltung oder Modernisierung.
Besonderheiten:
✓ Sehr ruhige Lage mit Zentrumsnähe
✓ Ganztägige Sonne
✓ Traumhafter Ausblick
✓ Großes Grundstück mit Garten
✓ Viel Stauraum & Flexibilität
Zögern Sie nicht und Vereinbaren Sie einen Besichtigungstermin.
Weitere interessante Immobilienangebote finden Sie auf zefi.at
Noch nichts gefunden? Wir informieren Sie über geeignete Immobilienangebote noch vor allen anderen.
Legen Sie jetzt Ihren individuellen Suchagenten unter folgendem Link an. Wir schicken Ihnen passende Immobilien exklusiv vorab zu.
Suchagent anlegen - https://zefi-immobilien.service.immo/registrieren/de
Der Vermittler ist als Doppelmakler tätig.
Infrastruktur / Entfernungen
Gesundheit
Arzt <1.000m
Apotheke <500m
Klinik <1.500m
Kinder & Schulen
Schule <1.000m
Kindergarten <500m
Höhere Schule <9.000m
Nahversorgung
Supermarkt <500m
Bäckerei <500m
Einkaufszentrum <1.000m
Sonstige
Bank <1.000m
Geldautomat <1.000m
Post <1.000m
Polizei <1.000m
Verkehr
Bus <500m
Autobahnanschluss <1.000m
Bahnhof <2.000m
Flughafen <9.500m
Angaben Entfernung Luftlinie / Quelle: OpenStreetMap
Eckdaten Objektnr. 5390/933
Art: | Haus - Mehrfamilienhaus |
Land: | Österreich |
Baujahr: | 1970 |
Zustand: | Gepflegt |
Möbliert: | Teil |
Alter: | Neubau |
Kaufpreis: | 990.000,00 € |
Provision: | 35.640,00 € inkl. 20% USt. |
Betriebskosten: | 80,00 € |
Heizkosten: | 90,00 € |
MwSt Gesamt: | 26,00 € |
Wohnfläche: | 175,00 m² |
Nutzfläche: | 230,00 m² |
Grundstücksfl.: | 705,00 m² |
Zimmer: | 6 |
Bäder: | 2 |
WC: | 2 |
Balkone: | 1 |
Terrassen: | 1 |
Stellplätze: | 3 |
Garten: | 500,00 m² |
Keller: | 80,00 m² |
Heizwärmebedarf: | F 231,80 kWh/m²a |
fGEE: | G 4,12 |
Ausstattung
Fliesen, Parkett, Öl, Zentralheizung, Einbauküche, Südbalkon, Bad mit Fenster, Badewanne, Dusche, Kabel/Satelliten-TV, Garage, Parkplatz
Ihre persönliche Beratung

Mike Rettkowski
Zefi Immobilien GmbH
T 05332 22818
H +43 681 84168667