Moderne Büroflächen in Gleisdorf – Vielseitige Fläche mit optimaler Anbindung
Büro / Praxis
- Bürofläche,
8200
Gleisdorf
Das Gebäude befindet sich in der Stadt Gleisdorf in der Steiermark, in der Nähe von verschiedenen Einrichtungen wie einem Arzt, einer Apotheke, Schulen, einem Kindergarten und einer Höheren Schule. Auch ein Supermarkt, eine Bäckerei, ein Geldautomat, eine Bank, eine Post, eine Polizeistation sowie eine Bushaltestelle und ein Bahnhof sind in unmittelbarer Nähe vorhanden. Durch den nahegelegenen Autobahnanschluss ist die Immobilie gut an das über
Beschreibung der Immobilie
Moderne Büroflächen in Gleisdorf – Vielseitige Fläche mit optimaler Anbindung
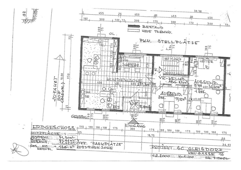
Willkommen in Ihrem neuen Büro in der lebendigen Stadt Gleisdorf, Steiermark! Diese Immobilie bietet Ihnen eine großzügige Nutzfläche von 232,13 m², ideal für Ihr Unternehmen. Die durchdachte Raumaufteilung und moderne Ausstattung schaffen die perfekte Arbeitsumgebung.
Raumaufteilung:
Im Erdgeschoss steht Ihnen eine:
- Großzügige Kundenzone mit 71,70 m² zur Verfügung, ideal für Empfangs- oder Wartebereiche und Arbeitsplätze
- Eine vielseitig nutzbare Bürofläche von 51,65 m²
- Ergänzt durch 14,65 m² Nebenfläche, bestehend aus Eingang-und Stiegenbereich
Im Untergeschoß erwarten Sie:
- Großer Besprechungsraum: 41,80 m²
- Zusätzlich gibt es 52,33 m² an Nebenflächen, die Abstellräume, Gang, WC, Stiegenhaus und Teeküche umfassen.
Die Gesamtbürofläche beträgt 165,15 m², ergänzt durch 67 m² Nebenflächen.
Die Immobilie wird mit Fernwärme beheizt, was nicht nur umweltfreundlich ist, sondern auch für niedrige Heizkosten sorgt. Zusätzlich stehen Ihnen öffentliche Parkplätze direkt vor der Immobilie in der Kurzparkzone zur Verfügung, so dass Ihre Mitarbeiter und Kunden immer einen sicheren und bequemen Parkplatz haben.
Die Lage ist unschlagbar: Mit einer hervorragenden Anbindung an öffentliche Verkehrsmittel wie Bus und Bahn sowie der Nähe zur Autobahn ist das Büro leicht erreichbar. Ihre Kunden und Mitarbeiter profitieren von der bequemen Lage in einer aufstrebenden Stadt mit einer dynamischen Geschäftsumgebung.
Die Räume bieten Ihnen flexible Nutzungsmöglichkeiten – ob offene Büroflächen, Besprechungsräume oder individuelle Arbeitsplätze. Gestalten Sie Ihr Büro ganz nach Ihren Vorstellungen und passen Sie die Flächen an Ihre spezifischen Bedürfnisse an.
Nutzen Sie diese Chance und sichern Sie sich Ihr neues Büro in Gleisdorf! Vereinbaren Sie noch heute einen Besichtigungstermin und überzeugen Sie sich selbst von den vielfältigen Möglichkeiten dieser Immobilie.
Wir freuen uns darauf, Ihnen bei der Umsetzung Ihrer geschäftlichen Ziele zu helfen!
Noch nichts gefunden? Wir informieren Sie über geeignete Immobilienangebote noch vor allen anderen.
Legen Sie jetzt Ihren individuellen Suchagenten unter folgendem Link an. Wir schicken Ihnen passende Immobilien exklusiv vorab zu.
Suchagent anlegen - https://immventure-real-estate.service.immo/registrieren/de
Hinweis gemäß Energieausweisvorlagegesetz: Ein Energieausweis wurde vom Eigentümer bzw. Verkäufer, nach unserer Aufklärung über die generell geltende Vorlagepflicht, sowie Aufforderung zu seiner Erstellung noch nicht vorgelegt. Daher gilt zumindest eine dem Alter und der Art des Gebäudes entsprechende Gesamtenergieeffizienz als vereinbart. Wir übernehmen keinerlei Gewähr oder Haftung für die tatsächliche Energieeffizienz der angebotenen Immobilie.
Wir weisen darauf hin, dass zwischen dem Vermittler und dem zu vermittelnden Dritten ein familiäres oder wirtschaftliches Naheverhältnis besteht.
Infrastruktur / Entfernungen
Gesundheit
Arzt <500m
Apotheke <500m
Klinik <10.000m
Kinder & Schulen
Schule <1.000m
Kindergarten <500m
Höhere Schule <500m
Nahversorgung
Supermarkt <500m
Bäckerei <500m
Sonstige
Geldautomat <500m
Bank <500m
Post <500m
Polizei <1.000m
Verkehr
Bus <500m
Bahnhof <500m
Autobahnanschluss <1.000m
Flughafen <8.500m
Angaben Entfernung Luftlinie / Quelle: OpenStreetMap
Eckdaten Objektnr. 7772/1140
Art: | Büro / Praxis - Bürofläche |
Land: | Österreich |
Kaufpreis: | 350.000,00 € |
Provision: | 3% des Kaufpreises zzgl. 20% USt. |
Betriebskosten: | 655,07 € |
Heizkosten: | 524,23 € |
MwSt Gesamt: | 235,86 € |
Nutzfläche: | 232,13 m² |
Bürofläche: | 165,15 m² |
Bäder: | 1 |
WC: | 2 |
Ausstattung
Fernwärme, Parkplatz, Teeküche
Ihre persönliche Beratung

Elena Wippel
Immventure Real Estate GmbH
T +43 676 66 210 66
H +43 660 56 95 234