Beschreibung der Immobilie
Historische Büroräume in der Alten Börse
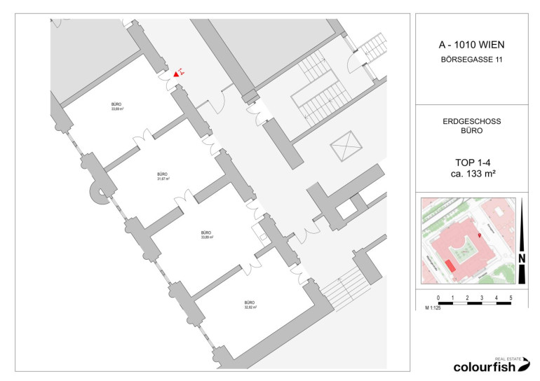
Im historischen Ringstraßenpalais Alte Börse kommen in einem der schönsten Wiener Bürohäuser attraktive Büroflächen zur Vermietung. Die Büros liegen im Erdgeschoß sind aber von der Straße nicht direkt einsehbar. Der aktuelle Grundriss gliedert sich in 4 separate Büroräume, die untereinander verbunden sind, zusätzlich ist jeder Raum auch einzeln vom allgemeinem Foyergang erschlossen. In einem der vier Räume ist eine Teeküche eingebaut, die Sanitäranlagen werden gemeinschaftlich genutzt. Die Flächen verfügen über eine zeitgemäße Kühlung über Fancoils. Die Oberflächen wurden kürzlich vom Eigentümer saniert!
Der begrünte und gestaltete Innenhof kann von den Mietern für Erholungszwecke genutzt werden. In der hauseigenen Tiefgarage können je nach Verfügbarkeit Dauerstellplätze dazu gemietet werden. Die Vermietung erfolgt befristet. Die zentrale Lage im ersten Bezirk in unmittelbarer Nähe zum Schottenring sorgt für eine erstklassige Infrastruktur und beste öffentliche Anbindung.
verfügbare Fläche/Konditionen:
EG: ca. 133 m² - netto € 19,90/m²/Monat
Betriebskosten: netto € 4,34/m²/Monat
Heiz- und Kühlkosten: netto € 2,61/m²/Monat
zusätzlich verfügbare Flächen/Konditionen:
1.OG: ca. 124 m² - netto € 19,90/m²/Monat
1.DG: ca. 300 m² - netto € 19,90/m²/Monat
Betriebskosten: netto € 4,34/m²/Monat
Heiz- und Kühlkosten: netto € 2,61/m²/Monat
Alle Preise zzgl. 20% USt.
Ausstattung
- Parkettboden
- Teeküche
- Kühlung
- Lift
- Bodendosen
- Cat 6 Verkabelung vom Vormieter
- Bürobeleuchtung
Öffentliche Verkehrsanbindung
U-Bahn: U2 Schottentor, U2/U4 Schottenring
Autobus: 3A
Straßenbahn: D, 1, 71
Individualverkehr:
sehr zentrale Lage und gute Anbindung über Ring und Lände
Flughafen Wien Schwechat in ca. 20 Minuten erreichbar
Wir weisen darauf hin, dass zwischen dem Vermittler und dem zu vermittelnden Dritten ein familiäres oder wirtschaftliches Naheverhältnis besteht.
Infrastruktur / Entfernungen
Gesundheit
Arzt <500m
Apotheke <500m
Klinik <500m
Krankenhaus <1.500m
Kinder & Schulen
Schule <500m
Kindergarten <500m
Universität <500m
Höhere Schule <1.000m
Nahversorgung
Supermarkt <500m
Bäckerei <500m
Einkaufszentrum <1.500m
Sonstige
Geldautomat <500m
Bank <500m
Post <500m
Polizei <500m
Verkehr
Bus <500m
U-Bahn <500m
Straßenbahn <500m
Bahnhof <500m
Autobahnanschluss <3.000m
Angaben Entfernung Luftlinie / Quelle: OpenStreetMap
Eckdaten Objektnr. 7227
Art: | Büro / Praxis |
Land: | Österreich |
Kaltmiete (netto): | 2.646,70 € |
Kaltmiete: | 3.224,44 € |
Miete / m²: | 19,90 € |
Provision: | 3 BMM zzgl. 20% USt. |
Betriebskosten: | 577,74 € |
MwSt Gesamt: | 644,89 € |
Nutzfläche: | 133,00 m² |
Heizwärmebedarf: | E 157,90 kWh/m²a |
fGEE: | D 1,89 |
Ihre persönliche Beratung

Florian Rainer
Colourfish Real Estate Immobilienmakler GmbH
T +43 664 930 40 909
H +43 664 930 40 909