Mehr als nur ein Büro: Top Büro-/Praxisfläche mit Kaffee im EKZ Voitsberg – Ihr Rundum-sorglos-Paket zur Miete!

Büro / Praxis - Bürofläche, 8570 Voitsberg , Doktor-H.-Kravcar-Platz 1


Das betreffende Objekt liegt im Einkaufszentrum Voitsberg, nur wenige Gehminuten von der Bezirkshauptmannschaft Voitsberg entfernt. Es stehen ausreichend PKW-Abstellplätze sowie Tiefgaragenplätze auf dem Grundstück zur Verfügung!

Beschreibung der Immobilie

Mehr als nur ein Büro: Top Büro-/Praxisfläche mit Kaffee im EKZ Voitsberg – Ihr Rundum-sorglos-Paket zur Miete!

KOSTBAR IMMOBILIEN: Entfalten Sie Ihre Vision in Voitsbergs Top-Lage!



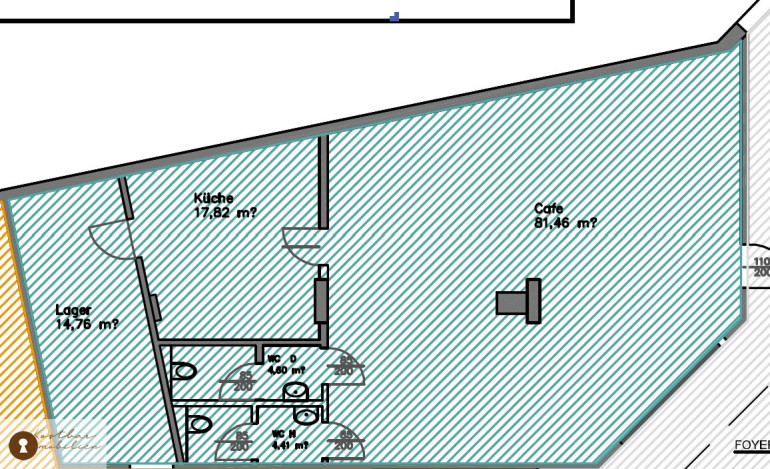
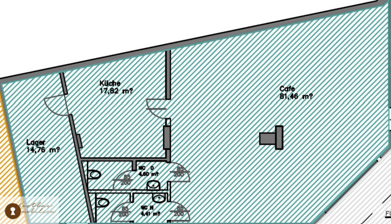
Träumen Sie von einem Raum, der Ihre Geschäftsidee zum Leben erweckt? KOSTBAR IMMOBILIEN präsentiert Ihnen die perfekte Bühne: Ein großzügiges Büro- und Geschäftslokal zur Miete im City Einkaufszentrum Voitsberg. Auf ca. 131,29 m² entfaltet sich ein Universum an Möglichkeiten – ideal für Co-Working-Spaces, aufstrebende Start-ups, etablierte Kanzleien oder innovative Agenturen. Hier ist Ihr Erfolg zu Hause!



Ihr neuer Arbeitsplatz – ein Raum für Kreativität und Wachstum:



Stellen Sie sich vor: Eine weitläufige Verkaufsfläche von 131,29 m², flexibel gestaltbar für Ihre individuellen Bedürfnisse. Zwei separate, WCs garantieren Komfort für Sie und Ihre Kunden.



Zusätzlich erwarten Sie zwei weitere Räume, einer davon mit Anschlüssen für eine Küchenzeile – perfekt, um Pausen zu genießen oder Kunden zu bewirten. Gestalten Sie diese Räume nach Ihren Vorstellungen: Ob gemütliches Büro, inspirierendes Atelier oder professionelle Therapieräume – Ihrer Kreativität sind keine Grenzen gesetzt! Auch Ärzte und Therapeuten finden hier die ideale Basis, um ihre Praxis in zentraler Lage zu etablieren.



Komfort wird bei uns großgeschrieben: Sichern Sie sich einen der optionalen Garagenplätze und bieten Sie Ihren Kunden und Mitarbeitern bequemes Parken.



Gestalten Sie Ihren Traumraum:



Ob komplett eingerichtet, teilmöbliert oder ganz nach Ihren Wünschen leer – Sie entscheiden, wie Sie Ihren neuen Arbeitsplatz übernehmen. Wir bieten Ihnen maximale Flexibilität, um Ihr Unternehmen optimal zu präsentieren.



Die Fakten, die Sie überzeugen:




  • Fläche: 131,29 m²



  • Mtl. Hauptmietzins: €1.389,60,- (inklusive Betriebskosten, exklusive Heizkosten)



  • Kaution: Drei Bruttomonatsmieten



  • Provision: Drei Bruttomonatsmieten zzgl. 20% USt.




Verpassen Sie nicht diese einzigartige Gelegenheit!



Vereinbaren Sie noch heute einen unverbindlichen Besichtigungstermin und lassen Sie sich von diesem Topangebot begeistern.



Kontaktieren Sie uns werktags unter +43 699 15915157 – wir freuen uns auf Sie!



Ihr KOSTBAR IMMOBILIEN Team – Ihr Partner für Erfolg!

Infrastruktur / Entfernungen

Gesundheit
Arzt <25m
Apotheke <250m
Klinik <2.825m
Krankenhaus <925m

Kinder & Schulen
Schule <325m
Kindergarten <150m

Nahversorgung
Supermarkt <300m
Bäckerei <250m
Einkaufszentrum <600m

Sonstige
Geldautomat <175m
Bank <175m
Post <275m
Polizei <50m

Verkehr
Bus <200m
Bahnhof <475m
Autobahnanschluss <9.625m

Angaben Entfernung Luftlinie / Quelle: OpenStreetMap

Eckdaten Objektnr. 5162/1005

Art: Büro / Praxis - Bürofläche
Land: Österreich
Möbliert: Voll
Kaltmiete (netto): 960,00 €
Kaltmiete: 1.158,00 €
Provision: 3 Bruttomonatsmieten zzgl. 20% USt.
Betriebskosten: 198,00 €
MwSt Gesamt: 231,60 €
Bürofläche: 131,29 m²
Immobilie merken Exposé

Ausstattung

Fliesen, Fernwärme, Zentralheizung, Parkplatz


Immobilie anfragen


Ihre persönliche Beratung

Patrik Nebel

Kostbar Wohnen - KW Immobilien GmbH

T +43 699 15915157

H +43 699 15915157