ERSTBEZUG Traumhafte Neubauwohnung bei U-Bahn Oberlaa
                                                            Wohnung
                                ,
                            
                            
                                
                                                                            1100
                                    
                                                                            Wien
                                    
                                    ,
                                        Oberlaaer Straße                                                                                    
                                    
                                
                                                                    
                                        
                                    
                                
                            
                        
                        Hubert-Blamauer-Park Kurpark Oberlaa
Beschreibung der Immobilie
ERSTBEZUG Traumhafte Neubauwohnung bei U-Bahn Oberlaa
Dieses EINZIGARTIGE ANLAGE in OBERLAA eignet sich ideal für INDIVIDUALISTEN UND NATURLIEBHABER, die es schätzen, in diesem TRAUMHAFTEN TEIL DES 10.BEZIRK´S ZU LEBEN. Ruhelage und gute Verkehrsanbindung.
_Das ursprüngliche Wien._ Nur wenige Minuten und Sie haben alle Möglichkeiten um in der Natur zu sein. Felder und Radwege bis in die Innenstadt, ein romantischer Flusslauf, und doch in 5 MINUTEN BEI DER U1 STADTION OBERLAA. _Leben wie im Urlaub. _
Es erwartet Sie hier eine traumhafte Wohnung mit DURCHDACHTEN GRUNDRISS, CHARMANTEN AUSSENFLÄCHEN sowie einer SCHLÜSSELFERTIGEN HOCHWERTIGEN AUSFÜHRUNG AUS ÖKOLOGISCHEN BAUSTOFFEN. 
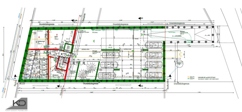
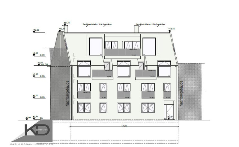
Die Wohnungen erstreckt sich über 71,97 m2 Wohnfläche. Die Beheizung erfolgt mittels GASZENTRALHEIZUNG und einer FUSSBODENHEIZUNG. Jeder Raum ist hier getrennt regelbar. Zur Ausstattung gehören selbstverständlich alle ELEKTRO, WASSER-, UND ABWASSERANSCHLÜSSE aber auch HOCHWERTIGE SCHALLSCHUTZKUNSTSTOFFFENSTER sowie RAFFESTORES zur perfekten Beschattung. Die Erschließung erfolgt über je ein STIEGENHAUS MIT LIFT, welche alle Geschosse umfasst. Im Kellergeschoß ist eine TIEFGARAGE mit Zufahrt mit 10 STELLPLÄTZEN situiert. Weiters sind Technik und Einlagerungsräume im Kellergeschoss.  
 Zögern Sie nicht und vereinbaren Sie einen Besichtigungstermin! Die atemberaubende Aussicht, direkt am Beginn der Felder und Wiesen wird Sie verzaubern.
Ein PKW Stellplatz in der Tiefgarage kann zusätzlich erworben werden (je EUR 25.000,--).
 _LEBEN IN EINER GROSSSTADT IN EINEM DER WEITLÄUFIGSTEN BEZIRKE WIEN´S UND TROTZDEM DER NATUR SO UNGLAUBLICH NAHE._
_Am Rande Favoriten´s, umgeben von Wäldern und Wiesen nur rund 250 Meter entfernt vom Liesingbach. Eine kleine Flusslandschaft und jede Menge Möglichkeiten sich sportlich zu betätigen._
 
AUSSTATTUNGSSTANDARD:
Bei der Realisierung des Neubaus wurde großen Wert auf eine hochwertige Ausstattung sowie langlebige Materialien gelegt:
-Vollwärmeschutzfassade (geringer Heizwärmebedarf = geringe Heizkosten)
-Lift
-Fussbodenheizung 
-Kunststofffenster mit Alu-Deckschale 3-fach Isolierverglast
-Parkett Eiche
-großformatige Fliesen (in den Nassbereichen)
-Innentüren Weiß
-Leerverrohrung für eine Klimaanlage ist gegeben
-Sonnenschutz ( Rollläden oder Elektr. Raffstores )
-Gegensprechanlage mittels Videokamera
-hochwertige Sanitäreinrichtung 
-Kellerabteile
-Fahrradabstell- und Kinderwagenraum
 
ENERGIEAUSWEIS:
Der Heizwärmebedarf beträgt 24,30 KWH/M²A, welcher der KLASSE B entspricht. 
 
INFRASTRUKTUR:
Der Kurpark sowie die Therme Oberlaa ist das Prunkstück dieser Umgebung und lässt Sie von dem täglichen Alltagsstress perfekt Abstand nehmen.
Die Nahversorgung ist durch die unmittelbare Nähe zu den fußläufigen Supermärkten ( Billa, Hofer und Bipa) ideal gegeben. Der Flughafen Schwechat ist ebenso in nur 15 min mit dem Auto rasch zu erreichen. 
Durch die Nähe der U1 Ubahn Station Oberlaa (900m) ist die Wiener Innenstadt genauso in nur wenigen Stationen sehr schnell und unkompliziert zu erreichen. Die Buslinie 17 a liegt in 100m Entfernung.
 
GUTE ÖFFENTLICHE VERKEHRSANBINDUNG
-U1 - OBERLAA 
-S60
BUSLINIE:
-70A
FÜR FRAGEN BZW. BESICHTIGUNGEN STEHT IHNEN Herr Dogan zur Verfügung 
Werte Interessenten! Um eine effiziente Vermittlung für Sie durchführen zu können, legen wir es Ihnen nahe sich den Inseratstext und die Bilder genau anzusehen.
KD Immobilien GmbH
TEL.:  +43 660 772 60 17
Wien 1070, Seidengasse 20/9
office@kd-immobilien.at       
www.kd-immobilien.at
Hinweis gemäß Energieausweisvorlagegesetz: Ein Energieausweis wurde vom Eigentümer bzw. Verkäufer, nach unserer Aufklärung über die generell geltende Vorlagepflicht, sowie Aufforderung zu seiner Erstellung noch nicht vorgelegt. Daher gilt zumindest eine dem Alter und der Art des Gebäudes entsprechende Gesamtenergieeffizienz als vereinbart. Wir übernehmen keinerlei Gewähr oder Haftung für die tatsächliche Energieeffizienz der angebotenen Immobilie.
Infrastruktur / Entfernungen
Gesundheit
Arzt <750m
Apotheke <1.000m
Klinik <3.000m
Krankenhaus <5.000m
Kinder & Schulen
Schule <500m
Kindergarten <250m
Universität <2.500m
Höhere Schule <5.750m
Nahversorgung
Supermarkt <250m
Bäckerei <750m
Einkaufszentrum <1.750m
Sonstige
Geldautomat <1.750m
Bank <500m
Post <1.000m
Polizei <500m
Verkehr
Bus <250m
U-Bahn <750m
Straßenbahn <3.250m
Bahnhof <500m
Autobahnanschluss <1.500m
Angaben Entfernung Luftlinie / Quelle: OpenStreetMap
Eckdaten Objektnr. 461
| Art: | Wohnung | 
| Land: | Österreich | 
| Baujahr: | 2023 | 
| Zustand: | Erstbezug | 
| Alter: | Neubau | 
| Kaufpreis: | 478.000,00 € | 
| Provision: | 3% des Kaufpreises zzgl. 20% USt. | 
| Wohnfläche: | 71,97 m² | 
| Nutzfläche: | 73,27 m² | 
| Grundstücksfl.: | 3,00 m² | 
| Zimmer: | 3 | 
| Stellplätze: | 1 | 
| Keller: | 2,60 m² | 
Ausstattung
Fliesen, Parkett, Zentralheizung, Wohnküche / offene Küche, Personenaufzug, Tiefgarage, Sicherheitskamera
Ihre persönliche Beratung
 
                                                        Kasim Dogan
KD Immobilien e.U.
T +43 660 772 60 17
 
                 
                 
                 
                 
                 
                 
                 
                 
                 
                 
                 
                 
                 
                 
                 
                 
                 
                 
                