Gekühlte Büroflächen auf der Mariahilfer Straße | 1060
Büro / Praxis
- Bürofläche,
1060
Wien
,
Mariahilfer Straße
Beschreibung der Immobilie
Gekühlte Büroflächen auf der Mariahilfer Straße | 1060
BESCHREIBUNGGeneralsanierter repräsentativer Altbau, der durch funktionelle Neubauflächen mit Einkaufspassage und Tiefgarage erweitert wurde.
Die Flächen werden vor Bezug saniert und können in Absprache mit dem Eigentümer der Liegenschaft ausgestattet werden.
Der Standort zeichnet sich besonders durch die direkt an der Mariahilfer Straße gelegenen Lage aus.
VERFÜGBARKEIT
ab sofort / ab 01.10.2025
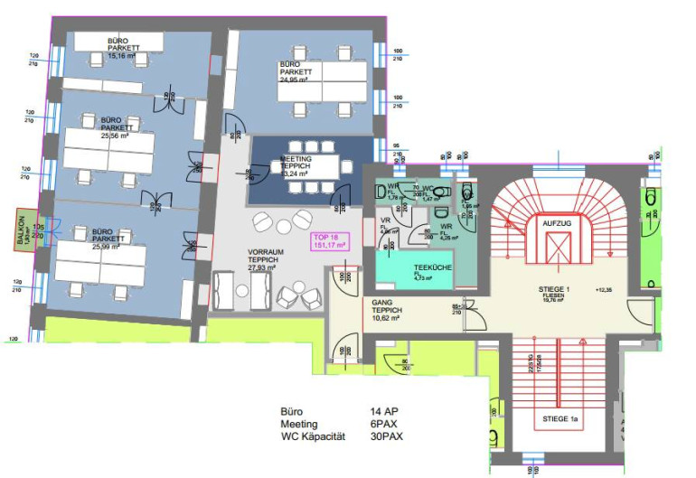
VERFÜGBARE MIETFLÄCHEN
3.OG 312 m² € 17,50 ab sofort
3.OG 151 m² € 17,50 ab 01.10.2025
Betriebskosten inkl. Heizung: 4,20 €/m² p.m. inkl. Heizung und Kühlung
Stellplätze: Eine hauseigene Tiefgarage ist vorhanden.
Kosten/Stellplatz/Monat: € 180,00
AUSSTATTUNG
Lift
öffenbare Fenster
Spiegelrasterleuchten
Leerverrohrung (Sockelkanäle)
teilw. Parkettboden/teilw. Teppichboden
Fernwärme
Fan-Coils
ausgestattete Teeküchen
TECHNISCHE DETAILS
Altbau/Neubau
Energiekennwerte:
Büro-Altbau: 90kWh/m².a – Energieklasse C
Büro-Neubau EG-DG: 33 kWh/m².a – Energieklasse A
Büro Neubau KG: 79 kWh/m².a – Energieklasse C
LAGE UND VERKEHRSANBINDUNG
öffentlicher Verkehr:
U-Bahn: U3 (Zieglergasse)
S-Bahn: -
Straßenbahn: 5
Bus: 57A
INFRASTRUKTUR
Hervorragende Infrastruktur auf der Mariahilfer Straße vorhanden. Geschäfte, Supermärkte und Restaurants liegen in direkter Nachbarschaft zum Objekt.
KAUTION
3-6 Bruttomonatsmieten
PROVISION
Im Falle eines Vertragsabschlusses beträgt unser Honorar lt. Maklerverordnung für Immobilienmakler, BGBI.262 und 297/1996, 3 Bruttomonatsmieten zzgl. 20 % Ust. Weiters möchten wir auf unsere allgemeinen Geschäftsbedingungen und den ausschließlichen Gerichtsstand Wien, Innere Stadt verweisen.
Alle Preisangaben verstehen sich pro Monat, zzgl. der gesetzlichen Ust. und Betriebskosten.
Weitere Objekte finden Sie auch auf unserer Website http://www.colliers.com/
Energieausweis wird nachgereicht
Eckdaten Objektnr. 337/05689
| Art: | Büro / Praxis - Bürofläche |
| Land: | Österreich |
| Baujahr: | 1995 |
| Alter: | Altbau |
| Gesamtmiete: | 3.932,04 € |
| Kaltmiete (netto): | 2.642,50 € |
| Miete / m²: | 17,50 € |
| Provision: | 3BMM |
| Betriebskosten: | 634,20 € |
| MwSt Gesamt: | 655,34 € |
| Nutzfläche: | 151,00 m² |
| Zimmer: | 5 |
| WC: | 2 |
Ausstattung
Fernwärme, Zentralheizung, Personenaufzug
Ihre persönliche Beratung
MA Florian Bogner
Colliers International Immobilienmakler GmbH
T +43 1 535 53 05531
F +43 1 535 53 25
Dieser Makler ist ein offizielles Mitglied des IR – ir.at Mehr Erfahren
