„Wohnen mit Aussicht auf die Geierwand“ - Neubauwohnung W 4
Wohnung
,
6425
Haiming
Das Kaufobjekt befindet sich in einer idyllischen Wohnlage im Herzen der Tiroler Alpen. Diese ruhige und naturnahe Umgebung ist ideal für Familien und Naturliebhaber. Spaß und Erholung findet man z.B. im Haiminger Schwimmbad oder auf vielen schönen Waldwegen und das nahegelegene Ötztal-Bahnhof bietet actionreiche Abwechslung mit der Area47. Mit guter Anbindung an lokale Geschäfte, Schulen und Freizeiteinrichtungen vereint dieser Standort Komfort und Lebensqualität auf perfekte Weise. Auch die Nähe zu größeren Städten wie Imst oder Innsbruck sorgt für zusätzliche Flexibilität im Alltag und macht den Standort besonders attraktiv.
Beschreibung der Immobilie
„Wohnen mit Aussicht auf die Geierwand“ - Neubauwohnung W 4
Modernes Wohnen trifft auf alpinen Charme – in zentraler Lage von Haiming entsteht ein hochwertiges Wohnprojekt mit durchdachter Architektur, nachhaltiger Bauweise und schönem Bergblick.
Highlights auf einen Blick:
17 moderne Wohnungen auf drei Etagen mit großzügigen Freiflächen (Balkone, Terrassen, Gärten)
Tiefgarage mit 23 Stellplätzen + 3 Außenabstellplätze (inkl. barrierefreiem Besucherparkplatz)
Massive Bauweise mit Wärmedämmung, Luftwärmepumpe & Photovoltaikanlage | HWB Ref, SK: 43,8 kWh/m²a [Klasse B], fGEE, SK: 0,71 [Klasse A]
Individuell gestaltbare Grundrisse – erste Planänderung kostenlos
Hochwertige Ausstattung: Eichenholzparkett, Feinsteinzeug, 3-fach verglaste Fenster
Zentraler Zugang mit Aufzug und offenen Laubengängen
Ideale Lage in ruhiger Umgebung, gute Erreichbarkeit über Alte Bundesstraße
Traumhafte Aussicht auf die Tiroler Bergwelt
Ein Projekt für Menschen mit Anspruch an Qualität, Komfort und Nachhaltigkeit – perfekt für Paare und Familien.
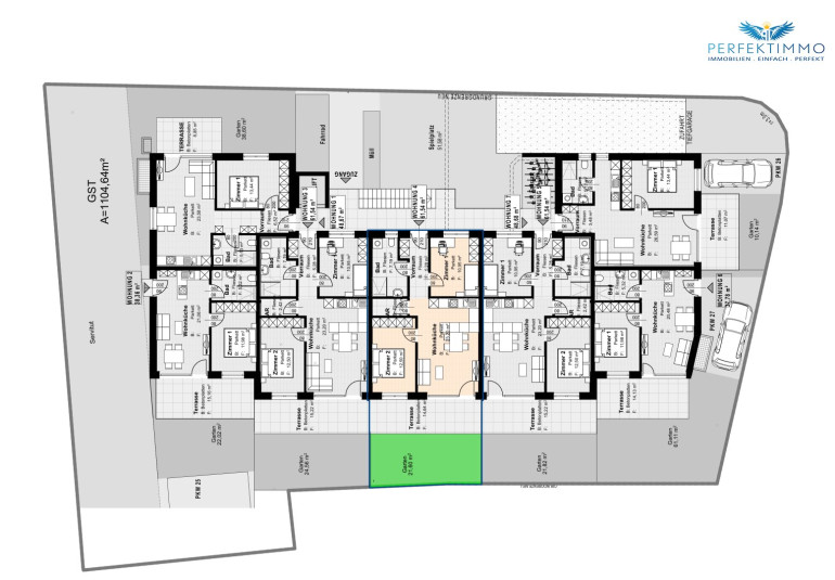
WOHNUNG W 4: 3-Zimmer-Wohnung mit Terrasse und Garten
ECKDATEN:
Stockwerk: Erdgeschoß
Zimmer: 3
Wohnfläche: 61,54 m²
Terrassenfläche: 14,64 m²
Gartenfläche: 21,60 m²
Lager: 1 inkl.
TG-Platz: optional
RAUMAUFTEILUNG:
Vorraum: 5,28 m²
Zimmer 1: 10,95 m²
Zimmer 2: 12,50 m²
Wohnküche: 23,20 m²
Abstellraum: 2,42 m²
Bad/WC: 7,19 m²
KAUFPREIS:
Wohnung: € 370.000,00
TG-Platz: € 29.500,00
Haben wir Ihr Interesse geweckt? Dann zögern Sie nicht und vereinbaren Sie noch heute einen Besichtigungstermin. Lassen Sie sich von der außergewöhnlichen Qualität dieses Neubaus überzeugen und finden Sie Ihr neues Zuhause in Haiming!
IHRE ANSPRECHPARTNERIN:
Frau Barbara Lechleitner
geprüfte Immobilienmaklerin
Mobil: +43 650 9805332
E-Mail: b.lechleitner@perfektimmo.at
www.perfektimmo.at
NEBENKOSTEN:
Maklerhonorar: 3,6 % inkl. USt
Vertragserrichtungskosten: ca. 2 % netto zzgl. USt zzgl. Barauslagen
Grunderwerbsteuer: 3,5 %
Grundbuchseintragung: 1,1 % - Unter Umständen könnte hier eine Befreiung gemäß dem Beschluss der Österreichischen Bundesregierung für die Eintragung des Eigentumsrechts sowie die Eintragung einer eventuellen Pfandurkunde möglich sein.
Alle Angaben nach bestem Wissen. Irrtum und Zwischenverkauf vorbehalten. Dieses Exposé ist eine Vorinformation, als Rechtsgrundlage gilt alleine der abgeschlossene Kaufvertrag. §15 der Maklerverordnung gilt als vereinbart.
Weitere tolle Angebote finden Sie unter: https://www.perfektimmo.at/angebote
Der Vermittler ist als Doppelmakler tätig.
Infrastruktur / Entfernungen
Gesundheit
Arzt <500m
Apotheke <500m
Kinder & Schulen
Schule <500m
Kindergarten <500m
Höhere Schule <8.500m
Nahversorgung
Supermarkt <500m
Bäckerei <500m
Sonstige
Bank <500m
Geldautomat <4.000m
Post <500m
Polizei <4.000m
Verkehr
Bus <500m
Bahnhof <1.000m
Autobahnanschluss <1.500m
Angaben Entfernung Luftlinie / Quelle: OpenStreetMap
Eckdaten Objektnr. 6566/1613
Art: | Wohnung |
Land: | Österreich |
Baujahr: | 2025 |
Zustand: | Projektiert |
Alter: | Neubau |
Kaufpreis: | 370.000,00 € |
Wohnfläche: | 61,54 m² |
Zimmer: | 3 |
Bäder: | 1 |
WC: | 1 |
Terrassen: | 1 |
Garten: | 21,60 m² |
Heizwärmebedarf: | B 43,80 kWh/m²a |
fGEE: | A 0,71 |
Ausstattung
Fliesen, Parkett, Fußbodenheizung, Personenaufzug, Westbalkon, Dusche, Tiefgarage
Ihre persönliche Beratung

Barbara Lechleitner
PERFEKT IMMO GmbH
T +43 650 9805332
H +43 650 9805332