Gürtel Panorama | Innen Die große Maisonette über Wien | 3-4 Zimmer möglich

Wohnung , 1070 Wien


Beschreibung der Immobilie

Gürtel Panorama | Innen Die große Maisonette über Wien | 3-4 Zimmer möglich

LEBENDIG URBAN ZENTRAL



Im angesagten 7. Bezirk, direkt gegenüber einer U-Bahnstation und in unmittelbarer Nähe zur Innenstadt, wurde ein charmantes Zinshaus aus der Jahrhundertwende umfassend saniert und nachhaltig modernisiert.



Außerdem wurden während der Revitalisierung, 2 weitere Geschoße im Dachgeschoß ausgebaut und es entstanden neue, luxuriöse Rooftop Apartments.





Wichtige Details auf einen Blick: 



- Heizsystem: Luft-Wärmepumpe in Kombination mit Photovoltaikanlage am Dach

- Alle Wohnungen verfügen über Fußbodenheizung
- Straßenseitige Apartments sind mit elektrischen Außenrollläden ausgestattet

- Klimaanlage im Dachgeschoss vorhanden

- U-Bahn-Station direkt vor der Haustür

- Hochwertige Ausstattung und stilvolle Architektur

- Optimale & urbane Wohlfühlatmosphäre

- Eiche Parkettböden in den Wohnbereichen

- 30x60 cm Fliesen in den Nassräumen





In direkter Umgebung befinden sich angesagte Locations wie die Mariahilferstraße, Lugner City, die Stadthalle und der Westbahnhof. In den abwechslungsreichen Vierteln des 7. Bezirks treffen traditionelle Kulturstätten auf moderne Avantgarde-Kunst, gemütliche Kaffeehäuser auf trendige Bars, und klassische Geschäfte auf stilvolle Boutiquen.



Dank der zahlreichen öffentlichen Verkehrsmittel und den gut ausgebauten Radwegen entlang des Gürtels gelangt man schnell und bequem in alle Ecken der Stadt. Die U-Bahn-Linie U6 (Thaliastraße) sowie mehrere Straßenbahn- und Busverbindungen (5, 46, 48A) sind nur wenige Gehminuten entfernt und garantieren rund um die Uhr flexible Mobilität.





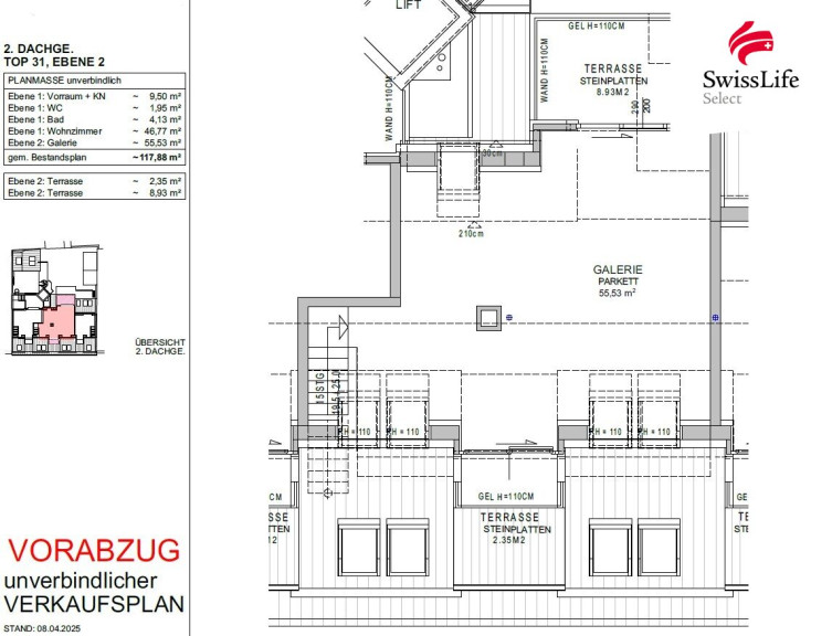
Die Raumaufteilung der Wohnung Top 31 gestaltet sich wie folgt:



Raumaufteilung (Ebene 1)



| Vorraum + Küche | Großzügiger Eingangsbereich mit praktischer Küchen-Nische – ideal für eine moderne offene Küche mit Essbereich.



| WC | Separates WC mit Fliesen – optimal für Gäste und tägliche Nutzung.



| Badezimmer | Kompakt, funktional und modern verfliest – idealer Standort für Badewanne oder Dusche.



| Wohnzimmer / mögliches Zimmer + Wohnküche | Offener, großzügiger Wohnbereich mit viel Tageslicht – aktuell als loftartiger Raum gestaltet, aber perfekt für die Schaffung eines zusätzlichen Zimmers plus Wohnküche. Zugang zu den oberen Ebenen inklusive!




Galerie (Ebene 2 – 55,53 m²)



| Galeriefläche/+2 Schlafzimmer | Offener, heller Raum mit viel Potenzial: Hier können zwei zusätzliche Zimmer sowie ein kleines Badezimmer geschaffen werden. Der loftartige Charakter bleibt dabei erhalten – ideal für Schlafzimmer, Kinderzimmer oder Homeoffice.



| Terrassen | Zwei charmante Außenflächen – perfekt für einen Frühstücksplatz in der Sonne und eine größere Terrasse zum Entspannen oder Pflanzen.





Die Wohnung kann auf Wunsch für den Eigenbedarf oder als Anleger (zzgl 20% Ust) erworben werden. . Nähere Informationen auf Anfrage!





Überzeugen Sie sich selbst und vereinbaren Sie einen unverbindlichen Besichtigungstermin. Ich freue mich auf ein persönliches Gespräch mit Ihnen!

Infrastruktur / Entfernungen

Gesundheit
Arzt <500m
Apotheke <500m
Klinik <500m
Krankenhaus <1.500m

Kinder & Schulen
Schule <500m
Kindergarten <500m
Universität <1.000m
Höhere Schule <500m

Nahversorgung
Supermarkt <500m
Bäckerei <500m
Einkaufszentrum <500m

Sonstige
Geldautomat <500m
Bank <500m
Post <500m
Polizei <500m

Verkehr
Bus <500m
U-Bahn <500m
Straßenbahn <500m
Bahnhof <500m
Autobahnanschluss <4.500m

Angaben Entfernung Luftlinie / Quelle: OpenStreetMap

Eckdaten Objektnr. 6013/937

Art: Wohnung
Land: Österreich
Baujahr: 2024
Zustand: Erstbezug
Alter: Neubau
Kaufpreis: 845.000,00
Provision: 3% des Kaufpreises zzgl. 20% USt.
Wohnfläche: 113,03 m²
Gesamtfläche: 124,40 m²
Zimmer: 4
Bäder: 1
WC: 1
Terrassen: 2
Heizwärmebedarf:  B  26,80 kWh/m²a
fGEE:  A  0,71
Immobilie merken Exposé

Ausstattung

Fliesen, Parkett, Fußbodenheizung, Personenaufzug, Dusche


Immobilie anfragen


Ihre persönliche Beratung

Swiss Life Select Österreich GmbH

Stephanie Zowa

Swiss Life Select Österreich GmbH

T +43 664 30 699 80