Neuer Preis - Rarität! Großartiges Baugrundstück am Schafberg! Bestlage + Attraktiver Wohnbau möglich oder Traum vom eigenen Haus erfüllen! Jetzt zugreifen!
Grundstück
- Baugrund Eigenheim,
1170
Wien
,
Czartoryskigasse
TOP Lage am Schafberg!
Beschreibung der Immobilie
Neuer Preis - Rarität! Großartiges Baugrundstück am Schafberg! Bestlage + Attraktiver Wohnbau möglich oder Traum vom eigenen Haus erfüllen! Jetzt zugreifen!
Rarität! Großartiges Baugrundstück am Schafberg! Bestlage + Attraktiver Wohnbau möglich oder Traum vom eigenen Haus erfüllen! Jetzt zugreifen!
Zum Verkauf steht ein attraktives Grundstück in Traumlage am Schafberg. Gleich ums Eck befindet sich das so beliebte Schafbergbad und das Schutzhaus.
Setzen Sie hier ein kleines, aber exklusives Bauprojekt um! Eine gute Nachfrage für TOP-Lagen wie diese, sowie eine gute Planung sorgen hier bestimmt für einen Verkaufserfolg!
Facts:
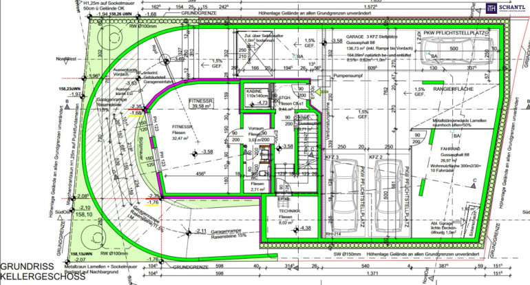
+ Grundstücksgröße ca 381m² / Bebaute Fläche ca. 127m²
+ Projektiert nach § 70b: Eine zeitnahe Umsetzung des Projektes ist daher möglich
+ 4 Wohneinheiten erzielbar (ca. 346m² reine Wohnfläche)
+ Erzielbare Nutzfläche gewichtet ca. 405,50m²
+ Garagenfläche inkl. Rampe und Zufahrt ca. 163m²
+ Die Liegenschaft soll unterkellert werden
+ Zusätzlicher Luxus: 3 Garagenplätze sowie ein Fitnessraum
Kaufpreis: € 850.000.-
www.schantl-ith.at
Hinweis gemäß Energieausweisvorlagegesetz: Ein Energieausweis wurde vom Eigentümer bzw. Verkäufer, nach unserer Aufklärung über die generell geltende Vorlagepflicht, sowie Aufforderung zu seiner Erstellung noch nicht vorgelegt. Daher gilt zumindest eine dem Alter und der Art des Gebäudes entsprechende Gesamtenergieeffizienz als vereinbart. Wir übernehmen keinerlei Gewähr oder Haftung für die tatsächliche Energieeffizienz der angebotenen Immobilie.
Wir weisen darauf hin, dass zwischen dem Vermittler und dem zu vermittelnden Dritten ein familiäres oder wirtschaftliches Naheverhältnis besteht.
Der Vermittler ist als Doppelmakler tätig.
Infrastruktur / Entfernungen
Gesundheit
Arzt <750m
Apotheke <750m
Klinik <1.250m
Krankenhaus <750m
Kinder & Schulen
Schule <1.000m
Kindergarten <750m
Universität <2.250m
Höhere Schule <2.250m
Nahversorgung
Supermarkt <750m
Bäckerei <750m
Einkaufszentrum <1.750m
Sonstige
Geldautomat <1.500m
Bank <1.750m
Post <750m
Polizei <1.750m
Verkehr
Bus <250m
Straßenbahn <750m
U-Bahn <1.750m
Bahnhof <1.750m
Autobahnanschluss <4.750m
Angaben Entfernung Luftlinie / Quelle: OpenStreetMap
Eckdaten Objektnr. 282019
Art: | Grundstück - Baugrund Eigenheim |
Land: | Österreich |
Kaufpreis: | 850.000,00 € |
Kaufpreis / m²: | 2.096,18 € |
Provision: | 3% des Kaufpreises zzgl. 20% USt. |
Wohnfläche: | 346,50 m² |
Nutzfläche: | 405,50 m² |
Grundstücksfl.: | 381,00 m² |
Ausstattung
Garage
Ihre persönliche Beratung

Samir Agha-Schantl
Schantl ITH Immobilientreuhand GmbH
T 0043 664 3070009
H 0043 660 4701793