Starten Sie Ihr Business! Gewerbliches Wohnen/Kurzzeitvermietung! Bestandsfreies Zinshaus in TOP-Lage gleich bei der U-Bahn Ottakring! Optimale Grundrisse + Beste Infrastruktur!
Zinshaus Renditeobjekt
,
1160
Wien
,
Enenkelstraße
TOP-Lage in einer Seitengasse - U3 um´s Eck! Ausgezeichnete öffentliche Anbindung via S-Bahn Richtung Hütteldorf und Heiligenstadt und via U3 in die Innenstadt (Westbahnhof, Mariahilfer Straße, Stephansplatz etc.) ist gegeben. Auch die Straßenbahnen 10, 44 und 46 sowie die Busse 45a, 46 a+b sowie 48a verkehren in unmittelbarer Nähe des Objekts. Und auch das Radwegenetz ist rundum bestens ausgebaut. Mit dem Auto gelangt man über den Flötzersteig schnell Richtung Westautobahn und über die Höhenstraße in den Wiener Norden. Auch am Gürtel ist man prompt und somit in der Innenstadt. Köstlich essen und trinken lässt es sich in den Heurigen rund um die Ottakringer Weinberge (10er Marie, Weinbau Herrmann, Weinschenke zur Blauen Nos‘n u.v.m.) oder bei Plachutta‘s Grünspan, im Schutzhaus auf der Schmelz, im Liebhart, im Gösserbräu, im Schwarzen Raben, beim Bierfink, beim Blunzenstricker, in Gelbmanns Gaststube oder im Augustin, am Yppenplatz mit seinen netten Lokalen... Für Veranstaltungen in die Ottakringer Brauerei oder in die Stadthalle, in die Kulisse zum Kabarett, zum Heimspiel beim Sportclub Freitagabend oder ins Jetzt zum Fußball schauen, für lange Nächte ins Chelsea, Rhiz oder zum Gürtelbräu in den Gürtelbögen.
Beschreibung der Immobilie
Starten Sie Ihr Business! Gewerbliches Wohnen/Kurzzeitvermietung! Bestandsfreies Zinshaus in TOP-Lage gleich bei der U-Bahn Ottakring! Optimale Grundrisse + Beste Infrastruktur!
Starten Sie Ihr Business! Gewerbliches Wohnen/Kurzzeitvermietung! Bestandsfreies Zinshaus in TOP-Lage gleich bei der U-Bahn Ottakring! Optimale Grundrisse + Beste Infrastruktur!
TOP Gelegenheit!
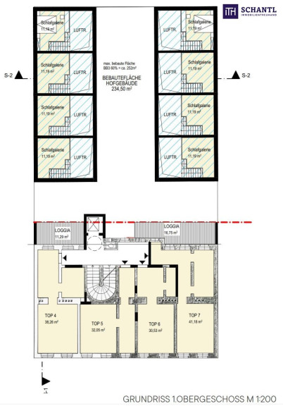
Dieses bestandsfreie Zinshaus bietet viele Möglichkeiten! Es gibt aktuell eine Studie für einen Bestandsumbau und einen DG-Ausbau für eine gewerbliche Vermietung! Optimal geplante, kompakte Einheiten, kleine Balkone/Loggien/Terrassen und Gärten sowie eine perfekte Infrastruktur runden das perfekte Angebot ab.
Facts:
+ Grundstücksfläche ca. 680m², davon ca. 510m² bebaute Fläche
+ Bestand Straßentrakt + Hofgebäude aktuell: ca. 742m²
+ Straßentrakt Bestand: 8 Einheiten (7 Wohnungen + 1 Geschäftslokal)
+ Ausbau: ca. 405 m²: 6 Wohnungen mit Flächen von 40 bis 90 m², alle mit privaten Freiflächen
+ Hoftrakt: ca. 312 m²: 4 neue Wohneinheiten mit Flächen von 38 bis 106 m² und privaten Freiräumen sowie Allgemeinflächen
+ Geplant: 18 Einheiten
+ Flächenwidmung: GB Gemischtes Baugebiet Bauklasse 3, geschlossene Bauweise, max. Trakttiefe 14m,
Kaufpreis: € 2.990.000.-
Worauf warten Sie noch? Wir beraten Sie gerne!
www.schantl-ith.at
Wir weisen darauf hin, dass zwischen dem Vermittler und dem zu vermittelnden Dritten ein familiäres oder wirtschaftliches Naheverhältnis besteht.
Der Vermittler ist als Doppelmakler tätig.
Infrastruktur / Entfernungen
Gesundheit
Arzt <250m
Apotheke <250m
Klinik <250m
Krankenhaus <750m
Kinder & Schulen
Schule <250m
Kindergarten <250m
Universität <1.000m
Höhere Schule <1.000m
Nahversorgung
Supermarkt <250m
Bäckerei <250m
Einkaufszentrum <1.250m
Sonstige
Geldautomat <250m
Bank <250m
Post <500m
Polizei <500m
Verkehr
Bus <250m
U-Bahn <250m
Straßenbahn <500m
Bahnhof <250m
Autobahnanschluss <5.250m
Angaben Entfernung Luftlinie / Quelle: OpenStreetMap
Eckdaten Objektnr. 282038
Art: | Zinshaus Renditeobjekt |
Land: | Österreich |
Baujahr: | 1882 |
Zustand: | Projektiert |
Alter: | Altbau |
Kaufpreis: | 2.990.000,00 € |
Kaufpreis / m²: | 2.348,78 € |
Provision: | 3% des Kaufpreises zzgl. 20% USt. |
Wohnfläche: | 1.147,00 m² |
Nutzfläche: | 1.273,00 m² |
Grundstücksfl.: | 680,00 m² |
Balkone: | 6 |
Terrassen: | 5 |
Heizwärmebedarf: | D 141,00 kWh/m²a |
fGEE: | E 3,16 |
Ihre persönliche Beratung

Samir Agha-Schantl
Schantl ITH Immobilientreuhand GmbH
T 0043 664 3070009
H 0043 660 4701793