Neuer Preis! Erstbezug! Kleine Terrasse im Hof + Geschmackvoll sanierte Altbauwohnung + Tolle Raumaufteilung + Rundum saniertes Gebäude! Jetzt zugreifen!
Wohnung
,
1170
Wien
Hier will ich leben! Zwischen Wilhelminenberg und Innenstadt - ein liebevoller Mix der für jeden Etwas dabei hat... Profitieren Sie von einer tollen Infrastruktur! Alle Geschäfte des täglichen Bedarfs befinden sich in Gehweite, ebenso Schulen, Kindergärten, 2 Parkanlagen und zahlreiche Cafés und Lokale. Der nahe Wilhelminenberg oder die Steinhof Gründe laden zu ausgiebigen Ausflügen ein. Danach kann man die Seele in einem der zahlreichen Heurigen mit Blick über ganz Wien baumeln lassen. Öffentliche Anbindung: Straßenbahn 2, 9, 44, 1, 43 sowie Bus 10A
Beschreibung der Immobilie
Neuer Preis! Erstbezug! Kleine Terrasse im Hof + Geschmackvoll sanierte Altbauwohnung + Tolle Raumaufteilung + Rundum saniertes Gebäude! Jetzt zugreifen!
Happy in Hernals! So geht Wohnen...
Neuer Preis! Ideale Raumaufteilung + Hochwertige Ausstattung + Tolle Infrastruktur + Rundum saniertes Haus + Good feeling!
Bei diesem Projekt wird/wurde das kleine und charmante Altbauhaus komplett renoviert, die Wohnungen im Bestand liebevoll saniert, eine Neubauebene aufgestockt und das traumhafte Dachgeschoss ausgebaut.
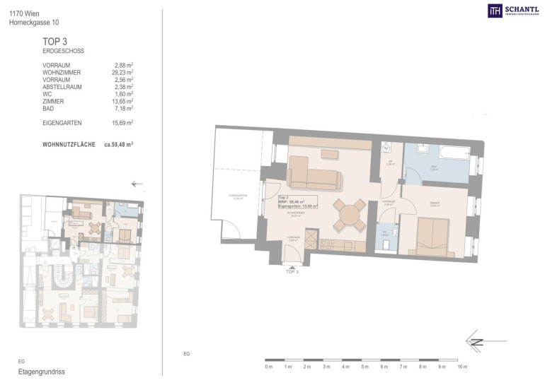
Ihre neue Wohnung befindet sich im EG und teilt sich in einen kleinen Vorraum mit Platz für eine Garderobe, ein separates WC mit Handwaschbecken, ein großes Badezimmer mit Badewanne und Fenster, einen praktischen Abstellraum, ein großes Schlafzimmer sowie ein geräumiges Wohn-Esszimmer mit Zugang zur hofseitigen Terrasse.
Highlights: Sicherheitstüre WK3, Fußbodenheizung mit Einzelraumregelung, Hochwertige Materialien uvm.
Wohnfläche: ca. 59,84m² + Terrasse: ca. 15,69m² + Kellerabteil
Kaufpreis: € 299.000.-
Bezug: 3-4 Monate ab Kauf laut Auskunft des Bauträgers
Worauf warten Sie noch? Wir freuen uns Sie zu beraten!
Bei konkretem Interesse senden wir Ihnen sehr gerne weiterführende Dokumente zu, wie:
o Grundbuchauszug
o Wohnungseigentumsvertrag
o Nutzwertgutachten
o Eigentümerversammlungsprotokoll (Falls vorhanden) etc...
Unser Service für Sie: Wenn Sie sich für diese Immobilie entschieden haben, begleiten wir Sie gerne vom Kaufanbot weg inkl. Klärung von Sonderwünschen und der Vertragsunterzeichnung über die Wohnungsübergabe bis hin zu diversen Ummeldungen wie Strom und Gas. Entsprechende Formulare oder auch Meldezettel stellen wir Ihnen sehr gerne zur Verfügung.
Gerne unterstützen wir Sie auch bei der Finanzierung Ihres Traumobjekts und finden mit unseren langjährigen Partnern die besten Konditionen für Sie.
Worauf warten Sie noch? Dieses Schmuckstück wird Sie restlos begeistern!
www.schantl-ith.at
Wir weisen darauf hin, dass zwischen dem Vermittler und dem zu vermittelnden Dritten ein familiäres oder wirtschaftliches Naheverhältnis besteht.
Der Vermittler ist als Doppelmakler tätig.
Infrastruktur / Entfernungen
Gesundheit
Arzt <500m
Apotheke <500m
Klinik <500m
Krankenhaus <1.500m
Kinder & Schulen
Schule <500m
Kindergarten <500m
Universität <1.500m
Höhere Schule <1.500m
Nahversorgung
Supermarkt <500m
Bäckerei <500m
Einkaufszentrum <1.000m
Sonstige
Geldautomat <500m
Bank <500m
Post <500m
Polizei <500m
Verkehr
Bus <500m
U-Bahn <1.000m
Straßenbahn <500m
Bahnhof <1.500m
Autobahnanschluss <4.000m
Angaben Entfernung Luftlinie / Quelle: OpenStreetMap
Eckdaten Objektnr. 282051
Art: | Wohnung |
Land: | Österreich |
Zustand: | Erstbezug |
Alter: | Altbau |
Kaufpreis: | 299.000,00 € |
Kaufpreis / m²: | 4.774,83 € |
Provision: | 3% des Kaufpreises zzgl. 20% USt. |
Wohnfläche: | 59,48 m² |
Nutzfläche: | 62,62 m² |
Zimmer: | 2 |
Bäder: | 1 |
WC: | 1 |
Terrassen: | 1 |
Keller: | 1,66 m² |
Heizwärmebedarf: | B 37,66 kWh/m²a |
fGEE: | A 0,77 |
Ausstattung
Parkett, Fliesen, Gas, Etagenheizung, Fußbodenheizung, Personenaufzug, Nordbalkon, Dusche, Kabel/Satelliten-TV
Ihre persönliche Beratung

Samir Agha-Schantl
Schantl ITH Immobilientreuhand GmbH
T 0043 664 3070009
H 0043 660 4701793