Gräfekiez: Charakterstarke Remise mit Balkendecke

Wohnung - Dachgeschoß, 10967 Berlin


Beschreibung der Immobilie

Gräfekiez: Charakterstarke Remise mit Balkendecke

Die wichtigsten Eckdaten dieser Immobilie:



+ Baujahr 1888



+ letzte Sanierungen Haus 2025



+ generalsanierung Wohnung 2019 



+ Klimaanlage



+ ruhige Hinterhoflage



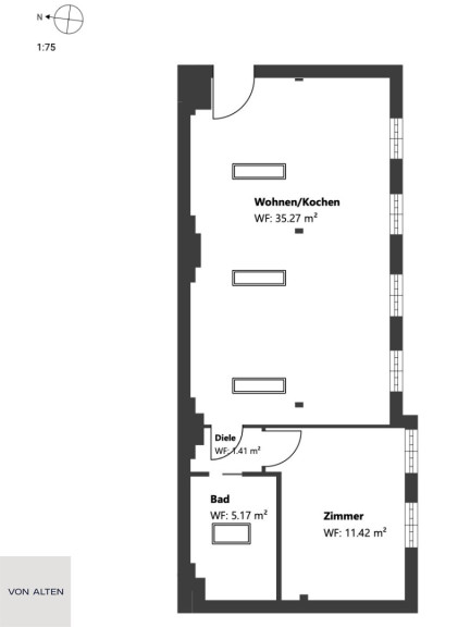
+ 2 Zimmer, ca. 53 m² Wohnfläche



+ Badezimmer mit Dusche, Waschmaschinenanschluss und elektrisch bedienbarem Velux-Dachfenster



+ 4 Fenster zzgl. 3 Dachfenster im Wohnbereich



+ Parkettböden



+ Balkendecke 



+ Kellerabteil



+ Sanierter, gepflegter Altbau



+ freundliches Straßenbild mit Baumbestand







Die Wohnung



Zum Verkauf steht eine ca. 1888 errichtete Dachgeschosswohnung in einem gepflegten Altbau, die Wohnung wurde 2019 generalsaniert



Über den Hof erreicht man die Wohnung, welche eine Wohnfläche von ca. 53 bietet. Vom Eingangsbereich gelangt man in den großzügigen Wohn-/Essbereich mit italienischer Tischlerküche und Smeg (2024) Kühlschrank. Weiters erreicht man von hier das Schlafzimmer sowie das Bad mit elektronisch bedienbarem Velux-Dachfenster, Dusche und Waschmaschinenanschluss. Im Wohn- und Essbereich sowie im Badezimmer wurde die historische Backsteinmauer freigelegt. Der Wohn- und Essbereich verfügt zudem über eine sichtbare Balkendecke, die der Wohnung einen besonderen Flair verleiht. Es wurden hochwertige Armaturen installiert. Die Beheizung erfolgt über eine Zentralheizung, das Warmwasser wird über eine Therme bereitgestellt.



Ein Kellerabteil ist der Wohnung zugeordnet und bietet zusätzlichen Stauraum.



***Bitte beachten Sie, dass einige der abgebildeten Einrichtungsgegenstände zur besseren Veranschaulichung als Visualisierungen erstellt wurden, um die Potenziale des Raumes darzustellen.***



Die Lage



​Die Wohnung liegt im ruhigen Hinterhaus im Herzen des Graefekiezes in Berlin-Kreuzberg, einer der begehrtesten Wohnlagen der Stadt. Die Umgebung besticht durch ihre charmante Altbauarchitektur, grüne Straßenzüge und eine lebendige Kiezkultur. Zahlreiche Cafés, Restaurants und Einkaufsmöglichkeiten sind fußläufig erreichbar. Nur wenige Schritte entfernt lädt das Planufer am Landwehrkanal zum Spazieren, Verweilen und Entspannen ein. 



Öffentliche Anbindung




  • U-Bahn: Die Station Schönleinstraße (U8) ist etwa 600 Meter entfernt.​



  • Bus: Die Haltestelle Körtestraße mit den Linien M41 befindet sich in ca. 250 Metern



Wir weisen darauf hin, dass zwischen dem Vermittler und dem zu vermittelnden Dritten ein familiäres oder wirtschaftliches Naheverhältnis besteht.


Der Vermittler ist als Doppelmakler tätig.


Eckdaten Objektnr. 8425/109

Art: Wohnung - Dachgeschoß
Land: Deutschland
Baujahr: 1888
Zustand: Voll_saniert
Möbliert: Teil
Alter: Altbau
Kaufpreis: 398.000,00
Provision: 3% des Kaufpreises zzgl. 20% USt.
Betriebskosten: 397,00 €
Wohnfläche: 53,27 m²
Zimmer: 2
Bäder: 1
WC: 1
Immobilie merken Exposé

Ausstattung

Fliesen, Parkett, Zentralheizung, Einbauküche, Dusche, Kabel/Satelliten-TV


Immobilie anfragen


Ihre persönliche Beratung

von Alten Immobilientreuhand GmbH

Lucie von Alten

von Alten Immobilientreuhand e.U.

T +4369910816911