Alpines TRAUMDOMIZIL - Doppelhaushälfte mit Eigengrund - Sonnenlage - Schladminger Tauern
Haus
- Chalet,
8971
Schladming
Schladming - Rohrmoos
Beschreibung der Immobilie
Alpines TRAUMDOMIZIL - Doppelhaushälfte mit Eigengrund - Sonnenlage - Schladminger Tauern
LEBEN WO ANDERE URLAUB MACHEN
Eingebettet in die imposante Naturkulisse der Schladminger Bergwelt entsteht dieses besondere Neubauprojekt – ein Refugium für all jene, die das Außergewöhnliche suchen.
In traditioneller Bauweise errichtet und mit moderner Architektur veredelt, fügt sich die Liegenschaft harmonisch in ihre alpine Umgebung ein. Dabei entstehen stilvolle Wohnräume mit Liebe zum Detail und einem feinen Gespür für Ästhetik und Wohnqualität.
Ein echtes Kleinod – denn Orte wie dieser sind selten. Und die Gelegenheit, einen solchen Platz sein Eigen zu nennen, noch seltener.
Auf 1.100 m Seehöhe in ruhiger Hanglage mit sonniger Ausrichtung erwartet Sie eine offene Grundrissgestaltung, die großzügige, lichtdurchflutete Räume schafft. Große Fensterfronten holen die Natur ins Haus und eröffnen einen atemberaubenden Blick auf das Panorama der Schladminger Tauern.
CHARAKTERISTIKA & AUSSTATTUNG:
Das Wohnjuwel wird in moderner Hybridbauweise errichtet: Während das Erdgeschoss in massivem Stahlbeton ausgeführt ist und damit für Stabilität und Langlebigkeit sorgt, sind das Ober- und Dachgeschoss in hochwertiger Holzriegelbauweise mit sorgfältig verarbeitetem Altholz gestaltet. Inspiriert vom klassischen Alpenstil vermittelt die Architektur eine warme, einladende Atmosphäre und verbindet rustikale Elemente mit zeitgemäßem Wohnkomfort. Hochwertige Materialien und präzise Handwerkskunst unterstreichen den besonderen Charakter der Immobilie.
Zu den Highlights zählen ein großzügiger Garten mit ca. 530 m², der Ihnen viel Platz für Outdoor-Aktivitäten und Erholung bietet. Die 25 m² große Terrasse sowie der ca. 4,25 m² große Balkon laden ebenfalls dazu ein, die malerische Aussicht und die idyllische Umgebung zu genießen.
Dank der gegebenen Widmung ist sowohl die Nutzung als Hauptwohnsitz als auch eine touristische Vermietung möglich – und macht diese außergewöhnliche Liegenschaft zu einer wertvollen Option für anspruchsvolle Eigennutzer ebenso wie für stilbewusste Investoren.
Raumaufteilung mit Stil und Funktionalität
Die erste Ebene bietet nicht nur ein gemütliches Gästezimmer mit angrenzendem Bad/WC, sondern auch ausreichend Stauraum für Skiausrüstung sowie Platz für eine private Sauna und den Technikbereich – ideal für Komfort nach einem aktiven Tag in den Bergen.
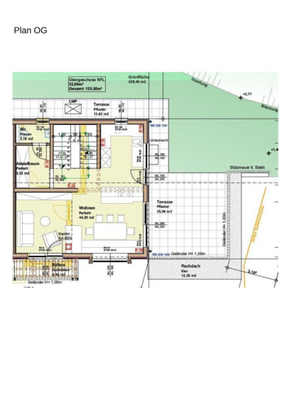
Im Obergeschoss öffnet sich der beeindruckende Wohnbereich: Großzügig gestaltet mit offenem Kamin, schafft er eine warme, einladende Atmosphäre. Die stilvoll integrierte Küche fügt sich harmonisch in das offene Raumkonzept ein – perfekt für gesellige Abende. Ein separates Gäste-WC sowie ein praktischer Abstellraum runden das Angebot dieser Etage ab.
Im Dachgeschoss laden zwei großzügige Schlafzimmer mit jeweils eigenem Badezimmer zum Rückzug und Entspannen ein. Hier genießt man Privatsphäre, Ruhe und einen traumhaften Ausblick – der ideale Ort, um den Alltag hinter sich zu lassen.
Highlights der Bau- und Ausführungskonzeption
- Eiche-Parkett in den Wohnräumen
- Feinsteinzeugfliesen in Vorraum, Bädern & WC
- Markenprodukte von Laufen, Hansgrohe, Geberit
- Duschverglasungen rahmenlos, moderne Bodenebene
- Vollflächige Fußbodenheizung mit Raumthermostaten basierend auf Luftwärmepumpe und Photovoltaikanlage
- Dachkonstruktion mit Sichtbalken aus Fichte
- Holz-Alu-Türen in modernem Design
- 3-fach-Isolierverglasung bei allen Fenstern
- 25m2 Terrasse und ca. 4,25m2 Balkon mit herrlichem Ausblick
- Carport mit Platz für 2 Fahrzeuge
- Garten mit ca. 530m2
Rohrmoos-Untertal zählt zu den beliebtesten Wohn- und Urlaubsregionen der Steiermark. Eingebettet in die imposante Kulisse der Schladminger Tauern, bietet dieser Ort eine einzigartige Verbindung aus intakter Natur, lebendiger Kultur und gehobener Lebensqualität.
SOMMER WIE WINTER EIN PARADIES FÜR AKTIVE
Die Region ist Teil der berühmten „Ski Amadé“ – eines der größten Skigebiete Europas. Im Winter genießen Sie perfekte Bedingungen auf über 230 Pistenkilometern, modernste Liftanlagen und direkten Einstieg ins Skigebiet Planai & Hochwurzen – ganz ohne lange Anfahrt.
Im Sommer eröffnen sich unzählige Möglichkeiten:
– Wandern auf dem Wilde-Wasser-Weg
– Mountainbiken auf beschilderten Trails
– Klettern, Paragleiten, Golfen (z. B. Golfclub Dachstein-Tauern)
– oder einfach Entspannen in den klaren Bergseen und Thermen der Region
KULTUR & EVENTS
Die Stadt Schladming, nur wenige Fahrminuten entfernt, ist nicht nur sportlich aktiv, sondern auch kulturell vielseitig:
– Mid Europe Blasmusik-Festival
– Nightrace am Planai-Hang
– Traditionelle Almfeste & Adventmärkte
– Regionale Handwerkskunst und Musikveranstaltungen
KULINARIK AUF HOHEM NIVEAU
Von urigen Almhütten bis zur Haubenküche bietet die Region eine außergewöhnliche kulinarische Dichte. Frische, regionale Zutaten aus der Steiermark – vom Ennstaler Berglamm bis zum steirischen Kürbiskernöl – werden in der Region liebevoll in Szene gesetzt.
VERKEHRSANBINDUNG & INFRASTRUKTUR
Trotz idyllischer Lage ist die Erreichbarkeit hervorragend:
– Bahnhof Schladming: nur ca. 10 Fahrminuten entfernt
– Autobahn A10 (Tauernautobahn): über Radstadt in ca. 25 Min. erreichbar
– Flughafen Salzburg: in rund 1 Stunde (90 km) erreichbar
– Flughafen Graz: ca. 2 Stunden Fahrzeit
Zudem bietet Schladming alle Annehmlichkeiten des täglichen Bedarfs: Schulen, Ärzte, Apotheken, Supermärkte, Cafés und Boutiquen – alles bequem erreichbar und dennoch fernab vom Trubel der Großstadt.
Die Festspielstadt Salzburg ist in etwas mehr als einer Stunde mit dem Auto erreichbar und bietet das ganze Jahr über eine Fülle kultureller und kulinarischer Höhepunkte.
Dieses Doppelhaus ist weit mehr als nur ein Wohnraum – es ist ein Rückzugsort zum Ankommen, Aufatmen und Genießen, eingebettet in eines der malerischsten Täler der grünen Steiermark.
Das flexible Bauträgermodell bietet Raum für persönliche Wohnträume: Die Raumaufteilung kann individuell gestaltet werden. Wer beide Haushälften erwirbt, hat zudem die Möglichkeit, das gesamte Grundstück zu nutzen und aus dem geplanten Doppelhaus ein großzügiges Einfamilienhaus zu schaffen – ein alpines Domizil mit Seltenheitswert.
Lassen Sie sich von dieser einmaligen Gelegenheit verzaubern und gestalten Sie Ihr persönliches Refugium in einer der schönsten Regionen der Alpen – ein Ort, an dem Luxus, Natur und Lebensqualität auf harmonische Weise zusammentreffen.
Konditionen:
Kaufpreis: € 1.860.000,-
Provision: 3% des Kaufpreises zzgl. 20% USt.
3,5% Grunderwerbssteuer
1,1% Eintragung ins Grundbuch
Vertragserrichtung + Barauslagen + Notar
Für weitere Fragen oder eine Besichtigung steht Ihnen Frau Ulrike Dvorak unter +43 660 413 413 1 oder unter UD@carma-partner.at jederzeit gerne zur Verfügung.
Der Käufer zahlt im Erfolgsfall an die Firma Carma & Partner GmbH eine Käufer-Maklerprovision in Höhe von 3% des Kaufpreises zzgl. 20% Ust. Die Provision errechnet sich aus dem beurkundeten Kaufpreis. Wir halten fest, dass Ihnen dieses Objekt erstmals durch unsere Tätigkeit als Immobilienmakler bekannt wurde. Falls Ihnen dieses Objekt bereits als verkauf- oder vermietbar bekannt ist, ersuchen wir innerhalb von 3 Werktagen um Ihre schriftliche Nachricht, ansonsten gilt die Provisionsregelung als vereinbart. Ausdrücklich vereinbart wird dieser Provisionsanspruch in gleicher Höhe auch für die in § 15 MaklerG vorgesehenen Fälle (Unterlassung eines notwendigen Rechtsaktes wider Treu und Glauben, Abschluss eines zweckgleichen Geschäftes, Abschluss mit einem Dritten aufgrund der Weitergabe der Abschlussmöglichkeit, Ausübung eines Vorkaufs-, Wiederkaufs- oder Eintrittsrechtes). Bei den Größen und Ertragsangaben handelt es sich um von Abgeber/in (Eigentümer/in bzw. Hausverwaltung) zur Verfügung gestellte Informationen. Die Angaben wurden von uns kontrolliert, eine Gewähr für die Richtigkeit, Vollständigkeit und Letztstand müssen wir allerdings ausschließen. Es wird darauf hingewiesen, dass zwischen dem Abgeber und dem Immobilienmakler ein wirtschaftliches Nahverhältnis besteht und der Immobilienmakler auch für diesen tätig ist (Doppelmakler).
Wir weisen darauf hin, dass zwischen dem Vermittler und dem zu vermittelnden Dritten ein familiäres oder wirtschaftliches Naheverhältnis besteht.
Der Vermittler ist als Doppelmakler tätig.
Infrastruktur / Entfernungen
Gesundheit
Arzt <3.000m
Apotheke <3.000m
Krankenhaus <3.500m
Kinder & Schulen
Schule <3.500m
Kindergarten <2.500m
Nahversorgung
Supermarkt <3.000m
Bäckerei <3.000m
Einkaufszentrum <3.000m
Sonstige
Bank <3.000m
Geldautomat <3.000m
Polizei <3.000m
Post <3.000m
Verkehr
Bus <1.000m
Bahnhof <3.500m
Angaben Entfernung Luftlinie / Quelle: OpenStreetMap
Eckdaten Objektnr. 6460/287
Art: | Haus - Chalet |
Land: | Österreich |
Zustand: | Erstbezug |
Alter: | Neubau |
Kaufpreis: | 1.860.000,00 € |
Provision: | 3% des Kaufpreises zzgl. 20% USt. |
Wohnfläche: | 153,95 m² |
Zimmer: | 5 |
WC: | 3 |
Balkone: | 1 |
Terrassen: | 1 |
Stellplätze: | 2 |
Heizwärmebedarf: | B 29,50 kWh/m²a |
fGEE: | A++ 0,61 |
Ausstattung
Dielenboden, Fliesen, Steinboden, Parkett, Solarenergie, Kamin, Bad mit Fenster, Badewanne, Dusche, Carport
Ihre persönliche Beratung

Ulrike Katharina Dvorak
Carma & Partner GmbH