Baugrundstück in 1230 Wien mit Bebauungsstudie - Nähe U6-Station und Badner Bahn
Grundstück
- Baugrund Eigenheim,
1230
Wien
Ruhige Wohnlage mit gewachsenem Umfeld Das Grundstück befindet sich in ausgezeichneter Lage im 23. Bezirk, genauer gesagt in der Altmannsdorferstraße – einer gefragten Adresse am Rande einer ruhigen Einfamilienhaussiedlung. Top-Anbindung an den öffentlichen Verkehr Sowohl die U6-Station Erlaaer Straße als auch die Badner Bahn Station Neu Erlaa sind fußläufig in wenigen Minuten erreichbar. Diese Nähe zu zwei starken Verkehrsachsen ermöglicht eine schnelle und unkomplizierte Verbindung ins Stadtzentrum sowie zu anderen wichtigen Knotenpunkten Wiens.Auch mit dem Auto ist das Grundstück bestens erreichbar – die Straßenanbindung ist direkt und bequem, und die Zufahrtsmöglichkeiten sind großzügig dimensioniert. Nahversorgung und Schulen in direkter Nähe In der unmittelbaren Umgebung finden sich alle Einrichtungen des täglichen Bedarfs. Ein nahegelegener Supermarkt deckt die Nahversorgung ab, während auch Bildungseinrichtungen wie die WMS Anton-Baumgartner-Straße 119 und die Volksschule Erlaaer Schleife 2 bequem zu Fuß zu erreichen sind. Entwicklungspotenzial durch Stadtwachstum Besonders spannend ist auch die Nähe zum wachsenden Stadtentwicklungsgebiet „An der Wiesn“. Diese Lage in einem sich dynamisch entwickelnden Umfeld sorgt für zusätzliches Zukunftspotenzial – sei es in Hinblick auf Wertsteigerung oder auf die Lebensqualität der zukünftigen Bewohnerinnen und Bewohner.
Beschreibung der Immobilie
Baugrundstück in 1230 Wien mit Bebauungsstudie - Nähe U6-Station und Badner Bahn
Das Wichtigste in Kürze
Zum Verkauf steht ein unbebautes Baugrundstück in begehrter Lage im 23. Wiener Gemeindebezirk, direkt an der Altmannsdorferstraße. Die Liegenschaft verfügt über eine unverbindliche Bebauungsstudie, in der ein Wohnobjekt mit drei Einheiten, zwei Stellplätzen sowie privaten Gartenanteilen visualisiert wurde. Das Grundstück bietet eine direkte Straßenanbindung, ist vollständig altlastenfrei und punktet mit einem Kiefernbestand, der beim Bau nicht entfernt werden muss – ideal als Sicht- und Sonnenschutz.
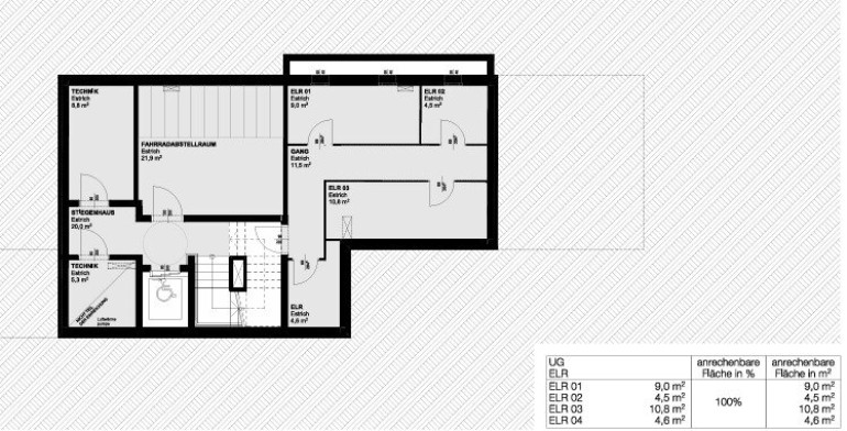
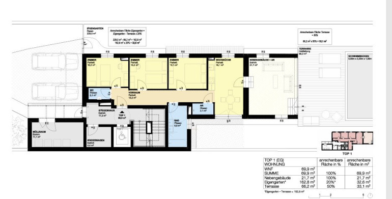
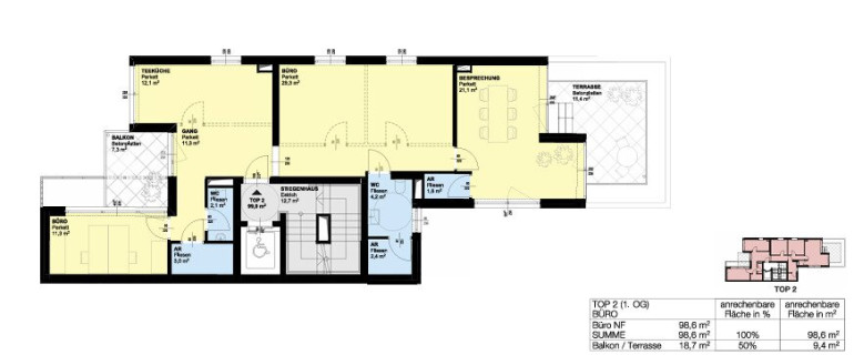
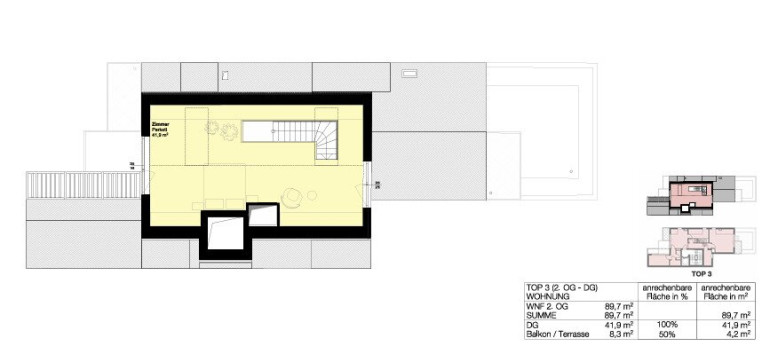
Bebauungsstudie
Im Kaufpreis ist bereits eine unverbindliche Bebauungsstudie enthalten, die eine attraktive Entwicklung des Grundstücks vorsieht. Geplant ist ein Wohnobjekt mit drei Obergeschossen sowie einem Untergeschoss. Die Studie nutzt die vorhandene Bebauungsdichte optimal aus und sieht die Errichtung von drei Wohneinheiten vor, deren Wohnflächen sich zwischen rund 69 m² und 98 m² bewegen – eine ideale Größenordnung für den 23. Bezirk. Alle Einheiten verfügen über großzügige Freiflächen in Form von Terrassen oder Eigengartenanteilen.
Ergänzend dazu wurden zwei Stellplätze für PKW in das Konzept integriert, sodass auch dem Bedarf an Privatparkplätzen Rechnung getragen wird. Die Zufahrt zum Grundstück sowie die davorliegende Straße sind breit genug, um auch den Einsatz von Baufahrzeugen problemlos zu ermöglichen.
Ein besonderes Detail betrifft die derzeit teilweise auf dem Grundstück befindliche Garage des Nachbargrundstücks. Für diesen Fall wurde bereits eine vertragliche Vereinbarung getroffen, die im Falle einer Neubebauung eine Abbruchverpflichtung seitens des Nachbarn vorsieht. Somit steht einer vollständigen Nutzung der Grundstücksfläche aus heutiger Sicht nichts im Wege.
Der Vermittler ist als Doppelmakler tätig.
Infrastruktur / Entfernungen
Gesundheit
Arzt <1.000m
Apotheke <1.000m
Klinik <1.500m
Krankenhaus <1.500m
Kinder & Schulen
Schule <1.000m
Kindergarten <1.000m
Universität <4.500m
Höhere Schule <4.000m
Nahversorgung
Supermarkt <1.000m
Bäckerei <1.000m
Einkaufszentrum <1.000m
Sonstige
Geldautomat <1.000m
Bank <1.000m
Post <1.000m
Polizei <1.000m
Verkehr
Bus <500m
U-Bahn <500m
Straßenbahn <2.500m
Bahnhof <1.000m
Autobahnanschluss <1.000m
Angaben Entfernung Luftlinie / Quelle: OpenStreetMap
Eckdaten Objektnr. 1834/39
Art: | Grundstück - Baugrund Eigenheim |
Land: | Österreich |
Kaufpreis: | 500.000,00 € |
Kaufpreis / m²: | 1.030,93 € |
Provision: | 3% des Kaufpreises zzgl. 20% USt. |
Grundstücksfl.: | 485,00 m² |
Ihre persönliche Beratung

Paul Stiksl
WOGE Realitäten Ges.m.b.H.
H +43 677 620 834 20