Mehrfamilienhaus in Deutsch-Wagram - 3 Minuten vom Bahnhof entfernt! 2 Wohneinheiten
Haus
- Mehrfamilienhaus,
2232
Deutsch-Wagram
Beschreibung der Immobilie
Mehrfamilienhaus in Deutsch-Wagram - 3 Minuten vom Bahnhof entfernt! 2 Wohneinheiten
Herzlich Willkommen in Deutsch-Wagram!
Die Lage könnte nicht besser sein: Optimale Anbindung an das öffentliche Verkehrsnetz (sowohl nach Wien als auch nach Gänserndorf). Von Deutsch-Wagram bis Wien-Leopoldau brauchen Sie rund 10 min., bis Wien-Mitte brauchen Sie rund 30 min. mit dem Zug. Mit dem Auto sind Sie in 10 min. bei der Stadtgrenze von Wien (22. Bezirk) und in 30 min. im Zentrum von Wien, dies ist durch die direkte Anbindung an die S1 möglich.
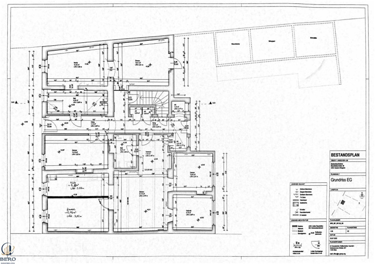
Dieses Haus wurde ca. im Jahr 1900 erbaut, insgesamt haben Sie hier ein Wohnfläche von rund 155 m² auf einer Ebenen welche durch einen großen Garten abgerundet wird. Aktuell ist das Objekt in 2 Wohneinheiten aufgeteilt. Ebenfalls ist ein separater Zubau vorhanden, welcher z.B. als Werkstatt verwendet werden kann. Insgesamt 7 Zimmer sorgen für eine Vielfalt an Möglichkeiten.
Fakten im Überblick
- 2 Wohneinheiten
- großzügige Freifläche
- Je Wohneinheit eine Küche und ein Badezimmer
- mehrfachverglaste Fenster
- 2 Abstellplätze inkludiert
Wohneinheit 1
Die Wohneinheit 1 hat rund 42 m² mit 2 Zimmern. Eine Einbauküche und ein eigenes Badezimmer ist in der Wohneinheit vorhanden. Am Gang ist ein AR, welcher für diese Wohneinheit verwendet werden kann.
Wohneinheit 2
Die Wohneinheit 2 hat rund 94 m² und insgesamt 5 Zimmer. Eine Einbauküche und ein eigenes Badezimmer ist in der Wohneinheit vorhanden. Am Gang ist ein AR, welcher für diese Wohneinheit verwendet werden kann.
Beim Bahnhof ist ebenfalls eine Bushaltestelle, mit dem Bus gelangen Sie in rund 20 min. zur U1-Station Aderklaa (Wien) sowie ins City Gate (Einkaufszentrum).
3 Autominuten entfernt befindet sich ein Einkaufszentrum, in diesem finden Sie eine Vielzahl an Einkaufsmöglichkeiten wie einen Hofer, einen Billa Plus, einen Lidl, einen Bipa, einen DM und eine Apotheke vor. Ebenso ist der Hauptplatz von Deutsch-Wagram mit einigen Cafés und Geschäften des täglichen Bedarfs in unmittelbarer Umgebung. Mit dem Auto sind Sie ebenfalls in 15 min. im G3 (Shoppingcenter) sowie im Gewerbepark Stadlau.
Weiters finden Sie auch ein Schulzentrum in Deutsch-Wagram vor. Dort befindet sich eine VS, eine NMS und ein BORG. Für den Schulweg steht ein eigener Bus zur Verfügung.
Ebenfalls befinden sich 2 Kindergärten in der Nähe des Hauses. Genießen Sie die Nähe zur Natur und die Vorzüge einer Stadt. Ausgedehnte Wanderwege, die über Wiesen und durch Wälder führen, erfreuen nicht nur die Seele, sondern auch ihre Gesundheit. Dank der Nähe zum modernen Bahnhof gelangen Sie in 6-7 min. zur U1 Wien Leopoldau und in 28 min. ins Wiener Stadtzentrum.
Gerne stehe ich Ihnen für weitere Informationen und einen Besichtigungstermin zur Verfügung.
Ich freue mich auf Ihren Anruf.
Weiterführende Informationen
Wir weisen ausdrücklich auf unser wirtschaftliches Naheverhältnis mit dem Abgeber/der Abgeberin hin! Irrtum und Änderungen vorbehalten! Abänderungen zur tatsächlichen Ausführung können resultieren. Eventuelle Änderungen der vorliegenden Baubeschreibung und Planung, die sich auf Grund von behördlichen Auflagen, Höherer Gewalt, Lieferengpässe, Kundenwünschen oder sonst notwendigen technischen Gründen ergeben haben, bleiben vorbehalten. Die ursprünglich ausgeschriebene Qualitätsnorm wird jedoch jederzeit gewährleistet. Die auf den Fotos zu sehenden Accessoires werden nicht mit verkauft. Alle Angaben ohne Gewährleistungsanspruch! Die Angaben im Exposé erfolgen im Auftrag unseres Auftraggebers. Für die Richtigkeit und Vollständigkeit der uns zur Verfügung gestellten
Wir weisen darauf hin, dass zwischen dem Vermittler und dem zu vermittelnden Dritten ein familiäres oder wirtschaftliches Naheverhältnis besteht.
Der Vermittler ist als Doppelmakler tätig.
Infrastruktur / Entfernungen
Gesundheit
Arzt <1.000m
Apotheke <1.000m
Klinik <1.000m
Kinder & Schulen
Kindergarten <1.000m
Schule <1.000m
Höhere Schule <10.000m
Universität <10.000m
Nahversorgung
Supermarkt <1.000m
Bäckerei <5.500m
Einkaufszentrum <4.500m
Sonstige
Bank <500m
Geldautomat <500m
Post <500m
Polizei <500m
Verkehr
Bus <500m
U-Bahn <9.000m
Straßenbahn <9.000m
Bahnhof <500m
Autobahnanschluss <4.500m
Angaben Entfernung Luftlinie / Quelle: OpenStreetMap
Eckdaten Objektnr. 5660/7470
Art: | Haus - Mehrfamilienhaus |
Land: | Österreich |
Baujahr: | 1900 |
Zustand: | Gepflegt |
Kaufpreis: | 499.000,00 € |
Provision: | 17.964,00 € inkl. 20% USt. |
Betriebskosten: | 140,00 € |
Wohnfläche: | 155,89 m² |
Grundstücksfl.: | 549,00 m² |
Zimmer: | 7 |
Bäder: | 2 |
WC: | 2 |
Terrassen: | 1 |
Stellplätze: | 2 |
Garten: | 306,00 m² |
Heizwärmebedarf: | E 156,50 kWh/m²a |
fGEE: | D 2,14 |
Ausstattung
Gas, Zentralheizung, Einbauküche, Wohnküche / offene Küche, Dusche, Parkplatz
Ihre persönliche Beratung

Thomas Stolhofer
Bero Immobilien GmbH
T +43 1 9978064
H +43 664 42 37 750