Traumhaftes Baugrundstück mit Baugenehmigung in Baden – 8 Wohnungen mit Gärten oder Terrassen

Grundstück , 2500 Baden , Augasse 2


Dieses Grundstück in der Augasse 2500 Baden bietet eine hervorragende Lage für großvolumigen Wohnbau. Die unmittelbare Umgebung punktet mit einer Vielzahl an Lebensqualität schaffenden Einrichtungen. Ärzte, Apotheken, ein Krankenhaus sowie Schulen und Kindergärten sind fußläufig erreichbar. Einkaufsmöglichkeiten wie Supermärkte und Bäckereien befinden sich in der Nähe. Auch öffentliche Verkehrsanbindungen wie Bus und Bahnhof sind bestens erschlossen. Ein idealer Standort für Familien und Pendler!

Beschreibung der Immobilie

Traumhaftes Baugrundstück mit Baugenehmigung in Baden – 8 Wohnungen mit Gärten oder Terrassen

Perfekter Baugrund mit Baugenehmigung in Baden.



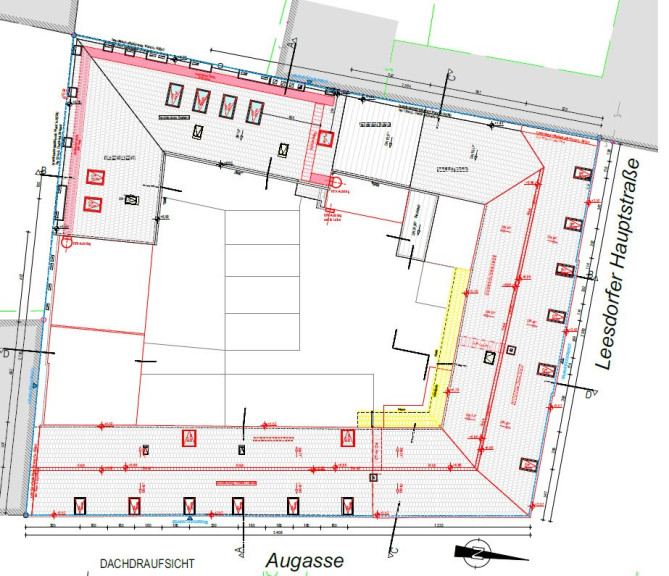
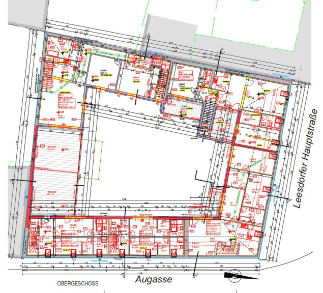
1.019 m² Grundstück - 8 Wohneinheiten mit Außenfläche und Kellerfläche.



Top 1: 134 m² + 10 m² Balkon



Top 2: 105 m² + 9 m² Garten



Top 3: 102 m² + 28 m² Loggia



Top 4: 217 m² + 39 m² Terrasse



Top 5: 99 m² + 21 m² Garten



Top 6: 67 m² + 48 m² Garten



Top 7: 120 m² + 40 m² Terrasse + 24 m² Garten



Top 8: 93 m² + 22 m² Garten



Die m² wurden gerundet.



Die Baubewilligung wird vom Verkäufer eingereicht, als Käufer hat man noch die



Möglichkeit mit dem Architekten kleine Änderungen durchzuführen.



Perfekte Wohnlage nähe Bahnhof und Zentrum.



Für Fragen und Besichtigungen steht Ihnen Herr Stubenvoll gerne unter 0664/30 88 940 zur Verfügung.

Infrastruktur / Entfernungen

Gesundheit
Arzt <350m
Apotheke <225m
Klinik <1.350m
Krankenhaus <525m

Kinder & Schulen
Schule <50m
Kindergarten <250m
Höhere Schule <8.300m

Nahversorgung
Supermarkt <450m
Bäckerei <375m
Einkaufszentrum <4.250m

Sonstige
Bank <275m
Geldautomat <275m
Polizei <675m
Post <300m

Verkehr
Bus <150m
Bahnhof <400m
Autobahnanschluss <2.775m
Straßenbahn <100m
Flughafen <4.150m

Angaben Entfernung Luftlinie / Quelle: OpenStreetMap

Eckdaten Objektnr. 6115/3334948

Art: Grundstück
Land: Österreich
Kaufpreis: 1.500.000,00
Provision: 3% des Kaufpreises zzgl. 20% USt.
Wohnfläche: 936,00 m²
Grundstücksfl.: 1.019,00 m²
Balkone: 1
Terrassen: 2
Garten: 123,00 m²
Immobilie merken Exposé

Immobilie anfragen


Ihre persönliche Beratung

Stubenvoll Immobilien

Ferdinand Stubenvoll

Stubenvoll Immobilien

T +43 664 30 88 940

H +436643088940