Geförderte Neubauwohnungen in generalsanierten Gemäuern - moderne Grundrisse - Zentrale Lage mitten am nachgefragten Bindermichl, Stadlerstraße 3
Wohnung
,
4020
Linz
,
Stadlerstraße
Helle, sonnige Wohnungen in grüner Ruhelage – Bindermichl, Linz In der beliebten Wohngegend Bindermichl im Westen von Linz erwarten Sie helle, lichtdurchflutete Wohnungen in ruhiger, zentraler Lage. Zahlreiche Parks wie der Landschaftspark Bindermichl-Spallerhof, der Hummelhofwald mit Wellnessoase und der nahe Wasserwald bieten vielfältige Erholungs- und Freizeitmöglichkeiten. Top-Infrastruktur: Schulen, Kindergärten, Ärztezentrum, Einkaufsmöglichkeiten, Restaurants und Cafés sind fußläufig erreichbar. Die ausgezeichnete Anbindung an öffentliche Verkehrsmittel bringt Sie in wenigen Minuten ins Stadtzentrum oder zum Hauptbahnhof.
Beschreibung der Immobilie
Geförderte Neubauwohnungen in generalsanierten Gemäuern - moderne Grundrisse - Zentrale Lage mitten am nachgefragten Bindermichl, Stadlerstraße 3
Modernes Wohnen mit Charme – generalsanierte Wohnungen in Linz-Bindermichl
Im beliebten Stadtteil Bindermichl, im Westen von Linz, wurde eine mehrgeschoßige Wohnanlage aus den 1940er Jahren umfassend generalsaniert und erstrahlt nun in neuem Glanz. Insgesamt 19 hochwertig sanierte NEUBAU-Wohnungen wurden lichtdurchflutet nach Südwesten ausgerichtet und mit modernen Ausstattungen an die Ansprüche zeitgemäßen Wohnens angepasst.
Die Wohnflächen von 48 bis 102 m² bieten flexible Grundrisse für individuelle Wohnbedürfnisse – ideal für Singles, Paare und Familien. Bestehende Fensteröffnungen wurden zu Terrassentüren erweitert und führen auf neu errichtete Balkone, die zum Entspannen im Freien einladen.
Alle Wohnungen sind barrierefrei per Lift erreichbar. Ergänzt wird das Wohnangebot durch praktische Abstellräume, großzügige Fahrradstellflächen sowie eine neue Tiefgarage im angrenzenden Baukörper.
Stadlerstraße – ein Zuhause mit Geschichte, Komfort und Lebensqualität.
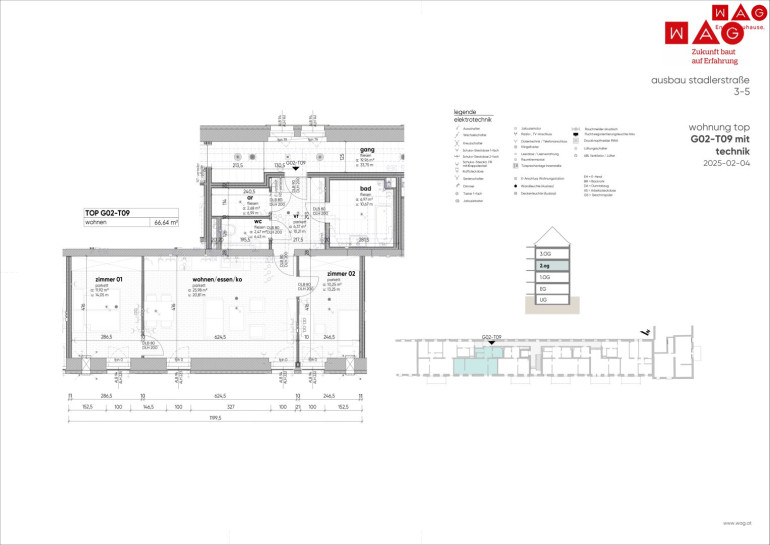
Wohnung Top 9, 2. Stock:
monatliche Miete inkl. Betriebs- und Verwaltungskosten, Aufzug, Kabel-TV sowie MwSt: € 862,66
monatliche Pauschale Heizung und Warmwasser inkl. MwSt.: € 77,31
monatliche Miete TG-Stellplatz inkl. MwSt.: € 113,81
Baukostenbetrag: € 4.000,21
Sie sind an weiteren Wohnungs- bzw. Gewerbeangeboten interessiert? Ein vielfältiges Angebot finden Sie auf unserer Website.
Zur WAG-Immobiliensuche: SUCHE
Zur WAG-Wohnungsanmeldung: Wohnungsanmeldung
Gerne beraten wir Sie persönlich über unser vielfältiges Angebot, rufen Sie uns einfach an! Und das natürlich ohne Vermittlungsgebühren und provisionsfrei!
Angaben sind ohne Gewähr auf Richtigkeit und Vollständigkeit. Druckfehler vorbehalten.
Infrastruktur / Entfernungen
Gesundheit
Arzt <250m
Apotheke <500m
Klinik <2.750m
Krankenhaus <1.500m
Kinder & Schulen
Kindergarten <750m
Schule <750m
Universität <2.250m
Höhere Schule <4.000m
Nahversorgung
Supermarkt <500m
Bäckerei <250m
Einkaufszentrum <1.000m
Sonstige
Bank <250m
Geldautomat <250m
Post <500m
Polizei <2.000m
Verkehr
Bus <250m
Straßenbahn <1.750m
Bahnhof <1.500m
Autobahnanschluss <250m
Flughafen <4.500m
Angaben Entfernung Luftlinie / Quelle: OpenStreetMap
Eckdaten Objektnr. 6650/28261
Art: | Wohnung |
Land: | Österreich |
Baujahr: | 2025 |
Zustand: | Erstbezug |
Alter: | Neubau |
Gesamtmiete: | 939,97 € |
Kaltmiete (netto): | 593,10 € |
Kaltmiete: | 784,24 € |
Betriebskosten: | 191,14 € |
Heizkosten: | 66,64 € |
MwSt Gesamt: | 89,09 € |
Wohnfläche: | 66,64 m² |
Nutzfläche: | 66,64 m² |
Zimmer: | 3 |
Bäder: | 1 |
WC: | 1 |
Keller: | 5,20 m² |
Heizwärmebedarf: | 36,20 kWh/m²a |
fGEE: | 0,78 |
Ausstattung
Parkett, Fliesen, Fußbodenheizung, Personenaufzug, Badewanne, Kabel/Satelliten-TV, Tiefgarage
Ihre persönliche Beratung

Team Vermietung 2
WAG Wohnungsanlagen GmbH
T +43 (0)50 338 6012