Traumhafte und sehr gepflegte 5-Zimmer-Altbauwohnung - zentrale Lage / Nähe U3-Station - Top Infrastruktur!

Wohnung , 1030 Wien,Landstraße


Beschreibung der Immobilie

Traumhafte und sehr gepflegte 5-Zimmer-Altbauwohnung - zentrale Lage / Nähe U3-Station - Top Infrastruktur!

Zum Kauf gelangt diese stilvolle und helle 5-Zimmer-Wohnung, die den perfekten Mix aus historischem Flair und modernem Wohnkomfort bietet. Die optimale Raumaufteilung und eine ausgesprochen gute Infrastruktur bzw. Verkehrsanbindung machen diese Immobilie besonders attraktiv. 



Die Wohnung liegt im 2. Liftstock und wurde vor rund 3 Jahren aufwendig saniert. Hervorzuheben sind die großen Fenster und die hohen Decken, die eine besondere Atmosphäre und mehr Lebensqualität bieten. Einzigartig charmante, gehobene Wohnkultur.



Die U3-Station Schlachthausgasse ist nur wenige Gehminuten entfernt und bietet eine hervorragende Anbindung. In unmittelbarer Nähe finden Sie alles, was das Leben angenehm macht: Ärzte, Apotheken, Schulen, Supermärkte und Verkehrsanbindungen. Hier wohnen Sie zentral und komfortabel!



Zur Information: Die Abbildung des Wohnzimmers wurde virtuell gestaltet und dient der Veranschaulichung. Die Originalfotos befinden sich ebenfalls im Inserat.

 



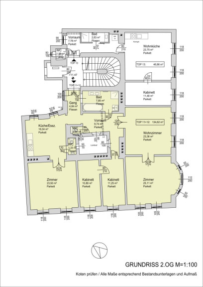
Die Wohnung teilt sich wie folgt auf:
- Vorzimmer

- 3 große Zimmer

- 2 Kabinetts

- Küche

- Badezimmer mit Wanne und Dusche 

- 2 separate Toiletten



Sanierungsarbeiten:
 - Holzparkettboden 

 - Elektro-, Gas- und Wasserleitungen 

 - neue Küche - weiß mit Arbeitsplatte in Eichenoptik

 - Gastherme 

 - Bad und WC 

 - Stiegenhaus: Elektro-, Gas- und Wasser- Steigleitungen 

 



Lage:
U3-Schlachthausgasse – ca. 3 min. fußläufig

Bus 77A, 80A - ca. 2 min. fußläufig

Straßenbahn S18 - ca. 2 min. fußläufig

Die Autobahn A4 ist angenehm und schnell zu erreichen.



Diverse Cafés und Restaurants sind fußläufig zu erreichen. Sehenswürdigkeiten wie dem Schloss Belvedere, Volksgarten, Rathaus und beliebten Museen sind mit den öffentlichen Verkehrsmitteln einfach zu erreichen.





Kontakt:
Für weitere Informationen steht Ihnen Frau Lydia Litau gerne zur Verfügung:

📞 +43 678 12 83831

📩 office@lydias-immobilien.at



Bitte beachten Sie: Aufgrund unserer Nachweispflicht gegenüber dem Eigentümer können nur Anfragen mit vollständigen Kontaktdaten (Vorname, Nachname, Adresse, Telefonnummer, E-Mail) bearbeitet werden.


Der Vermittler ist als Doppelmakler tätig.

Infrastruktur / Entfernungen

Gesundheit
Arzt <500m
Apotheke <500m
Klinik <500m
Krankenhaus <1.000m

Kinder & Schulen
Schule <500m
Kindergarten <500m
Universität <500m
Höhere Schule <1.000m

Nahversorgung
Supermarkt <500m
Bäckerei <500m
Einkaufszentrum <1.500m

Sonstige
Geldautomat <500m
Bank <500m
Post <500m
Polizei <500m

Verkehr
Bus <500m
U-Bahn <500m
Straßenbahn <500m
Bahnhof <500m
Autobahnanschluss <500m

Angaben Entfernung Luftlinie / Quelle: OpenStreetMap

Eckdaten Objektnr. 1801/38

Art: Wohnung
Land: Österreich
Baujahr: 1900
Alter: Altbau
Kaufpreis: 888.000,00
Provision: 3% des Kaufpreises zzgl. 20% USt.
Betriebskosten: 389,47 €
MwSt Gesamt: 38,95 €
Wohnfläche: 135,00 m²
Zimmer: 5
Bäder: 1
WC: 2
Heizwärmebedarf: 191,90 kWh/m²a
fGEE: 2,67
Immobilie merken Exposé

Ausstattung

Fliesen, Parkett, Gas, Etagenheizung, Einbauküche, Personenaufzug, Badewanne, Dusche


Immobilie anfragen


Ihre persönliche Beratung

Lydia Litau

Lydias Immobilien

T +43 678 128 38 31