Hohe Mieteinnahmen im Neubau | befristet vermietete Wohnung in U1 Nähe | Reumannplatz
                                                            Wohnung
                                ,
                            
                            
                                
                                                                            1100
                                    
                                                                            Wien
                                    
                                    
                                
                                                                    
                                        
                                    
                                
                            
                        
                        Beschreibung der Immobilie
Hohe Mieteinnahmen im Neubau | befristet vermietete Wohnung in U1 Nähe | Reumannplatz
Zum Verkauf gelangt eine befristet vermietete (kann bestandsfrei übergeben werden), tolle Wohnung im 4. Obergeschoss mit einer sehr guten Raumaufteilung in einem 1963 errichteten Wohnhaus. Das gepflegte Gebäude liegt in der Nähe der U1 Station Reumannplatz in Wien's bevölkerungsreichstem Bezirk.
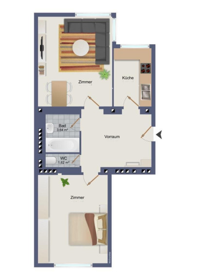
Zum Verkauf gelangt eine befristet vermietete 2 Zimmer Wohnung im 4. Obergeschoss im Lift. Alle Räume sind über den Vorraum zentralbegehbar. Die helle und freundliche Wohnung verfügt über ein Wohn-, und Essbereich, eine Küche, ein Schlafzimmer, ein Badezimmer und eine Toilette.
Die tolle Lage im 10. Bezirk und die zu Fuß leicht erreichbaren Verkehrsmittel runden das Angebot ab. Die Warmwasseraufbereitung sowie Heizung erfolgt über eine Gas-Heizung im Haus, die über die Betriebskosten verrechnet wird.
Highlights auf einen Blick
- praktische Raumaufteilung mit zentralem Vorraum
- 4. Obergeschoss mit Lift
- 2 Zimmer + Küche auf 63 m² Wohnfläche
- gepflegtes Wohnhaus
- tolle Lage im 10. Bezirk - nur wenige Minuten zur U1 Station Reumannplatz
- Kellerabteil
- zuverlässige Mieter - Mietvertrag bis zum 13.02.2027 (es besteht die Möglichkeit die Wohnung bestandsfrei oder samt Mieter zu erwerben)
Eckdaten
Wohnfläche: ca. 63 m²
Heizung: Gas
Toiletten: getrennt vom Badezimmer
Baujahr: 1963
Betriebskosten und Rücklagen sowie Mieteinnahmen
Betriebskosten monatlich
Betriebskosten inkl. 10% USt: € 179,15,-
Rücklagenfond allgemein und St. 1 - 3 : € 66,16,-
GESAMT: € 245,31 inkl. Rücklage
Mieteinnahmen
Die Wohnung ist derzeit befristet vermietet bis zum 13.02.2027. Es besteht die Möglichkeit die Wohnung samt Mieter oder bestandsfrei zu erwerben.
Der derzeitige Mietzins beträgt € 1200,- bruto inkl. Betriebskosten (USt.-befreit). Eine Kaution in Höhe von € 3.600,- wurde vom Mieter erlegt.
Rücklagenfond
Derzeit ist die Information über die aktuelle Höhe der Rücklagen noch ausstehend.
Mieteinnahmen
Der Gesamtmietzins beträgt: € 1.200,- brutto inkl. Betriebskosten (USt.-Befreit)
Beziehbar ab
Nach Vereinbarung oder nach Ablauf des Mietvertrages.
Raumaufteilung
- Vorraum
- Wohnzimmer
- Küche
- 1 Schlafzimmer
- Bad
- WC
Lage
Die Wohnung liegt mitten im 10. Bezirk in Reumannplatz Nähe
U-Bahnlinien: U1 Reumannplatz
Straßenbahnlinien: 6, 11,
Autobuslinien: 65A, 7A,
In der unmittelbaren Umgebung finden Sie Kindergärten, Schulen, Supermärkte und Drogerien sowie alle anderen Geschäfte des täglichen Bedarfs.
Auf Anfrage schicken wir Ihnen gerne ein Lage-Expose mit allen Supermärkten, Schulen, Kindergärten, öffentlichen Verkehrsmitteln und vielem mehr zu.
Kaufpreis: 250.000 € 
Provision: 3% + 20% USt. vom Kaufpreis
Kaufnebenkosten:
3,5% Grunderwerbssteuer
1,1% Grundbucheintragungsgebühr
? % Kaufvertragserrichtungskosten (üblicherweise zwischen 1 und 1,5% zzgl. 20% USt.)
Kontaktieren Sie uns bezüglich einer Besichtigung unter +43 660 570 77 23 oder info@pagoni.at 
Besuchen Sie unsere Website um einen Überblick über unser komplettes Immobilienangebot zu bekommen www.pagoni.at
Wir weisen darauf hin, dass zwischen dem Vermittler und dem zu vermittelnden Dritten ein familiäres oder wirtschaftliches Naheverhältnis besteht.
Der Vermittler ist als Doppelmakler tätig.
Infrastruktur / Entfernungen
Gesundheit
Arzt <500m
Apotheke <500m
Klinik <1.000m
Krankenhaus <2.500m
Kinder & Schulen
Schule <500m
Kindergarten <500m
Universität <1.000m
Höhere Schule <2.500m
Nahversorgung
Supermarkt <500m
Bäckerei <500m
Einkaufszentrum <1.500m
Sonstige
Geldautomat <500m
Bank <500m
Post <500m
Polizei <1.000m
Verkehr
Bus <500m
U-Bahn <500m
Straßenbahn <500m
Bahnhof <500m
Autobahnanschluss <1.000m
Angaben Entfernung Luftlinie / Quelle: OpenStreetMap
Eckdaten Objektnr. 6864/156
| Art: | Wohnung | 
| Land: | Österreich | 
| Baujahr: | 1963 | 
| Zustand: | Gepflegt | 
| Alter: | Neubau | 
| Kaufpreis: | 250.000,00 € | 
| Kaufpreis / m²: | 3.968,25 € | 
| Provision: | 9.000,00 € inkl. 20% USt. | 
| Betriebskosten: | 162,86 € | 
| MwSt Gesamt: | 16,29 € | 
| Wohnfläche: | 63,00 m² | 
| Zimmer: | 2 | 
| Bäder: | 1 | 
| WC: | 1 | 
| Keller: | 2,00 m² | 
| Heizwärmebedarf: | C 90,00 kWh/m²a | 
| fGEE: | D 1,93 | 
Ausstattung
Parkett, Gas, Einbauküche, Personenaufzug, Dusche
Ihre persönliche Beratung
 
                                                        Ivan Paunovic
Pagoni Immobilien e.U.
T +43 660 570 7723
 
                 
                 
                 
                 
                 
                 
                 
                 
                 
                 
                 
                 
                 
                 
                