Komfortables Wohnen in Wiener Neustadt: 40,88m², 1 Zimmer, Loggia, Fliesen, Parkett uvm.
                                                            Wohnung
                                ,
                            
                            
                                
                                                                            2700
                                    
                                                                            Wiener Neustadt
                                    
                                    ,
                                        Schulgartengasse                                                                                            20                                                                                    
                                    
                                
                                                                    
                                        
                                    
                                
                            
                        
                        Das Zehnerviertel bildet einen Bezirk der Wiener Neustädter Vorstadt und endet in der Peripherie an den Gemeindegrenzen von Weikersdorf und Bad Fischau-Brunn. Im Stadtgebiet wurde es von der Warmen Fischa, der Äußeren Dammgasse (heute Bahnzeile) bzw. dem Bahndamm der Südbahnstrecke und der Haidbrunngasse begrenzt. Der zentralste Straßenzug in den Osten war die Zehnergasse, über die man - wie noch heute - rasch in die "Zehnergärten" oder die "Schmuckerau" gelangte. Die Brunner- und die Weikersdorferstraße führten adäquat in Richtung der Hohen Wand und des Schneeberges, wodurch man die Gebiete des älteren "Schneebergviertels" (mit der Schneebergbahn), aber auch die Fischel-Kolonie im Südwesten der Stadt erreichte.
Beschreibung der Immobilie
Komfortables Wohnen in Wiener Neustadt: 40,88m², 1 Zimmer, Loggia, Fliesen, Parkett uvm.
Das Zehnerviertel bildet einen Bezirk der Wiener Neustädter Vorstadt und endet in der Peripherie an den Gemeindegrenzen von Weikersdorf und Bad Fischau-Brunn. 
In Nähe zum Zentrum der Bezirkshauptstadt Wiener Neustadt gelegen bietet, das Zehnerviertel exzellenter Infrastruktur und Anbindung. Hier finden Sie zahlreiche Einkaufsmöglichkeiten, Gastronomiebetriebe und Schuleinrichtungen. 
Als einer der wichtigsten Bahnknotenpunkte Österreichs ist Wiener Neustadt Schnitt- und Ausgangspunkt mehrerer Eisenbahnlinien:
Südbahn, Mattersburger Bahn, Aspangbahn, Pottendorfer Linie, Schneebergbahn, Gutensteinerbahn
Vom Hauptbahnhof aus werden mit direkten Zügen zahlreiche Zielbahnhöfe im In- und Ausland erreicht:
z.B.: Wien, Klagenfurt, Villach, Graz, Aspang-Markt, Friedberg, Hartberg, Fehring, Puchberg am Schneeberg, Gutenstein, Deutschkreutz, Payerbach-Reichenau, Eisenstadt, Neusiedl am See aber auch Ödenburg/Sopron, Venedig, Rom, Zagreb, Marburg an der Drau/Maribor, Prag, Znaim oder Warschau.
In Nähe zum Zentrum der Bezirkshauptstadt Wiener Neustadt entstehen 28 Wohneinheiten in bester Lage mit exzellenter Infrastruktur und Anbindung. Umringt von zahlreichen Einkaufsmöglichkeiten, Gastronomiebetrieben und Schuleinrichtungen ist von diesem Standort der Bahnhof in wenigen Gehminuten erreichbar und die naheliegende Schmuckerau bietet Erholung für Sportliebhaber, Hundebesitzer und Naturfreunde!
In einer ruhigen Seitengasse gelegen, wird hier eine moderne Wohnhausanlage samt Tiefgarage errichtet. Große Fensterflächen, erstklassige Architektur und Ausstattung lassen bei diesen modernen Eigentumswohnungen keine Wünsche offen!
Die Wohnungen verfügen dabei über eine hochwertige Ausstattung (je nach Art und Lage im Gebäude):
- Schlüsselfertig
- Fußbodenheizung
- Fliesen/Parkett
- Tiefgarage
- Personenaufzug
- Kellerabteil
- Barrierefrei
- Garten
- Terrasse
- Loggia
- Badewanne/Dusche
- Einstellraum für Kinderwagen und Fahrräder
- Vollwärmeschutz (20cm)
- Massive Bauweise
- Waschmaschinen und Trockneranschluss
- Beschattung der Schlafräume mittels elektr. Außenrollläden 
Bei Bedarf kann ein Tiefgaragenparkplatz zu je 21.000€ inkl. USt. angekauft werden.
Provisionsfrei für den Käufer!
Sie suchen ein Zuhause in einer lebendigen und dynamischen Stadt? Dann ist diese Immobilie in 2700 Wiener Neustadt in Niederösterreich genau das Richtige für Sie!
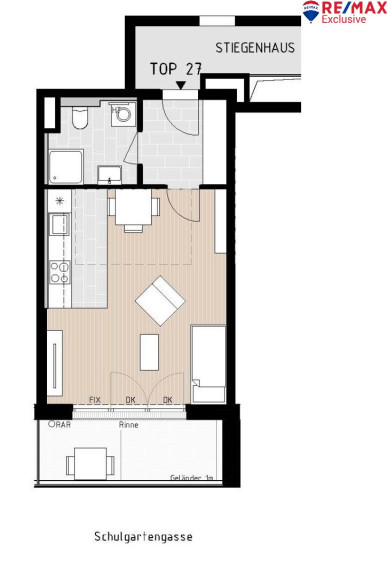
Diese Wohnung befindet sich im 2. OG und bietet eine Fläche von 40,88 m². Der Kaufpreis beträgt 224.840,00 €.
Das Wohnung bietet neben einem Zimmer auch eine Loggia. Ausgestattet mit Fliesen, Parkett und einer Fußbodenheizung sowie einer Dusche.
Zusätzlich verfügt das Gebäude über einen Personenaufzug und einen Fahrradraum.
Die Verkehrsanbindung ist ideal: Bus und Bahnhof sind in direkter Nähe.
Ein Arzt, eine Apotheke, eine Schule, ein Supermarkt und eine Bäckerei sind ebenfalls nur wenige Gehminuten entfernt.
Wenn Sie Interesse an dieser Immobilie haben, kontaktieren Sie uns noch heute! Wir helfen Ihnen gerne bei der Umsetzung Ihrer Wohnträume!
Aufteilung:
- Vorraum
- Badezimmer inkl. WC
- Wohnküche
 
Ausstattung:
- Fußbodenheizung
- Fliesen/Parkett
- Tiefgarage
- Personenaufzug
- Kellerabteil
- Barrierefrei
- Loggia
 
Kaufpreis 224.840,00€
Aufgrund der Nachweispflicht gegenüber dem Eigentümer ersuchen wir um Verständnis, dass nur Anfragen mit der Angabe der vollständigen Anschrift und Telefonnummer bearbeitet werden können.
Wir weisen auf Ihre 14-tägige Rücktrittsfrist (gemäß § 11 FAGG ) hin. Um Ihre Rechte zu wahren, können nur Anfragen mit vollständigen Kontaktdaten (Name, Adresse, Telefon, Email) beantwortet werden.
Vor Ablauf der 14-tägigen Rücktrittsfrist werden wir gerne für Sie tätig, wenn Sie gesetzeskonform (FAGG) uns ausdrücklich (am einfachsten per E-Mail) dazu auffordern.
Wenn der Kaufvertrag/der Mietvertrag nicht zustande kommt, bleibt unsere Tätigkeit für Sie vollkommen kostenlos.
Gewährleistung:
Die Verkäuferseite gewährleistet, dass der Vertragsgegenstand ihr unbeschränktes Eigentum und frei von Geldlasten, Bestandrechten und sonstigen Rechten Dritter ist.
Ansonsten wird jede Gewährleistung der Verkäuferseite ausgeschlossen und festgestellt, dass sich dieser Gewährleistungsausschluss sowohl auf bestimmte als auch auf gewöhnlich vorausgesetzte Eigenschaften des Vertragsgegenstandes wie beispielsweise Lage, Größe, Zustand, Abnützung, Widmung, Beschaffenheit, Ertrag und Verwendungsmöglichkeit bezieht.
Der Vermittler ist als Doppelmakler tätig.
Infrastruktur / Entfernungen
Gesundheit
Arzt <700m
Apotheke <575m
Klinik <1.075m
Krankenhaus <1.775m
Kinder & Schulen
Schule <275m
Kindergarten <1.300m
Höhere Schule <1.400m
Universität <3.600m
Nahversorgung
Supermarkt <575m
Bäckerei <350m
Einkaufszentrum <1.325m
Sonstige
Bank <625m
Geldautomat <625m
Polizei <975m
Post <675m
Verkehr
Bus <275m
Autobahnanschluss <2.125m
Bahnhof <575m
Flughafen <2.725m
Angaben Entfernung Luftlinie / Quelle: OpenStreetMap
Eckdaten Objektnr. 2883-2
| Art: | Wohnung | 
| Land: | Österreich | 
| Baujahr: | 2024 | 
| Zustand: | Erstbezug | 
| Alter: | Neubau | 
| Kaufpreis: | 224.840,00 € | 
| Provision: | Provision bezahlt der Abgeber. | 
| Wohnfläche: | 40,88 m² | 
| Zimmer: | 1 | 
| Bäder: | 1 | 
| WC: | 1 | 
| Keller: | 2,16 m² | 
| Heizwärmebedarf: | B 30,90 kWh/m²a | 
Ausstattung
Fliesen, Parkett, Fußbodenheizung, Zentralheizung, Personenaufzug, Dusche, Kabel/Satelliten-TV
Ihre persönliche Beratung
 
                                                        Clemens Sinabell, MA
RE/MAX Exclusive Brugger KG
T 02622 320 81
H +43 660 155 95 48
 
                 
                 
                 
                 
                 
                 
                 
                 
                 
                 
                