Ordination/Büro/Kanzlei mitten in St. Pölten - barrierefrei

Büro / Praxis , 3100 St. Pölten , Wiener Straße


Fußgängerzone, Herrenplatz, Domplatz

Beschreibung der Immobilie

Ordination/Büro/Kanzlei mitten in St. Pölten - barrierefrei

Ideal für Arztpraxis oder Kanzlei durch 2 getrennte Eingänge (1 Stiegenhaus mit Lift, 1 Stiegenhaus ohne Lift). Barrierefreier Zugang!
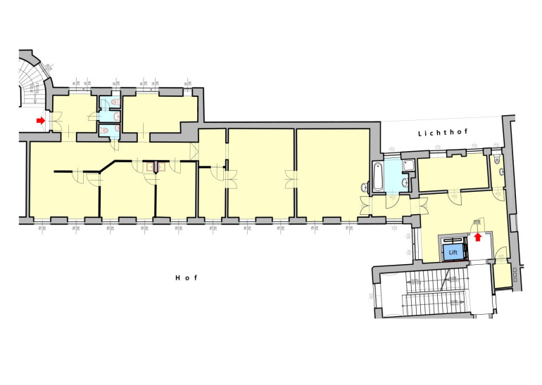
Diese bisher als Arztpraxis verwendeten Räumlichkeiten bieten vielfältige Gestaltungsmöglichkeiten für bis zu 10 Räume.



Lage & Infrastruktur:

Die Bahnhofsnähe bietet eine hervorragende überregionale Anbindung. Der Hauptbahnhof ist nur ein paar Gehminuten entfernt.

Auch lokal ist man bestens angebunden: Vom Bahnhofsvorplatz erreicht man alle Teile St. Pöltens bequem mit dem Bus und kann so auf das eigene Auto verzichten. Rettungsfahrzeuge können über die Fußgängerzone zufahren. Für die Stellplätze im Hof ist eine Einfahrtsberechtigung erforderlich.



Der schöne Altbau bietet fast 4 m hohe Räume und durch viele vorwiegend nach Osten orientierte Fenster viel Licht.

Trotz der zentralen Lage mitten in St. Pölten gibt es selbst bei geöffneten Fenstern keinen Verkehrslärm.



Austattung:

Die Räumlichkeiten wurden bisher als Ordination genutzt. Die Installationen sind verwendbar, eine vollständige Neugestaltung ist aber möglich.

Einige Wände sind in Elementbauweise errichtet und können mit geringem Aufwand verändert werden.

Die Heizung erfolgt über Fernwärme.



Pkw-Stellplätze im Hof sind verfügbar.

Ein Teil des großen Gartens kann exklusiv dazugemietet werden.



Befristung: unbefristet

Beziehbar: nach Vereinbarung




Hinweis gemäß Energieausweisvorlagegesetz: Ein Energieausweis wurde vom Eigentümer bzw. Verkäufer, nach unserer Aufklärung über die generell geltende Vorlagepflicht, sowie Aufforderung zu seiner Erstellung noch nicht vorgelegt. Daher gilt zumindest eine dem Alter und der Art des Gebäudes entsprechende Gesamtenergieeffizienz als vereinbart. Wir übernehmen keinerlei Gewähr oder Haftung für die tatsächliche Energieeffizienz der angebotenen Immobilie.


Der Vermittler ist als Doppelmakler tätig.

Infrastruktur / Entfernungen

Gesundheit
Arzt <250m
Apotheke <250m
Klinik <1.000m
Krankenhaus <1.250m

Kinder & Schulen
Schule <250m
Kindergarten <250m
Universität <1.250m
Höhere Schule <250m

Nahversorgung
Supermarkt <250m
Bäckerei <250m
Einkaufszentrum <250m

Sonstige
Bank <250m
Geldautomat <250m
Polizei <250m
Post <250m

Verkehr
Bus <500m
Bahnhof <500m
Autobahnanschluss <2.750m
Flughafen <5.750m

Angaben Entfernung Luftlinie / Quelle: OpenStreetMap

Eckdaten Objektnr. 52

Art: Büro / Praxis
Land: Österreich
Alter: Altbau
Nutzfläche: 209,00 m²
Zimmer: 10
Bäder: 1
WC: 2
Immobilie merken Exposé

Ausstattung

Personenaufzug


Immobilie anfragen


Ihre persönliche Beratung

Wohnglück Immobilien e.U.

Nikolaus Glück

Wohnglück Immobilien e.U.

H +43 664 30 700 12