Neubau-Apartment mit Balkon in repräsentativen Gründerzeithaus
Wohnung
- Dachgeschoß,
1150
Wien
Lage und Infrastruktur Die Lage der Immobilie lässt sich als sehr gut bezeichnen, da die Umgebung rund um den kürzlich modernisierten und umgebauten Westbahnhof als zentrales Zielgebiet der Stadtentwicklung derzeit einen erheblichen Aufschwung erlebt. Geschäfte des täglichen Bedarfs sind fußläufig erreichbar, insbesondere in der Märzstraße, der Hütteldorfer Straße und in der Bahnhof City Wien West am Europaplatz/Westbahnhof. Der sogenannte „Westbahnpark entlang der Felberstraße“ macht die gesamte Liegenschaft noch attraktiver. Die Innenstadt ist dank der U-Bahn-Anbindung U3 in ca. 15 Minuten erreichbar. Die Liegenschaft ist nur 75 Meter von der U3-Station Schweglerstraße entfernt, dadurch ist eine sehr gute Anbindung an den öffentlichen Verkehr geboten. Der Westbahnhof mit den U-Bahn-Linien U3 und U6 befindet sich ebenfalls in unmittelbarer Nähe. Für den Individualverkehr ist die Liegenschaft über die Felberstraße, die Goldschlagstraße und den Neubaugürtel hervorragend erreichbar.
Beschreibung der Immobilie
Neubau-Apartment mit Balkon in repräsentativen Gründerzeithaus
Das repräsentative Gründerzeithaus aus 1883 mit reich gegliederter Fassade wurde vor 3 Jahren liebevoll ausgebaut und der Wohnraum wurde um 7 wunderschöne Dachterrassen Apartments erweitert. Die Grundrisse sind durchdacht und bieten mit Aussenflächen und tw. Dachterrassen ein herrliches Wohngefühl nicht nur in der schönen Jahreszeit.
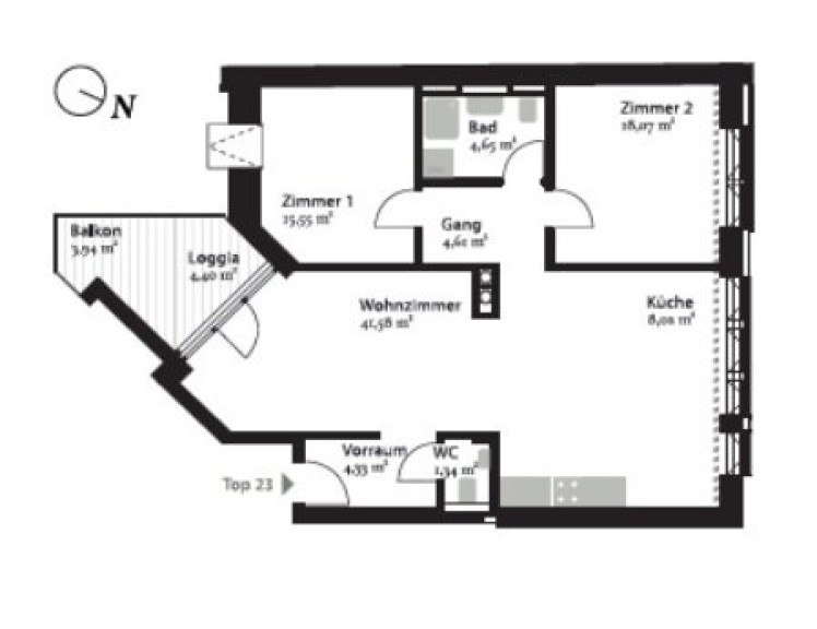
Die Top 23 liegt im 1. DG und bietet auf einer Wohnfläche von 92,38 m² modernes, komfortables und ruhiges Wohnen. Vom Eingangsbereich gelangt man in die großzügige ca. 20,29 m² große Wohnküche, von dort ins Wohnzimmer mit ca. 23,59 m², 2 Schlafzimmer, Badezimmer mit Dusche, Loggia mit einer Größe von ca. 4,40 m² und einem Balkon mit einer Größe von ca. 3,94 m².
Die hochwertigen Materialien, darunter stilvolle Fliesen und edles Parkett, schaffen eine warme und einladende Atmosphäre. Die großen Fenster sorgen nicht nur für eine hervorragende Belüftung, sondern auch für viel Tageslicht, das die Räume erhellt und eine angenehme Wohnatmosphäre schafft.
Wir weisen darauf hin, dass zwischen dem Vermittler und dem zu vermittelnden Dritten ein familiäres oder wirtschaftliches Naheverhältnis besteht.
Der Vermittler ist als Doppelmakler tätig.
Infrastruktur / Entfernungen
Gesundheit
Arzt <500m
Apotheke <500m
Klinik <1.000m
Krankenhaus <1.500m
Kinder & Schulen
Schule <500m
Kindergarten <500m
Universität <1.500m
Höhere Schule <1.500m
Nahversorgung
Supermarkt <500m
Bäckerei <500m
Einkaufszentrum <1.000m
Sonstige
Geldautomat <500m
Bank <500m
Post <1.000m
Polizei <500m
Verkehr
Bus <500m
U-Bahn <500m
Straßenbahn <500m
Bahnhof <500m
Autobahnanschluss <4.500m
Angaben Entfernung Luftlinie / Quelle: OpenStreetMap
Eckdaten Objektnr. 4356/207
Art: | Wohnung - Dachgeschoß |
Land: | Österreich |
Alter: | Neubau |
Kaufpreis: | 789.000,00 € |
Provision: | 3% des Kaufpreises zzgl. 20% USt. |
Wohnfläche: | 92,38 m² |
Zimmer: | 3 |
Heizwärmebedarf: | B 32,70 kWh/m²a |
fGEE: | A+ 0,75 |
Ausstattung
Fliesen, Parkett, Wohnküche / offene Küche, Personenaufzug, Badewanne, Dusche
Ihre persönliche Beratung

Laura Wirawan-Fritsch
RealGoodLiving Real Estate Services GmbH
T +43 1 890 01 52
H +43 699 1019 2020