860,08 m² großes Grundstück in 3400 Klosterneuburg | Baubewilligung Einfamilienhaus
                                                            Grundstück
                                - Baugrund Eigenheim,
                            
                            
                                
                                                                            3400
                                    
                                                                            Kierling
                                    
                                    
                                
                                                                    
                                        
                                    
                                
                            
                        
                        Beschreibung der Immobilie
860,08 m² großes Grundstück in 3400 Klosterneuburg | Baubewilligung Einfamilienhaus
Über das Grundstück
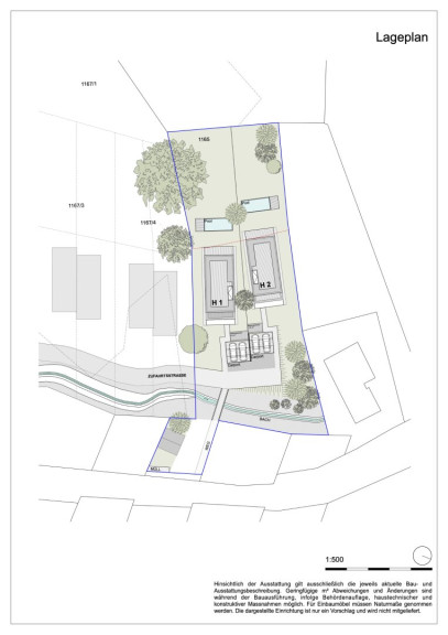
Zum Verkauf steht ein 860,08 m² großes Grundstück in Klosterneuburg – baubewilligt und sofort bebaubar. Das genehmigte Projekt umfasst ein modernes Einfamilienhaus mit einer Gesamtwohnnutzfläche von 202,41 m², die zeitgemäßen Wohnkomfort mit naturnaher Lebensqualität verbinden.
Das Haus erstreckt sich über drei Ebenen und überzeugt mit großzügigen Terrassen, Loggien und privaten Gärten – perfekt für Familien oder anspruchsvolle Käufer, die Wert auf Ruhe und Exklusivität legen.
Ein besonderes Highlight ist das angrenzende gemeinschaftliche Grünland, das den zukünftigen Bewohnern eine einzigartige Naturkulisse bietet. Der dort errichtete Naturteich mit einer Fläche von rund 80 bis 100 m² schafft eine idyllische Wohlfühloase und steht allen Eigentümern zur Nutzung zur Verfügung.
Eckdaten
Grundstücksfläche: 860,08 m²
Geplante Wohnnutzfläche gesamt: 202,41 m²
Baubewilligung: Vorhanden
Bebaubarkeit: 0,00 lt. Flächenwidmungsplan
Max. Wohneinheiten pro Grundstück: 1
Bauweise: o, offen
Bauklasse: 5,7 m
Bei näherem Interesse senden wir Ihnen gerne detailliertere Unterlagen zu.
Aufgrund der Nachweispflicht gegenüber dem Eigentümer können nur schriftliche Anfragen mit vollständigen Kontaktdaten (Name, Anschrift, Tel.-Nr., E-Mail) beantwortet werden.
Irrtum und Änderungen vorbehalten. Oben angeführte Angaben basieren auf Informationen und Unterlagen des Eigentümers und sind unsererseits ohne Gewähr.
Noch nichts gefunden? Wir informieren Sie über geeignete Immobilienangebote noch vor allen anderen.
Legen Sie jetzt Ihren individuellen Suchagenten unter folgendem Link an. Wir schicken Ihnen passende Immobilien exklusiv vorab zu.
Suchagent anlegen - https://avana-real-estate.service.immo/registrieren/de
Wir weisen darauf hin, dass zwischen dem Vermittler und dem zu vermittelnden Dritten ein familiäres oder wirtschaftliches Naheverhältnis besteht.
Der Vermittler ist als Doppelmakler tätig.
Infrastruktur / Entfernungen
Gesundheit
Arzt <1.000m
Apotheke <1.000m
Klinik <2.500m
Krankenhaus <4.000m
Kinder & Schulen
Schule <1.000m
Kindergarten <1.000m
Universität <1.500m
Höhere Schule <9.000m
Nahversorgung
Supermarkt <1.000m
Bäckerei <3.500m
Einkaufszentrum <8.000m
Sonstige
Bank <4.000m
Geldautomat <4.000m
Post <1.000m
Polizei <4.000m
Verkehr
Bus <1.000m
Straßenbahn <7.500m
U-Bahn <9.500m
Bahnhof <4.000m
Autobahnanschluss <5.500m
Angaben Entfernung Luftlinie / Quelle: OpenStreetMap
Eckdaten Objektnr. 6729/824
| Art: | Grundstück - Baugrund Eigenheim | 
| Land: | Österreich | 
| Kaufpreis: | 499.000,00 € | 
| Provision: | 3% des Kaufpreises zzgl. 20% USt. | 
| Grundstücksfl.: | 860,08 m² | 
| Heizwärmebedarf: | B 41,00 kWh/m²a | 
| fGEE: | A+ 0,58 | 
Ihre persönliche Beratung
 
                                                        Avana Real Estate GmbH
Avana Real Estate GmbH
T +43 1 934 60 48
 
                 
                 
                 
                