Beschreibung der Immobilie
Helle 2-Zimmer Gartenwohnung mit bester Anbindung zum Stephansplatz
Im Falle der Notwendigkeit einer Fremdfinanzierung Ihrer Wunschimmobilie ermittelt unser Wohnbau-Finanzierungsexperte gerne die optimale Finanzierungslösung und findet das passende Zins- und Konditionsangebot für Sie. Er vergleicht die aktuellen Angebote aller relevanten Banken und Bausparkassen. Der Angebotsvergleich kann aus einem Portfolio von über 120 Banken erfolgen. Das Erstgespräch ist für Sie kostenfrei und unverbindlich, gerne auch bei Ihnen vor Ort. So sparen Sie Ihre wertvolle Zeit und erhalten eine professionelle und unabhängige Finanzierungslösung vom Spezialisten. Sprechen Sie uns wegen eines Termins gerne an!
Zum Verkauf gelangt diese 2-Zimmer Gartenwohnung im schönen 3. Wiener Gemeindebezirk.
Die Wohnung befindet sich im Hochparterre eines im Jahre 1911 erbauten Altbaus und erstreckt sich über eine Wohnfläche von ca. 42 m², welche sich in einen Vorraum, ein Schlafzimmer, eine Wohnküche und ein Badezimmer aufteilt. Das gepflegte Haus befindet sich in ausgezeichnetem Zustand, das Wohnungseigentum wurde erst kürzlich begründet. Die Beheizung erfolgt komfortabel über eine moderne Zentralheizung, und seit 2024 wird eine Reparaturrücklage aufgebaut, die derzeit bei 3.000 € liegt. Ein Personenaufzug ist vorhanden. Für zusätzlichen Wohnkomfort stehen den Bewohnern ein trockenes, gut belüftetes Kellerabteil sowie eine großzügige, gemeinschaftlich nutzbare Waschküche zur Verfügung.
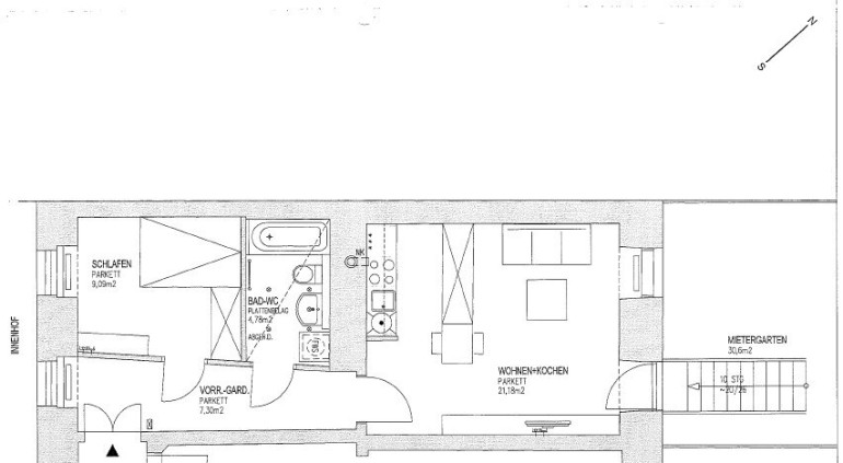
Diese einladende Wohnung vereint durchdachte Raumaufteilung mit einem besonderen Highlight: einen privaten Garten, der zum Entspannen und Wohlfühlen einlädt.
Beim Betreten der freundlichen Diele (7,3 m²) eröffnet sich eine gut durchdachte Wohnatmosphäre, da alle Räume zentral begehbar sind. Das hofseitig gelegene Schlafzimmer (ca. 9 m²) bietet absolute Ruhe und schafft einen gemütlichen Rückzugsort. Direkt angrenzend befindet sich das Badezimmer (ca. 5 m²), das mit einer Badewanne sowie einem praktischen Waschmaschinenanschluss ausgestattet ist. Das Herzstück der Wohnung ist die großzügige Wohnküche (21 m²) mit einer voll funktionalen Einbauküche und einer beeindruckenden Glasfront, die viel Tageslicht hereinlässt und einen wunderschönen Blick ins Freie bietet. Ein besonderes Highlight ist der private Garten (ca. 31 m²) – ein seltener Luxus in dieser Lage. Ob gemütliche Morgenstunden mit einer Tasse Kaffee, entspannte Sommerabende oder eine kleine grüne Oase ganz nach Ihren Vorstellungen – hier genießen Sie Ihre persönliche Auszeit im Freien.
Diese Wohnung bietet eine perfekte Kombination aus Stadtleben und Ruhe.
Die stilvolle und bestens erhaltene Liegenschaft besticht durch ihre erstklassige Lage direkt am Kardinal-Nagl-Platz, eingebettet in eine ruhige, verkehrsberuhigte Einbahnstraße. Dank der unmittelbaren Nähe zur U-Bahn-Station ist eine hervorragende Anbindung an das Stadtzentrum gegeben, während die charmante Umgebung mit zahlreichen Geschäften, Cafés und Grünflächen ein angenehmes Wohngefühl vermittelt.
Gerne lassen wir Ihnen bei ernsthaftem Interesse - vor Kaufanbotlegung - weitere vertraulichen Dokumente zu dieser Liegenschaft zukommen, welche nicht veröffentlicht werden dürfen.
Überzeugen Sie sich selbst von diesem überaus attraktiven Objekt. Für Besichtigungen und nähere Informationen stehen wir Ihnen gerne zur Verfügung!
Stephan Wallner
national - Tel: 0664 5228831
international - Tel: +43 664 5228831
e-mail: wallner@lifestyle-properties.at
Wir weisen darauf hin, dass zwischen dem Vermittler und dem zu vermittelnden Dritten ein familiäres oder wirtschaftliches Naheverhältnis besteht.
Der Vermittler ist als Doppelmakler tätig.
Infrastruktur / Entfernungen
Gesundheit
Arzt <500m
Apotheke <500m
Klinik <500m
Krankenhaus <500m
Kinder & Schulen
Schule <500m
Kindergarten <500m
Universität <1.000m
Höhere Schule <500m
Nahversorgung
Supermarkt <500m
Bäckerei <500m
Einkaufszentrum <500m
Sonstige
Geldautomat <500m
Bank <500m
Post <500m
Polizei <500m
Verkehr
Bus <500m
U-Bahn <500m
Straßenbahn <1.000m
Bahnhof <500m
Autobahnanschluss <1.000m
Angaben Entfernung Luftlinie / Quelle: OpenStreetMap
Eckdaten Objektnr. 4742
| Art: | Wohnung | 
| Land: | Österreich | 
| Baujahr: | 1911 | 
| Zustand: | Modernisiert | 
| Alter: | Altbau | 
| Kaufpreis: | 318.000,00 € | 
| Provision: | 3% des Kaufpreises zzgl. 20% USt. | 
| Betriebskosten: | 86,82 € | 
| MwSt Gesamt: | 8,68 € | 
| Wohnfläche: | 42,35 m² | 
| Nutzfläche: | 72,95 m² | 
| Zimmer: | 2 | 
| Bäder: | 1 | 
| WC: | 1 | 
| Garten: | 30,60 m² | 
| Keller: | 2,55 m² | 
| Heizwärmebedarf: | D 111,10 kWh/m²a | 
| fGEE: | D 1,88 | 
Ausstattung
Fliesen, Parkett, Zentralheizung, Einbauküche, Wohnküche / offene Küche, Personenaufzug, Badewanne
Ihre persönliche Beratung
 
                                                        Stephan Wallner
Lifestyle Properties
T +43 1 512 14 84
H +43 664 5228831
F +43 1 512 14 84
 
                 
                 
                 
                 
                 
                 
                 
                 
                 
                 
                 
                 
                 
                 
                 
                 
                