Gut aufgeteilte 2-Zimmerwohnung
Wohnung
- Erdgeschoß,
2353
Guntramsdorf
Zentrum-Nähe
Beschreibung der Immobilie
Gut aufgeteilte 2-Zimmerwohnung
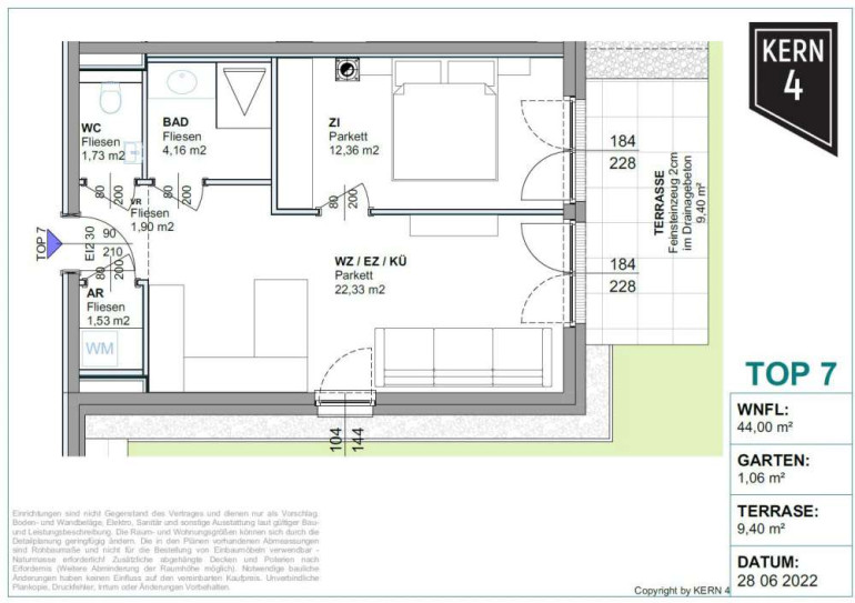
Der folgende Immobilien Spot bringt Ihnen das Neubauprojekt näher.Diese Neubauwohnung mit ca. 44 m² und einer ca. 9,40 m² großen Terrasse befindet sich im Erdgeschoss.
Die Wohnung überzeugt durch ihren gut geplanten Grundriss. Sie verfügt über ein geräumiges Wohnzimmer mit offener italienischer Designerküche und Ausgang auf die Terrasse, 1 Schlafzimmer, ein Badezimmer mit Dusche und aufgesetztem Waschtisch, ein separates WC, sowie einen Abstellraum mit WM-Anschluss.
Ausstattung:
• einbruchhemmende Wohnungseingangstüre
• Echtholzparkett (Eiche) in allen Wohnräumen
• bodentiefe Fenster (Internorm)
• modernes Aufsatzwaschbecken und Designer Armaturen
• Fußbodenheizung/Fernwärme
• Italienische Designer - Küche Fa. Stosa Cucine inkl. aller Einbaugeräte
• Kommode und Einbauschränke der Firma Novamobili aus Italien
• Leerverrohrung für die Installation einer Klimaanlage im Erdgeschoß und Dachgeschoß (optional)
• elektrische Außenjalousien
• Video-Gegensprechanlage
• Ausreichend Kinderwagen- und Fahrradabstellplätze
• Kellerabteil
TG-Plätze in normaler Ausführung, behindertengerecht oder auch Motoradabstellplätze können selbstverständlich dazu gemietet werden!
Lage:
Das Neubauprojekt KERN 4 besticht durch seine optimale Lage zwischen Großstadt und grünen Weinbergen und Feldern. In Guntramsdorf fühlt man sich schnell heimisch. Durch die direkte Anbindung an die Badner Bahn sind Sie in nur 30 Min in der Wiener Innenstadt. Und doch sind Sie in nur wenigen Gehminuten direkt im Erholungsgebiet, welches Möglichkeiten zum Spielen und Toben für die Kinder, aber auch für sportliche Aktivitäten wie Walken und Laufen, bietet.
Im Herzen von Guntramsdorf haben Sie alles Wesentliche in unmittelbarer Nähe: ob Nahversorger, Apotheke, Ärztezentrum oder Bank. Auch Kindergarten und Volksschule sind fußläufig erreichbar.
Eckdaten Objektnr. 141/82585
| Art: | Wohnung - Erdgeschoß |
| Land: | Österreich |
| Baujahr: | 2022 |
| Möbliert: | Teil |
| Gesamtmiete: | 1.190,30 € |
| Kaltmiete (netto): | 718,27 € |
| Betriebskosten: | 102,00 € |
| Sonstige Kosten: | 240,00 € |
| MwSt Gesamt: | 130,03 € |
| Wohnfläche: | 44,00 m² |
| Zimmer: | 2 |
| Bäder: | 1 |
| WC: | 1 |
| Terrassen: | 1 |
| Heizwärmebedarf: | B 33,03 kWh/m²a |
| fGEE: | A 0,70 |
Ausstattung
Fernwärme, Zentralheizung, Personenaufzug
Ihre persönliche Beratung
Dieser Makler ist ein offizielles Mitglied des IR – ir.at Mehr Erfahren
