Beschreibung der Immobilie
Großzügiges Einfamilienhaus mit schönem Garten, Nähe Alte Donau
Im Falle der Notwendigkeit einer Fremdfinanzierung Ihrer Wunschimmobilie ermittelt unser Wohnbau-Finanzierungsexperte gerne die optimale Finanzierungslösung und findet das passende Zins- und Konditionsangebot für Sie. Er vergleicht die aktuellen Angebote aller relevanten Banken und Bausparkassen. Der Angebotsvergleich kann aus einem Portfolio von über 120 Banken erfolgen. Das Erstgespräch ist für Sie kostenfrei und unverbindlich, gerne auch bei Ihnen vor Ort. So sparen Sie Ihre wertvolle Zeit und erhalten eine professionelle und unabhängige Finanzierungslösung vom Spezialisten. Sprechen Sie uns wegen eines Termins gerne an!
Zum Verkauf gelangt ein charmantes 5-Zimmer Einfamilienhaus in bester Lage des 21. Wiener Gemeindebezirks. Das Objekt befindet sich auf einen Pachtgrund.
Die Immobilie wurde im Jahre 2013 erbaut und erstreckt sich über eine Wohnfläche von ca. 177,95 m², welche auf drei Stockwerke aufgeteilt ist. Zusätzlich verfügt sie über einen traumhaften Garten mit einer Fläche von ca. 195 m². Das Objekt teilt sich auf in einen Vorraum, ein Wohnzimmer, ein Esszimmer mit Küche, drei Zimmer, drei Bäder, vier Toiletten, einen Schrankraum, einen Abstellraum sowie einen ca. 67,17 m² großen Keller. Das Objekt wird mit hochwertigen Möbel verkauft. Das Highlight dieser Traumimmobilie ist zweifelsohne der wunderschöne Garten sowie die beiden Terrassen, welche zum Verweilen an der frischen Luft einladen. Beheizt wird das Objekt mittels Gas-Zentralheizung. Zusätzlich verfügt es über eine Klimaanlage.
Sie betreten das Haus und befinden sich im geräumigen Vorraum, welcher mit einer wunderschönen Tapete ausgeschmückt ist. Von hier aus gelangen Sie zur ersten Toilette. Diese verfügt über einen traumhaften Kronleuchter und wurde mit stilvollen Fliesen ausgekleidet. Danach gelangen Sie direkt in das ca.26,82 m² großen Esszimmer mit Küche. Dort treffen Sie auf eine traumhafte Küche, welche mit modernsten Geräten ausgestattet ist und Ihnen viel Stauraum bietet. Des Weiteren verfügt das Esszimmer über einen wunderschönen, weißen Esstisch. Von dort aus gelangen Sie weiter in das ca. 27,78 m² große Wohnzimmer, welches durch die vielen Fenster mit Licht durchflutet wird und dadurch sehr hell und einladend erscheint. Sie treffen hier auf eine große Couchlandschaft, von welcher aus sie einen traumhaften Blick in den Garten genießen können. Über das Wohnzimmer erreichen Sie den Garten mit Terrasse.
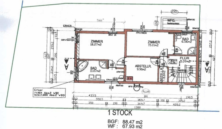
Über die Treppe, welche sie vom Vorraum aus erreichen, gelangen Sie direkt in das Obergeschoss. Dort treffen Sie auf zwei Zimmer, welche ca. 15,11 m² und 18,27 m² groß sind, sowie auf zwei Bäder, einen Schrankraum und einen Abstellraum. Über einen Gang treffen Sie auf das kleinere der beiden Zimmer. Das Zimmer dient idealerweise als Kinderzimmer, da es schon mit einem Kinderbett ausgestattet ist. Ein Schreibtisch, ein schöner Kleiderschrank und ein traumhafter Kronleuchter sind ebenfalls vorhanden. Sie gelangen danach in das erste wunderschöne Badezimmer, welches über eine Badewanne, eine schöne Dusche und einem großen Waschbecken verfügt. Das Besondere an diesem Badezimmer ist, dass die Dusche mit einer stilvollen Duschkabine ausgestattet ist. Das Badezimmer ist mit schönen Farben gestaltet und wirkt sehr einladend. Danach gelangen Sie in das nächste Zimmer, über ein schönes Doppelbett verfügt und durch die Fenster angenehm hell wirkt. Ausgestattet ist es ebenfalls mit einem schönen Schreibtisch und einem Kleiderschrank mit Spiegel. Hier treffen Sie auf ein eigenes Badezimmer, welches über eine Badewanne, einem Waschbecken und einer Toilette verfügt. Zudem ist das Badezimmer mit wunderschönen Fliesen verlegt worden, welches dem Raum einen unglaublichen Charme gewährt.
Über die Treppe hinauf gelangen Sie nun ins Dachgeschoss, wo sich auch das wunderschöne, ca. 28,78 m² große Schlafzimmer befindet. Wenn Sie das Zimmer betreten, werden Sie vom Charme dieses Zimmers begeistert sein. Der Raum hat einen direkten Zugang auf die ca. 23,58 m² große Terrasse. Die traumhafte Terrasse ist mit wunderschönen Terrassendielen verlegt worden und bietet viel Platz für eine gemütliche Sitzgelegenheit. Hier können Sie die frische Luft genießen und vom Alltag abschalten. Das Schlafzimmer verfügt über ein Doppelbett, einem eleganten Couchsessel und diverse andere Möbel. Der Raum ist angenehm lichtdurchflutet und bietet einen traumhaften Ausblick. Das Schlafzimmer besitzt außerdem auch über ein eigenes, wunderschönes Badezimmer. Dieses ist mit wunderschönen, dunklen Marmorfliesen ausgekleidet und besitzt eine Toilette, eine große Dusche, und ein stilvolles Waschbecken. Außerdem befindet sich im Dachgeschoss eine weitere Terrasse mit ca. 8,06 m². Im Keller angelangt, treffen Sie auf eine große Waschküche. Hier haben Sie genügend Platz, um diverse Dinge verstauen zu können. Die Lage und die Infrastruktur dieses Hauses könnten nicht besser sein! Die Alte Donau befindet sich nur wenige Minuten von Ihnen entfernt. Dort befinden sich wunderschöne Badestrände und Freibäder. Auch die sportlichen Aktivitäten kommen nicht zu kurz: Stand Up Paddling, Boot fahren, Surfen, Segeln usw. Auch die Anbindung an den öffentlichen Verkehr ist hervorragend. Die Bushaltestelle „Friedstraße“ (20 A), die U-Bahn-Station „Neue Donau“ (U6) und sämtliche Straßenbahnlinien befinden sich in unmittelbarer Nähe. Auch Volksschulen, Mittelschulen und Gymnasien sind in der Nähe auffindbar.
Gerne lassen wir Ihnen bei ernsthaftem Interesse - vor Kaufanbotlegung - weitere vertraulichen Dokumente zu dieser Liegenschaft zukommen, welche nicht veröffentlicht werden dürfen.
Überzeugen Sie sich selbst von diesem überaus attraktiven Objekt. Für Besichtigungen und nähere Informationen stehen wir Ihnen gerne zur Verfügung!
Hr. Christian Kiedl
national - Tel: 0664 336 0836
international - Tel: +43 664 336 0836
e-mail: kiedl@lifestyle-properties.at
Infrastruktur / Entfernungen
Gesundheit
Arzt <1.000m
Apotheke <1.500m
Klinik <1.500m
Krankenhaus <2.000m
Kinder & Schulen
Schule <1.000m
Kindergarten <1.000m
Universität <1.500m
Höhere Schule <1.500m
Nahversorgung
Supermarkt <1.000m
Bäckerei <1.500m
Einkaufszentrum <1.500m
Sonstige
Geldautomat <1.500m
Bank <1.500m
Post <1.000m
Polizei <1.500m
Verkehr
Bus <500m
U-Bahn <1.000m
Straßenbahn <1.500m
Bahnhof <1.000m
Autobahnanschluss <1.000m
Angaben Entfernung Luftlinie / Quelle: OpenStreetMap
Eckdaten Objektnr. 4739
| Art: | Haus | 
| Land: | Österreich | 
| Baujahr: | 2013 | 
| Möbliert: | Voll | 
| Alter: | Neubau | 
| Kaufpreis: | 1.200.000,00 € | 
| Provision: | 3% des Kaufpreises zzgl. 20% USt. | 
| Wohnfläche: | 177,95 m² | 
| Zimmer: | 5 | 
| Bäder: | 3 | 
| WC: | 5 | 
| Terrassen: | 2 | 
| Stellplätze: | 1 | 
| Garten: | 195,00 m² | 
| Keller: | 67,17 m² | 
| Heizwärmebedarf: | B 47,20 kWh/m²a | 
| fGEE: | A 0,74 | 
Ausstattung
Fliesen, Parkett, Gas, Zentralheizung, Wohnküche / offene Küche, Bad mit Fenster, Badewanne, Dusche, Alarmanlage
Ihre persönliche Beratung
 
                                                        Christian Kiedl
Lifestyle Properties
T +43 1 512 14 84
H +43 664 336 0836
F +43 1 512 14 84
 
                 
                 
                 
                 
                 
                 
                 
                 
                 
                 
                 
                 
                 
                 
                 
                 
                 
                 
                 
                 
                 
                 
                 
                 
                 
                 
                 
                 
                 
                 
                 
                 
                 
                 
                 
                 
                 
                 
                