Neubau: Exklusives Wohnen am Bodensee – Luxuriöses Penthouse mit 160 m² Wohnfläche und zwei Terrassen
                                                            Wohnung
                                ,
                            
                            
                                
                                                                            6911
                                    
                                                                            Lochau
                                    
                                    ,
                                        Am Ruggbach                                                                                    
                                    
                                
                                                                    
                                        
                                    
                                
                            
                        
                        Beste Lage – Wohnen, wo andere Urlaub machen Diese hochwertige Wohnanlage befindet sich in unmittelbarer Nähe des Bodensees und bietet eine erstklassige Anbindung an die Region – ideal für Berufspendler, Familien und Naturliebhaber. Lokale Unternehmen haben bei der Planung und Errichtung großen Wert auf Qualität, Nachhaltigkeit und Ästhetik gelegt.
Beschreibung der Immobilie
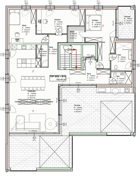
Neubau: Exklusives Wohnen am Bodensee – Luxuriöses Penthouse mit 160 m² Wohnfläche und zwei Terrassen
Diese stilvolle 4-Zimmer Penthouse-Wohnung überzeugt mit einem durchdachten Wohnkonzept, hochwertiger Ausstattung und einer einzigartigen Lage mitten im Dreiländereck. Hier genießen Sie höchsten Wohnkomfort in einer modernen Wohnanlage, die auf Nachhaltigkeit, Qualität und individuelles Design setzt.
Ihre Highlights auf einen Blick
- 160,49 m² Wohnfläche mit großzügiger Raumaufteilung
- 92,22 m² Terrasse – perfekt für Sonnenstunden und gesellige Abende
- 9,30 m² Terrasse (klein)
- 2 Tiefgaragenplätze können um je 27.000,00 € erworben werden
- Modernes Badezimmer
- Massivbauweise für ein nachhaltiges Wohngefühl
- Energieeffiziente Erdwärmepumpe und ökologische Photovoltaikanlage
Wohnqualität auf höchstem Niveau
Die Wohnung vereint modernes Design mit hochwertigen Materialien:
- Echtholzparkett in erlesenen Varianten sorgt für eine warme Wohnatmosphäre
- Raumhohe Stockrahmentüren verleihen den Räumen eine stilvolle Eleganz
- Individuelle Gestaltungsmöglichkeiten bieten Flexibilität für Ihren Wohntraum
Rundum-Sorglos-Service
Von der ersten Besichtigung bis zur Schlüsselübergabe begleiten wir Sie mit einem professionellen Rundum-Service-Paket. Lassen Sie sich von dieser einzigartigen Immobilie begeistern.
Jetzt Termin vereinbaren und Ihr neues Zuhause entdecken!
Hinweise: Dieses Exposé dient zur Vorabinformation. Alle Angaben nach bestem Wissen und Gewissen, jedoch ohne Gewähr. Tippfehler, Irrtum und Zwischenverkauf vorbehalten. Die Grundrisse dienen lediglich zur Darstellung der Raumaufteilung.
Der Vermittler ist als Doppelmakler tätig.
Infrastruktur / Entfernungen
Gesundheit
Arzt <750m
Apotheke <750m
Krankenhaus <1.000m
Klinik <3.500m
Kinder & Schulen
Schule <1.000m
Kindergarten <1.000m
Höhere Schule <1.500m
Universität <3.500m
Nahversorgung
Supermarkt <250m
Bäckerei <1.000m
Einkaufszentrum <3.500m
Sonstige
Bank <1.000m
Geldautomat <1.000m
Post <750m
Polizei <750m
Verkehr
Bus <250m
Autobahnanschluss <1.250m
Bahnhof <750m
Angaben Entfernung Luftlinie / Quelle: OpenStreetMap
Eckdaten Objektnr. 7763/236
| Art: | Wohnung | 
| Land: | Österreich | 
| Zustand: | Erstbezug | 
| Alter: | Neubau | 
| Kaufpreis: | 1.700.000,00 € | 
| Wohnfläche: | 160,49 m² | 
| Zimmer: | 4 | 
| Terrassen: | 2 | 
| Stellplätze: | 2 | 
| Keller: | 3,53 m² | 
| Heizwärmebedarf: | B 27,00 kWh/m²a | 
| fGEE: | A+ 0,69 | 
Ausstattung
Parkett, Erdwärme, Tiefgarage
Ihre persönliche Beratung
 
                                                        Alisa Klemens
SIMA Immobilien GmbH
H +43 676 7707012
 
                 
                 
                 
                 
                 
                 
                 
                 
                