Neubau: 4-Zimmer Wohnung mit großem Garten in Bodenseenähe - Wohnbauförderung möglich

Wohnung , 6911 Lochau , Am Ruggbach


Beste Lage – Wohnen, wo andere Urlaub machen Diese hochwertige Wohnanlage befindet sich in unmittelbarer Nähe des Bodensees und bietet eine erstklassige Anbindung an die Region – ideal für Berufspendler, Familien und Naturliebhaber. Lokale Unternehmen haben bei der Planung und Errichtung großen Wert auf Qualität, Nachhaltigkeit und Ästhetik gelegt.

Beschreibung der Immobilie

Neubau: 4-Zimmer Wohnung mit großem Garten in Bodenseenähe - Wohnbauförderung möglich

Diese hochwertige 4-Zimmer-Neubauwohnung entsteht in einer kleinen, modernen Wohnanlage mit nur neun Wohnungen und einer Gewerbeeinheit.



Das Gebäude wird als Niedrigenergiehaus errichtet und bietet zeitgemäßen Wohnkomfort sowie nachhaltige Bauweise. Die Beheizung erfolgt über eine effiziente Wärmepumpe, unterstützt durch eine Photovoltaikanlage. Ein Personenaufzug sorgt für bequemen Zugang zu allen Ebenen.



Die attraktive Lage überzeugt durch die Nähe zum Bodenseeufer, welches mit seinen vielen Badestellen und Gastronomieangeboten überzeugt. Das Bodenseeufer ist in wenigen Minuten zu Fuß erreichbar. Ebenso erreicht man in nur 5 Gehminuten ein Lebensmittelgeschäft und auch der Bahnhof Lochau sowie eine Bushaltestelle sind bequem zu Fuß erreichbar. Der Autobahnanschluss ist in unter fünf Fahrminuten erreichbar. Direkt hinter dem Haus lädt ein Spazierweg zur Erholung ein, und dank sehr guter Radwege entlang des Bodensees sind diverse Ziele bequem mit dem Fahrrad erreichbar.



Für Familien besonders attraktiv sind der Kinderspielplatz auf dem Grundstück sowie die großzügigen, schön ausgeführten Terrassen. Da es sich um einen Neubau handelt, besteht die Möglichkeit, die Innenausstattung teilweise mitzugestalten und persönliche Wünsche einfließen zu lassen. Die Wohnung überzeugt durch hochwertige Ausstattungsdetails wie eine Fußbodenheizung, außenliegende Raffstores als Sonnenschutz sowie raumhohe, flächenbündige Innentüren mit Stockrahmen. Eine Tiefgarage rundet das Angebot ab. Zusätzlich ist eine Wohnbauförderung möglich, was den Kauf finanziell besonders attraktiv macht.



Ein ideales Zuhause für Familien, die modernen Neubau, nachhaltige Technik, Mitgestaltungsspielraum und eine lebenswerte Lage verbinden möchten.



Top 02 - Die Highlights auf einen Blick



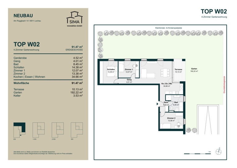
  • 91,47 m² Wohnfläche mit großzügiger Raumaufteilung
  • 192,22 m² Garten für entspannte Stunden im Grünen
  • 10,13 m² Terrasse 
  • Kellerabteil
  • 2 Tiefgaragenabstellplätze können für jeweils € 27.000,00 erworben werden
  • Modernes Tageslicht-Badezimmer mit Dusche und Badewanne
  • Wohnbauförderungsdarlehen bis EUR 100.000,- möglich - je nach persönlichen Voraussetzungen


Wohnqualität auf höchstem Niveau



Die Wohnung vereint modernes Design mit hochwertigen Materialien:



  • Echtholzparkett in erlesenen Varianten sorgt für eine warme Wohnatmosphäre
  • Raumhohe Stockrahmentüren verleihen den Räumen eine stilvolle Eleganz
  • Individuelle Gestaltungsmöglichkeiten bieten Flexibilität für Ihren Wohntraum


Rundum-Sorglos-Service



Von der ersten Besichtigung bis zur Schlüsselübergabe begleiten wir Sie mit einem professionellen Rundum-Service-Paket. Lassen Sie sich von dieser einzigartigen Immobilie begeistern.





! Einladung zur Projektpräsentation !



Wann:    Freitag, 27. Februar 2026 um 17:00 Uhr

Wo:        Pfarrsaal Lochau (Landstraße 17)



Im Anschluss an die Präsentation können in gemütlicher Atmosphäre offene Fragen zu Immobilien & Finanzierung geklärt werden.

Für Speis und Trank ist gesorgt.



Wir bitten um Anmeldung unter office@simaimmobilien.at oder telefonisch unter +43 676 5017793 bis spätestens 19.02.2026.





Hinweise: Dieses Exposé dient zur Vorabinformation. Alle Angaben nach bestem Wissen und Gewissen, jedoch ohne Gewähr. Tippfehler, Irrtum und Zwischenverkauf vorbehalten. Die Grundrisse dienen lediglich zur Darstellung der Raumaufteilung. Bei den dargestellten Abbildungen handelt es sich um unverbindliche Visualisierungen (Schaubilder). Abweichungen in Ausführung, Gestaltung und Ausstattung bleiben vorbehalten.


Der Vermittler ist als Doppelmakler tätig.

Infrastruktur / Entfernungen

Gesundheit
Arzt <750m
Apotheke <750m
Krankenhaus <1.000m
Klinik <3.500m

Kinder & Schulen
Schule <1.000m
Kindergarten <1.000m
Höhere Schule <1.500m
Universität <3.500m

Nahversorgung
Supermarkt <250m
Bäckerei <1.000m
Einkaufszentrum <3.500m

Sonstige
Bank <1.000m
Geldautomat <1.000m
Post <750m
Polizei <750m

Verkehr
Bus <250m
Autobahnanschluss <1.250m
Bahnhof <750m

Angaben Entfernung Luftlinie / Quelle: OpenStreetMap

Eckdaten Objektnr. 7763/226

Art: Wohnung
Land: Österreich
Baujahr: 2026
Zustand: Erstbezug
Alter: Neubau
Kaufpreis: 686.025,00
Wohnfläche: 91,47 m²
Zimmer: 4
Terrassen: 1
Stellplätze: 2
Garten: 192,22 m²
Keller: 3,53 m²
Heizwärmebedarf:  B  27,00 kWh/m²a
fGEE:  A+  0,69
Immobilie merken Exposé

Ausstattung

Parkett, Bad mit Fenster, Tiefgarage


Immobilie anfragen


Ihre persönliche Beratung

SIMA Immobilien GmbH

Alisa Klemens

SIMA Immobilien GmbH

H +43 676 7707012