GROSSZÜGIGES STADTHAUS MIT POTENZIAL! Viel Platz für Ihre Wohnideen!
Haus
- Mehrfamilienhaus,
3370
Ybbs an der Donau
Dieses Mehrfamilienhaus bei Ybbs an der Donau besticht durch seine ideale Lage im Herzen Niederösterreichs. Mit einer östlichen Ausrichtung genießen Sie den morgendlichen Sonnenschein und einen herrlichen Blick auf die umliegende Natur. Die Nähe zur Donau sorgt für entspannende Freizeitmöglichkeiten. Alle wichtigen Einrichtungen wie Arzt, Apotheke, Schule, Kindergarten, Supermarkt und Bank sind bequem erreichbar. Perfekt für Familien und Pendler!
Beschreibung der Immobilie
GROSSZÜGIGES STADTHAUS MIT POTENZIAL! Viel Platz für Ihre Wohnideen!
Willkommen in Ybbs an der Donau, einem charmanten Ort in Niederösterreich, der Ihnen die Möglichkeit bietet, ein echtes Juwel zu erwerben – ein Mehrfamilienhaus mit großem Potenzial! Dieses großzügige Objekt, das sich über beeindruckende 280 m² erstreckt, wartet darauf, von kreativen Köpfen und Handwerkern in ein strahlendes Zuhause verwandelt zu werden.
Eckdaten im Überblick:
- Sanierungsbedürftig
- Baujahr 1850
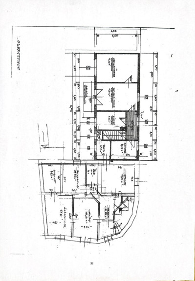
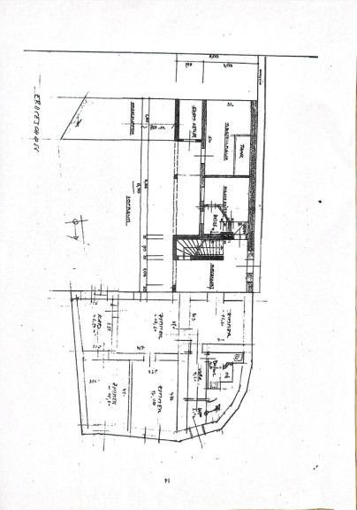
- 14 Zimmer
- Ca. 319m² GFL
- Zentral begehbar
- Ölheizung
- Balkon
- Terrasse
- Innengarten
- absolute Ruhelage
Mit 14 Zimmern bietet dieses Haus ausreichend Platz für mehrere Familien oder kann als renditestarkes Investitionsobjekt genutzt werden. Die Räume sind hell und luftig und bieten die Möglichkeit, individuelle Wohnkonzepte zu realisieren. Ob als Mehrgenerationenhaus oder für die Vermietung – die Möglichkeiten sind vielfältig!
Das Haus ist renovierungsbedürftig, was bedeutet, dass Sie die Chance haben, es nach Ihren Wünschen zu gestalten. Der Garten, die Terrasse und der Balkon laden zum Entspannen und Verweilen ein. Genießen Sie sonnige Tage im Freien und schaffen Sie einen Rückzugsort für die ganze Familie. Hier können Kinder spielen, Gartenpartys stattfinden oder einfach nur die Seele baumeln gelassen werden.
Die Verkehrsanbindung ist ebenfalls hervorragend. Der Bus bringt Sie schnell und bequem in die Umgebung und macht Ybbs zu einem idealen Standort für Pendler. Zudem genießen Sie eine hervorragende Infrastruktur: In unmittelbarer Nähe finden Sie alles, was das Herz begehrt. Ärzte, Apotheken, Schulen und Kindergärten sind schnell erreichbar. Auch Einkaufsmöglichkeiten wie Supermärkte und Bäckereien sowie ein Einkaufszentrum befinden sich in der Nähe und sorgen dafür, dass Sie bestens versorgt sind.
Überzeugen sie sich selbst von unserem tollen Angebot und vereinbaren Sie gleich einen Besichtigungstermin. Für weitere Informationen steht Ihnen Axel Pagacz telefonisch unter +43 (0)678 129 30 10 gerne zur Verfügung.
Infrastruktur / Entfernungen
Gesundheit
Arzt <500m
Apotheke <500m
Kinder & Schulen
Schule <500m
Kindergarten <500m
Universität <6.000m
Nahversorgung
Supermarkt <500m
Bäckerei <500m
Einkaufszentrum <500m
Sonstige
Bank <500m
Geldautomat <500m
Post <500m
Polizei <500m
Verkehr
Bus <500m
Autobahnanschluss <3.000m
Bahnhof <2.500m
Angaben Entfernung Luftlinie / Quelle: OpenStreetMap
Eckdaten Objektnr. 1757/74
Art: | Haus - Mehrfamilienhaus |
Land: | Österreich |
Baujahr: | 1850 |
Zustand: | Teil_vollrenovierungsbed |
Möbliert: | Voll |
Alter: | Altbau |
Kaufpreis: | 149.000,00 € |
Provision: | 3% des Kaufpreises zzgl. 20% USt. |
Betriebskosten: | 150,00 € |
MwSt Gesamt: | 15,00 € |
Wohnfläche: | 280,00 m² |
Grundstücksfl.: | 319,00 m² |
Zimmer: | 14 |
Bäder: | 2 |
WC: | 2 |
Balkone: | 1 |
Terrassen: | 1 |
Heizwärmebedarf: | F 206,70 kWh/m²a |
fGEE: | G 4,13 |
Ausstattung
Estrichboden, Fliesen, Parkett, Öl, Kamin, Zentralheizung, Einbauküche, Ostbalkon, Bad mit Fenster, Badewanne
Ihre persönliche Beratung

Axel Pagacz
Immobilien Sablatnig
T +436781293010