CAMPO REAL FREIZEITPROJEKT: Tiny-House mit Kleingarten-Pachtgrund
Haus
- Ferienhaus,
3830
Waidhofen an der Thaya
Kleingartenanlage Weinberger Haide nur wenige Gehminuten ins historische Stadtzentrum mit Geschäften, Cafés, Restaurants
Beschreibung der Immobilie
CAMPO REAL FREIZEITPROJEKT: Tiny-House mit Kleingarten-Pachtgrund
Willkommen in Ihrem zukünftigen Ferienparadies im Herzen des Waldviertels!
Diese charmanten, möblierten Ferienhäuser bieten Ihnen genug Platz für 2, 4 oder 6 Personen und sind eine perfekte Kombination aus Gemütlichkeit und Funktionalität. Eingebettet in die malerische Natur der Region, sind diese Ferienhäuschen der ideale Rückzugsort für alle, die die Schönheit der österreichischen Landschaft genießen möchten, ohne auf moderne Annehmlichkeiten verzichten zu müssen.
Planen Sie Ihr persönliches TinyHouse, bestellen Sie es noch heute und genießen Sie bereits den Sommer in Ihrem neuen Refugium:
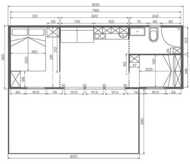
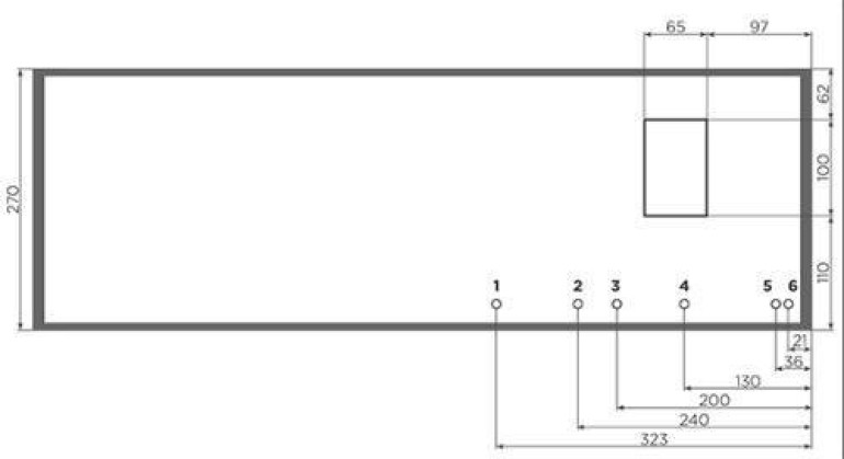
Größe: 3 m x 8 m (Außenmaß), neu: 4 m x 8 m (Außenmaß)
Höhe: 2,7 m (Außenmaß)
Farbe: außen Anthrazit oder Weiß
Bauseits Heizung: E-Infrarot/Klimaanlage
Sanitär (Rückwand): -Strom – Wasser – Abflüsse
Lieferzeit: 4-8 Wochen
Preisliste:
3 m x 8 m: € 36.980,00.– inkl. 20% MwSt. zzgl. Frachtkosten
Preis bis auf Widerruf
4 m x 8 m: € 46.460,00.– inkl. 20% MwSt. zzgl. Frachtkosten
Preis bis auf Widerruf
Terrasse 3 x 6 Meter oder 3 x 8 Meter - Preise auf Anfrage
Im Preis inkludiert:
Mittel Raum: Küche mit Induktion-Kochplatte, Kühlschrank, Boiler, Sofa,
Badezimmer: Waschbecken mit Regal, Duschkabine
Schlafzimmer 1 & 2: Latoflex-Betten, Matratze, Kleiderschrank, Regale,
Ausstattung:
Für die Fassade stehen verschiedene Farbkombinationen und Materialtypen zur Verfügung, die nicht nur der Dekoration dienen, sondern auch als mehrschichtiger Sichtschutz die Fassade vor äußeren Einflüssen schützen. Der Vorteil dieser Mobilheime ist, dass der Grundriss des Hauses und die Größe der Innenräume nach Ihren Bedürfnissen verändert werden können. Es wird auch eine große Auswahl an Accessoires und eine breite Palette an Farben und Textilien angeboten.
Passive Bauweise, große Glasflächen, maximale Details im Außen- und Innenbereich,.
ACHTUNG: In Österreich ist es laut Bauordnung leider oft nicht einfach, eine Baugenehmigung für Tiny Houses zu erwirken.
Doch wir haben gute Nachrichten: Dank einer starken Kooperation mit einem verlässlichen Partner können wir ab sofort passende, genehmigte Tiny-House-Kleingärten anbieten.
Ihre Sommerfrische in Waidhofen an der Thaya:
Voll aufgeschlossen, Bebauung nach NÖ Kleingartengesetz möglich
Grundstücksgröße: ca. 144 bis ca. 271m²
Monatliche Pacht: EUR 122,-- bis 230,--
zzgl. Einmaliger Aufschließungskostenzuschuss und Kanalanschluss (optional)
Bis zu 20% der Gartenfläche sind bebaubar, bis max.37m², Geschossfläche plus Nebengebäude
5,20m Firsthöhe, 3,80m Traufenhöhe, Unterkellerung möglich
Wunderschöne Lage mit alten Obstbäumen, guter Infrastruktur und viele Ausflugsziele in unmittelbarer Nähe.
Doppelparzellen möglich.
Verpassen Sie nicht die Gelegenheit, dieses besondere Angebot zu nutzen. Lassen Sie sich von der charmanten Atmosphäre und der hervorragenden Lage überzeugen und vereinbaren Sie noch heute einen Besichtigungstermin der Grundstücke!
P.S. Die vorliegenden Fotos sind Referenzobjekte!
Der Vermittler ist als Doppelmakler tätig.
Infrastruktur / Entfernungen
Gesundheit
Arzt <2.500m
Apotheke <2.500m
Krankenhaus <3.500m
Klinik <4.000m
Kinder & Schulen
Schule <2.000m
Kindergarten <2.000m
Nahversorgung
Supermarkt <2.500m
Bäckerei <2.500m
Einkaufszentrum <3.500m
Sonstige
Bank <3.000m
Geldautomat <3.000m
Polizei <3.500m
Post <2.500m
Verkehr
Bus <500m
Flughafen <9.500m
Angaben Entfernung Luftlinie / Quelle: OpenStreetMap
Eckdaten Objektnr. 3289
Art: | Haus - Ferienhaus |
Land: | Österreich |
Baujahr: | 2025 |
Kaufpreis: | 36.980,00 € |
Provision: | 1.744,20 € inkl. 20% USt. |
Wohnfläche: | 24,00 m² |
Ihre persönliche Beratung

Iris Wiedermayer
CAMPO REAL Immobilien Wiedermayer GmbH
T +43 676 406 95 90
H +43(0) 676 406 95 90
F 2271/260 60-12