Beschreibung der Immobilie
Charming - 4 Zi-Terrassenwohnung über der Heiland-Apotheke!
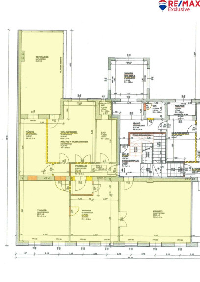
Rund 10 Gehminuten vom Shopping-Center Merkurcity entfernt, gelangt die ca. 130,55 m² große Eigentumswohnung über der Heiland-Apotheke zum Verkauf.
Diese gepflegte Wohnung wurde im Jahr 2001 renoviert und befindet sich im 1. Stock (ohne Lift) eines Mehr-Parteien-Hauses. Neben der ca. 26,59 m² großen Terrasse bietet das dazugehörige Kellerabteil noch Platz als Stauraum.
Beheizt wird das Objekt mittelseines Meller Kaminofens sowie einer Gasetagenheizung.
Highlights:
- Wohnung: Renovierungen im Jahr 2001 (Fenster)
- Gebäude: Renovierung im Jahr 2012 (Wärmeschutz straßenseitig)
- 3 Schlafzimmer + 1 Wohnesszimmer
- Terrasse hofseitig (ca. 26,59 m²)
- 1 Kellerabteil (ca. 10,89 m²)
- hervorragende Homeoffice-Möglichkeit
- Böden: teilweise Parkett, Fliesen, Laminat
- PKW-Abstellplatz Möglichkeiten direkt vor der Haustüre
Raumaufteilung: 
- Vorraum, 3 x Schlafzimmer, Wohnesszimmer,Terrasse, Badezimmer, WC
Einfach anrufen und einen Besichtigungstermin für weitere Details vereinbaren.
Kaufpreis: € 279.000,--
Besichtigungsmöglichkeit besteht jederzeit nach Terminvereinbarung.
Aufgrund der Nachweispflicht gegenüber dem Eigentümer ersuchen wir um Verständnis, dass nur Anfragen mit der Angabe der vollständigen Anschrift und Telefonnummer bearbeitet werden können.
Wir weisen auf Ihre 14-tägige Rücktrittsfrist (gemäß § 11 FAGG ) hin. Um Ihre Rechte zu wahren, können nur Anfragen mit vollständigen Kontaktdaten (Name, Adresse, Telefon, Email) beantwortet werden.
Vor Ablauf der 14-tägigen Rücktrittsfrist werden wir gerne für Sie tätig, wenn Sie gesetzeskonform (FAGG) uns ausdrücklich (am einfachsten per E-Mail) dazu auffordern.
Wenn der Kaufvertrag/der Mietvertrag nicht zustande kommt, bleibt unsere Tätigkeit für Sie vollkommen kostenlos.
Gewährleistung:
Die Verkäuferseite gewährleistet, dass der Vertragsgegenstand ihr unbeschränktes Eigentum und frei von Geldlasten, Bestandrechten und sonstigen Rechten Dritter ist.
Ansonsten wird jede Gewährleistung der Verkäuferseite ausgeschlossen und festgestellt, dass sich dieser Gewährleistungsausschluss sowohl auf bestimmte als auch auf gewöhnlich vorausgesetzte Eigenschaften des Vertragsgegenstandes wie beispielsweise Lage, Größe, Zustand, Abnützung, Widmung, Beschaffenheit, Ertrag und Verwendungsmöglichkeit bezieht.
Der Vermittler ist als Doppelmakler tätig.
Infrastruktur / Entfernungen
Gesundheit
Arzt <500m
Apotheke <500m
Klinik <2.500m
Krankenhaus <1.000m
Kinder & Schulen
Schule <500m
Kindergarten <500m
Höhere Schule <1.500m
Universität <2.000m
Nahversorgung
Supermarkt <500m
Bäckerei <500m
Einkaufszentrum <500m
Sonstige
Bank <500m
Geldautomat <500m
Post <500m
Polizei <1.000m
Verkehr
Bus <500m
Autobahnanschluss <3.500m
Bahnhof <1.500m
Flughafen <2.000m
Angaben Entfernung Luftlinie / Quelle: OpenStreetMap
Eckdaten Objektnr. 3050
| Art: | Wohnung | 
| Land: | Österreich | 
| Baujahr: | 1968 | 
| Zustand: | Gepflegt | 
| Kaufpreis: | 279.000,00 € | 
| Provision: | 10.044,00 € inkl. 20% USt. | 
| Betriebskosten: | 160,99 € | 
| Sonstige Kosten: | 39,31 € | 
| Wohnfläche: | 130,55 m² | 
| Zimmer: | 4 | 
| Bäder: | 1 | 
| WC: | 1 | 
| Terrassen: | 1 | 
| Keller: | 10,89 m² | 
| Heizwärmebedarf: | D 108,00 kWh/m²a | 
| fGEE: | D 1,82 | 
Ausstattung
Fliesen, Laminatboden, Parkett, Gas, Etagenheizung, Kamin, Einbauküche, Badewanne, Dusche, Kabel/Satelliten-TV
Ihre persönliche Beratung
 
                                                        Florian Skalnik, BSc MBA
RE/MAX Exclusive Brugger KG
T +43 2622 320 81
H +43 69910450261
 
                 
                 
                 
                 
                 
                 
                 
                 
                 
                 
                 
                 
                 
                 
                 
                 
                 
                 
                 
                 
                 
                 
                 
                 
                 
                 
                 
                 
                 
                