Beschreibung der Immobilie
Sanierungstraum | 3 Wohnungen | Ganze Etage
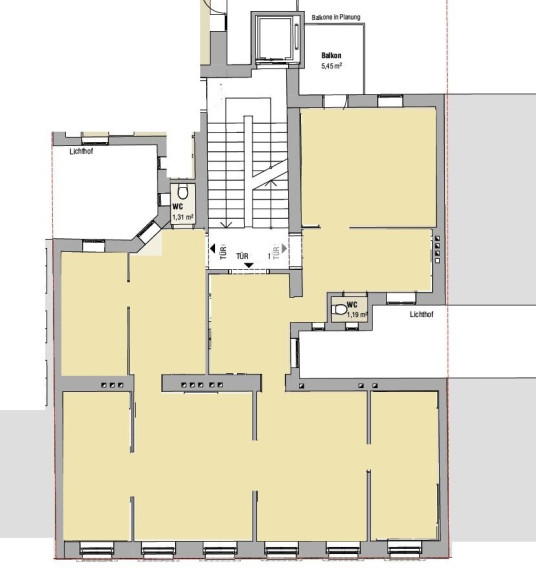
3 nebeinanderliegende Altbauwohnungen für Sanierung und Zusammenlegung
3. Stock - 5 bis 6 Zimmer möglich - Küche und Bad - 2 WC - Balkon bewilligt
Direkt beim zukünftig größten Bildungscampus Österreichs (Areal der ehemaligen WU-Wien)
westseitige Ausrichtung - Sanierung kann verkäuferseitig durchgeführt werden
Im Zuge des bereits bewilligten Dachgeschoßausbaus wird auch ein Lift eingebaut, das Stiegenhaus sowie die Außenfassade werden renoviert. Für die Käufer der Wohnungen erfolgt dies ohne Zusatzkosten
schönes Gründerzeithaus mit gegliederter Fassade
5 min Gehdistanz zu den U-Bahnstationen Spittelau oder Nußdorfer Straße
Weitere Informationen oder Besichtigung gerne unter 0676 933 16 91
Energieklasse F/E
Nebenkosten bei Kaufverträgen:
- Grunderwerbsteuer : 3, 5%
- Grundbuchseintragungsgebühr : 1, 1%
- Vermittlungsprovision: Bitte beachten Sie, dass bei erfolgreicher Vermittlung mit Rechtswirksamkeit des zu vermittelnden Geschäfts eine Provision laut Immobilienmaklerverordnung i.H.v. 3% zzgl. 20% USt. des Kaufpreises zu leisten ist.
- Kosten der Vertragserrichtung und grundbücherlichen Durchführung nach Vereinbarung im Rahmen der Tarifordnung des jeweiligen Urkundenerrichters sowie Barauslagen für Beglaubigungen und Stempelgebühren
Alle Informationen, insbesondere jene hinsichtlich des Energieausweises beruhen auf den Auskünften und Unterlagen des Eigentümers. Wir haben weder die Richtigkeit oder Vollständigkeit der Angaben noch die tatsächliche Gesamtenergieeffizienz überprüft und übernehmen hierfür keine Gewähr. Wir weisen darauf hin, dass zum Auftraggeber ein wirtschaftliches Naheverhältnis besteht. Unsere Angebote sind freibleibend und unverbindlich. Zwischenverkauf, -vermietung oder -verpachtung durch den zu vermittelnden Dritten sind vorbehalten. Der Vermittler ist als Doppelmakler tätig.
Wir weisen darauf hin, dass zwischen dem Vermittler und dem zu vermittelnden Dritten ein familiäres oder wirtschaftliches Naheverhältnis besteht.
Der Vermittler ist als Doppelmakler tätig.
Infrastruktur / Entfernungen
Gesundheit
Arzt <500m
Apotheke <500m
Klinik <500m
Krankenhaus <1.500m
Kinder & Schulen
Schule <1.000m
Kindergarten <500m
Universität <500m
Höhere Schule <1.000m
Nahversorgung
Supermarkt <500m
Bäckerei <500m
Einkaufszentrum <2.000m
Sonstige
Geldautomat <500m
Bank <500m
Post <500m
Polizei <500m
Verkehr
Bus <500m
U-Bahn <500m
Straßenbahn <500m
Bahnhof <500m
Autobahnanschluss <1.000m
Angaben Entfernung Luftlinie / Quelle: OpenStreetMap
Eckdaten Objektnr. 8200/183
Art: | Wohnung |
Land: | Österreich |
Baujahr: | 1906 |
Alter: | Altbau |
Kaufpreis: | 667.000,00 € |
Provision: | 3% des Kaufpreises zzgl. 20% USt. |
Betriebskosten: | 303,91 € |
MwSt Gesamt: | 30,39 € |
Wohnfläche: | 137,25 m² |
Nutzfläche: | 137,25 m² |
Zimmer: | 6 |
Bäder: | 2 |
WC: | 3 |
Balkone: | 1 |
Ausstattung
Gas, Personenaufzug
Ihre persönliche Beratung

ZEBEH GmbH
ZEBEH GmbH
T +43 676 9331691
H 0676 933 16 91