Perfekt gelegene Büro- oder Ordinationsflächen in Vorchdorf zu kaufen
Büro / Praxis
,
4655
Vorchdorf
,
Lambacherstraße 18
Optimale Lage: Das Projekt ist nur ca. 300 Meter vom A1 Autobahnanschluss entfernt Fahrzeit mit dem Auto bis ins Zentrum von Gmunden ca. 20 min Wels ca. 20 min Linz ca. 30 min Salzburg ca. 50 min Zu Fuß erreichen Sie in ca. 3 - 5 Minuten Supermärkte, Apotheke, Friseur, Cafe/Bar, das Zentrum, Bezirksaltenheim, Bushaltestelle, Neue Mittelschule, Bäckerei, Kirche,...
Beschreibung der Immobilie
Perfekt gelegene Büro- oder Ordinationsflächen in Vorchdorf zu kaufen
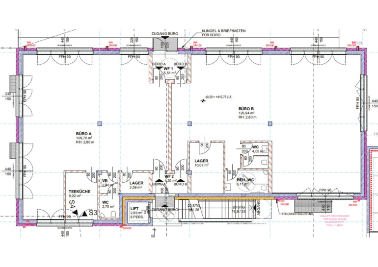
Die Firma GC Vorchdorf Errichtungsges. m.b.H errichtet im Zentrum von Vorchdorf ein Wohnprojekt mit 8 Wohnungen und einer Gewerbefläche im Erdgeschoß mit ca. 275 m² Nutzfläche zzgl. Kellerflächen, Parkplätze und Tiefgaragenplätze.
Ihre Vorteile im Überblick
- Das Projekt ist nur ca. 300 Meter vom A1 Autobahnanschluss entfernt
- Zentrale Lage und beste Verkehrsanbindung
- Bestehend aus einem Raum mit ca. 275 m²
- Toiletten-/Nasszellen mit Fliesenboden und Sanitärkeramik
- Die Toiletten werden nach Erfordernis/Vereinbarung hergestellt
- Zentralheizung mit Fußbodenheizung (Anschluss an die Nahwärme)
- Licht- und Stromauslässe inkl. Verkabelung sowie Steckdosen und Schalter nach Ihren Vorgaben in Abstimmung mit dem Bauträger in den Innenwänden sowie der Decke (Flächenschalterprogramm in weiß)
- Innenwände gespachtelt und weiß gemalt
- 9 Freistellplätze sind im Kaufpreis bereits enthalten
- 2 Tiefgaragenstellplätze sind im Kaufpreis bereits enthalten
- Kellerabstellraum ca. 25 m²
- Aufzug auch in den Keller/Tiefgarage
- Massivbauweise
- Solide Baumeisterqualität
- Kunststoff-Alufenster
- Raffstorekästen mit einem Leerrohr sind bei allen Fenstern vorhanden. An der Ost- und Westseite sind zusätzlich elektrische Raffstore bereits eingebaut.
- Vinylböden im Büro
- Fliesen 60/30 in den Nasszellen
- Röhrenspan Innentüren mit Holzumfassungszarge
- Schaltersystem von Busch und Jäger Future Linear
- Vorsehung für einen Internetanschluss
- Eine Leerverrohrung im Sanitärbereich für eine spätere Installation einer Klimaanlage am Dach ist bereits vorgesehen
- Ortswasser
- Öffentlicher Kanal
- Die Fläche ist flexibel nach individuellen Anforderungen plan- und ausführbar (die in den Plänen dargestellte Planung ist symbolhaft).
Es besteht auch die Möglichkeit die Gesamtfläche in zwei ca. gleich große Räume zu teilen und einen der Räume (inklusive Stellplätzen und Kellerabteil) zu erwerben.
Preis nach Rückfrage.
Der Kaufpreis bezieht sich auf den Nettopreis zzgl. 20% Ust.
Die Fotos sind Referenzbilder vom GC I Vorchdorf
Wir weisen darauf hin, dass zwischen dem Vermittler und dem zu vermittelnden Dritten ein familiäres oder wirtschaftliches Naheverhältnis besteht.
Der Vermittler ist als Doppelmakler tätig.
Eckdaten Objektnr. 5072/364
Art: | Büro / Praxis |
Land: | Österreich |
Baujahr: | 2026 |
Alter: | Neubau |
Kaufpreis: | 1.125.000,00 € |
Provision: | 3% des Kaufpreises zzgl. 20% USt. |
Nutzfläche: | 275,00 m² |
Stellplätze: | 9 |
Keller: | 25,00 m² |
Heizwärmebedarf: | B 43,00 kWh/m²a |
fGEE: | A+ 0,61 |
Ausstattung
Fußbodenheizung, Zentralheizung, Personenaufzug, Parkplatz, Tiefgarage
Ihre persönliche Beratung

Michael Stöttinger
Stöttinger Immobilien
T + 43 664 973 24 51
H + 43 664 973 24 51