Betreutes Wohnen in Wiener Neustadt – 2 Zimmerwohnung mit Altbau-Charme
                                                            Wohnung
                                ,
                            
                            
                                
                                                                            2700
                                    
                                                                            Wiener Neustadt
                                    
                                    ,
                                        Komarigasse                                                                                    
                                    
                                
                                                                    
                                        
                                    
                                
                            
                        
                        Beschreibung der Immobilie
Betreutes Wohnen in Wiener Neustadt – 2 Zimmerwohnung mit Altbau-Charme
Betreutes Wohnen in Wiener Neustadt – erstklassiges Zuhause!
In der Stadt Wiener Neustadt befindet sich diese schöne, helle und geräumige 2 Zimmerwohnung. Wiener Neustadt ist nach der Landeshauptstadt St. Pölten die zweitgrößte Stadt Niederösterreichs und liegt etwa 50 km südlich der Bundeshauptstadt Wien im Industrieviertel.
Unsere Anlage liegt zwischen der Waisenhausgasse und Komarigasse, direkt neben dem Krankenhaus und nur ca. 500m vom Zentrum entfernt.
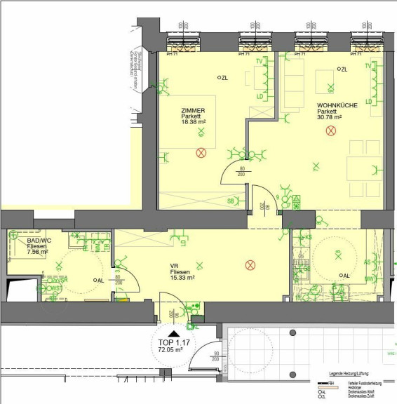
Diese schöne Wohnung befindet sich im 2. Obergeschoss eines modernen Gebäudes und ist ca. 72,05m² groß und gliedert sich in eine großzügige Wohnküche, ein helles und geräumiges Schlafzimmer, einen extra großen Vorraum, welcher für zusätzlichen Stauraum sorgt und ein Badezimmer mit WC, bodenebener Dusche und Handwaschbecken.
Hochwertige Parkettböden wurden in den Wohnräumen verlegt und die Nassräume wurden modern verfliest.
Das Haus verfügt über zwei Gemeinschaftsräume (EG + OG), einen Lift, einen Fahrradabstellraum, einen Müllraum – jeder Wohnung ist ein Einlagerungsraum zugeteilt (ca. 4m²).
Die gesamte Wohnhausanlage ist barrierefrei. Beheizt wird das Haus mit Fernwärme.
Durch die hervorragende Verkehrsanbindung erreichen Sie alle nötigen Einrichtungen wie Arzt, Apotheke, Schule, Kindergarten und Supermarkt sowie Bäckerei in unmittelbarer Nähe.
In der Umgebung gibt es zahlreiche Wanderwege, Radwege und Parks, die Sie erkunden können.
Die Wohnform "betreutes Wohnen" ist speziell auf die Bedürfnisse von Seniorinnen und Senioren ab dem 60. Lebensjahr ausgerichtet und ermöglicht eine selbständige Lebensführung in den eigenen vier Wänden bis ins hohe Alter. Des Weiteren richtet sich diese Wohnform auch an Personen mit Einschränkung. Die Lage im Ortskern mit geeigneter Infrastruktur, barrierefreie Ausstattung und die soziale Grundbetreuung durch eine Betreuungsorganisation zeichnen sie aus. Die Betreuung erfolgt über das Österreichische Rote Kreuz (€ 71,-- monatlich).
Befristung: unbefristet
Bezug: ab sofort
Energiekennzahlen: Laut Energieausweis vom 08.11.2021 beträgt der Heizwärmebedarf 46,84 kWh/m²a Klasse B und der Gesamtenergieeffizienz-Faktor 0,81 Klasse A.
Der einmalige Finanzierungsbeitrag beträgt € 18.288,96 und die monatliche Miete beläuft sich auf € 815,83 inkl. BK und USt.
Social Media: facebook - instagram - youtube
Noch nichts gefunden? Wir informieren Sie über geeignete Immobilienangebote noch vor allen anderen.
Legen Sie jetzt Ihren individuellen Suchagenten unter folgendem Link an. Wir schicken Ihnen passende Immobilien exklusiv vorab zu.
Suchagent anlegen - https://heimat-oesterreich.service.immo/registrieren/de
Infrastruktur / Entfernungen
Gesundheit
Arzt <500m
Apotheke <500m
Klinik <1.500m
Krankenhaus <250m
Kinder & Schulen
Schule <250m
Kindergarten <750m
Höhere Schule <750m
Universität <2.750m
Nahversorgung
Supermarkt <500m
Bäckerei <500m
Einkaufszentrum <1.250m
Sonstige
Bank <500m
Geldautomat <500m
Post <1.250m
Polizei <750m
Verkehr
Bus <250m
Autobahnanschluss <2.500m
Bahnhof <1.500m
Flughafen <2.500m
Angaben Entfernung Luftlinie / Quelle: OpenStreetMap
Eckdaten Objektnr. 3634
| Art: | Wohnung | 
| Land: | Österreich | 
| Baujahr: | 2021 | 
| Zustand: | Erstbezug | 
| Alter: | Neubau | 
| Gesamtmiete: | 815,83 € | 
| Kaltmiete (netto): | 815,83 € | 
| Kaltmiete: | 815,83 € | 
| Provision: | Provisionsfrei | 
| Wohnfläche: | 72,05 m² | 
| Zimmer: | 2 | 
| Bäder: | 1 | 
| WC: | 1 | 
| Heizwärmebedarf: | B 46,84 kWh/m²a | 
| fGEE: | A 0,81 | 
Ausstattung
Fliesen, Parkett, Personenaufzug, Dusche, Betreutes Wohnen
Ihre persönliche Beratung
 
                    Petra Zimmerl
Heimat Österreich gemeinnützige Wohnungs- und Siedlungsgesellschaft m.b.H.
T 019823601633
H 0676/4956391
F 0198236015633
 
                 
                 
                 
                 
                 
                 
                 
                 
                 
                 
                 
                 
                 
                