Beschreibung der Immobilie
Seniorenresidenz Mödling
Diese barrierefreie Anlage befindet sich in zentraler Lage in Mödling, direkt gelegen an der Fußgängerzone mit Nahversorgern, Apotheken, Banken, Boutiquen und einladenden Kaffeehäusern und nur 15 Minuten Fußweg vom Bahnhof entfernt. Auch Schulen und Kindergärten befinden sich in unmittelbarerer Nähe. Vor der Anlage befindet sich auch eine Bushaltestation Richtung Bahnhof und Richtung Guntramsdorf. Die ausgezeichnete Lage im Naherholungsgebiet von Wien ermöglicht diverse Freizeit- und Sportmöglichkeiten. Die Shopping City Süd, Europas größtes Shopping-Center, ist in 10 Minuten mit dem Auto erreichbar.
In 10 Minuten erreicht man auch die Stadtgrenze von Wien; der Flughafen Wien Schwechat ist über die S1 in nur 30 Minuten erreichbar. Mit dem Auto ist man auf kurzem Wege auf den Autobahnen A 21, A2 und A3. Diese Wohnung ist für alle jene von Interesse, welche die Annehmlichkeiten einer Kleinstadt eingebettet im Naherholungsgebiet mit vielen Sportmöglichkeiten, mit bester Infrastruktur und ausgezeichneter Verkehrsanbindung schätzen, aber auch die Vorteile hinsichtlich Kultur, Lifestyle, Soziales oder auch Arbeit, die einem eine Großstadt wie Wien bietet, nutzen möchten.
Information zur Betreuung:
Betreuungsorganisation: Silberzeit GmbH (gemeinnützig geführt)
Die Betreuungsorganisation berechnet zusätzlich ein gesondertes Betreuungsentgelt.
Der Immobilienmakler erklärt, dass er – entgegen dem in der Immobilienwirtschaft üblichen Geschäftsgebrauch des Doppelmaklers – einseitig nur für den Vermieter tätig ist.
Infrastruktur / Entfernungen
Gesundheit
Arzt <150m
Apotheke <225m
Klinik <150m
Krankenhaus <1.275m
Kinder & Schulen
Schule <225m
Kindergarten <375m
Höhere Schule <1.150m
Nahversorgung
Supermarkt <225m
Bäckerei <400m
Einkaufszentrum <1.025m
Sonstige
Bank <250m
Geldautomat <250m
Post <250m
Polizei <550m
Verkehr
Bus <75m
U-Bahn <5.650m
Straßenbahn <4.525m
Bahnhof <975m
Autobahnanschluss <3.250m
Angaben Entfernung Luftlinie / Quelle: OpenStreetMap
Eckdaten Objektnr. 1777/95
Art: | Wohnung - Dachgeschoß |
Land: | Österreich |
Gesamtmiete: | 923,43 € |
Kaltmiete (netto): | 654,53 € |
Kaltmiete: | 839,48 € |
Provision: | Gemäß Erstauftraggeberprinzip bezahlt der Abgeber die Provision. |
Betriebskosten: | 117,87 € |
MwSt Gesamt: | 83,95 € |
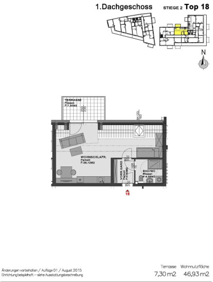
Wohnfläche: | 46,93 m² |
Zimmer: | 1 |
Balkone: | 1 |
Keller: | 1,50 m² |
Ihre persönliche Beratung

Thomas Morgl
Metropolis RE Consulting GmbH
H 069915009090